▲ 更多精彩,关注“搜建筑”
南师大玄武科技园“图书馆”
杜兹设计

▲ 紫金山下,玄武湖边的南师大“图书馆”
缘起:南京的“板仓街 78 号”
Foreword: "No. 78 Bancang Street" in Nanjing
中国城市在经历了近四十年的快速发展后,已经到达了临界点,即大规模的空间增长不可持续, 土地开发空间严重受限。面对困局,政府与企业都在积极探索城市发展建设的创新之路,思考如何通过更新与再生对现有土地进行功能转型、结构重建,从而与城市创新和新经济相融合。
After nearly 40 years of rapid development, Chinese cities have reached the critical point of large-scale spatial growth is unsustainable and land development space is severely limited. Both the government and enterprises are actively exploring an innovative way of urban development and construction, thinking about how to transform the existing land’s function and rebuild that structure through renewal and regeneration, so as to integrate with urban innovation and a new economy.
2019 年 7 月,历史悠久,风格古朴的南京师范大学紫金校区正式结束了教书育人的使命,送走了最后一批学子。南师大紫金校区总共占地面积约 11 万平方米,地上建筑面积约 8 万平方米, 这里留下了许多人的青葱校园记忆,也留下了这座大学校园与城市的文化链接。
In July 2019, the Zijin Campus of Nanjing Normal University, with a long history and a simple style ended its mission as a university campus. The campus covers a total area of 110,000 square meters, and the “above-ground” building area is 80,000 square meters. It leaves many campus memories for its past students and the cultural link between this university and the city.

▲ 总平图
校区位于“紫金山下,玄武湖边”,观山望湖,具有良好的景观和校园独有的生态环境。“板仓街78 号”,在这里人文与校园情怀交叠,也构成了知性,包容,创新的学院派氛围。这片校区的未来将何去何从?是仅保留地块,做大范围的革新,或是选择保留校园文化记忆,探寻新的建筑新生?
The campus is located under the "Purple Mountain, beside Xuanwu Lake", with views of the mountains and the lake. A good landscape and a unique ecological environment inside it. "No. 78 Bancang Street", where human culture and campus memories feelings are overlapped, it constitutes an intellectual, tolerant, and innovative academic atmosphere. Which future this campus is heading to? Is it to keep only the land and make a large-scale innovation, or choose to preserve the campus cultural memory and explore an architecture renovation?
向史而新:
新型城市文化空间改造与创新
Heritage and Innovation:
New Urban Cultural Space
Transformation and Innovation
DUTS 杜兹设计在 2019 年接受金地商置的邀请,进行原南京师范大学紫金校区的整体改造设计工作。日前,原南京师范大学紫金校区改造项目的首开区,原“图书馆”的改造已经完成。设计师从建筑历史与城市情感记忆中吸取灵感,将当代设计美学与复合的现代生活业态注入到这座拥有近 70 年历史的图书馆中,使其焕发新生,成为包容展示、商业、办公、商务、交流等复合功能,与充满人文生活气息的新型地标性文化中心。
DUTS Design accepted the invitation of Gemdale in 2019 to carry out the overall renovation design work of the original Nanjing Normal University Zijin Campus. Recently, the renovation of the original "library" has been completed. The designer took inspiration from the architectural history and the emotional memory of the urban life, and injects contemporary design aesthetics and complex modern life formats into this nearly 70-year-old library. The rejuvenated library becomes a new landmark cultural center that contains complex functions such as display, business, office, business, and communication, and is full of humanistic life.

▲ 南师大紫金校区“图书馆”
如何保留“图书馆”这座公共文化建筑的情感记忆,并使其在当代生活中继续充满生命力,成为了设计师考虑的主要问题。在对空间的反复研究与推敲之后,杜兹设计的设计师提炼了原建筑中的经典元素和记忆点,保留了建筑整体形态与轮廓,并通过现代建筑手法,使其呈现愈加开放与现代的姿态。
“我们希望这个改造是一种“向史而新”,保留这块土地的人文与情感记忆,通过现代建筑的语言让它更和谐的与当代生活相融。我们做了两步: 第一步,“开”,打开空间,让建筑形态更加开放,打通内与外的交流; 第二步,“合”,注入复合业态,融合现代生活,使它变为一个充满情感,记忆, 又有新鲜活力的生活空间。”
——钟凌(Zhong Ling)
DUTS 杜兹设计创始人,总建筑师
"This transformation is "Heritage and Innovation", we retain the human and emotional memory of this site, while make it more harmoniously integrated with contemporary life through modern architectural language.
We did two steps:
The first step is to "open", open up the space, make the architectural form more open, and open up the communication between inside and outside;
The second step is to "combine", inject a complex format, integrate modern life, and turn it into a living space full of emotions, memories, and fresh vitality. "
Founder of DUTS Design and chief architect
开合之间,乾坤自现。
珍贵的城市情感记忆被保留下来,
以更当代的方式,展望着未来。

▲ 南师大校区改造策略
开:“图书馆”的开放与新生
Opening: Opening and Rebirth of the "Library"
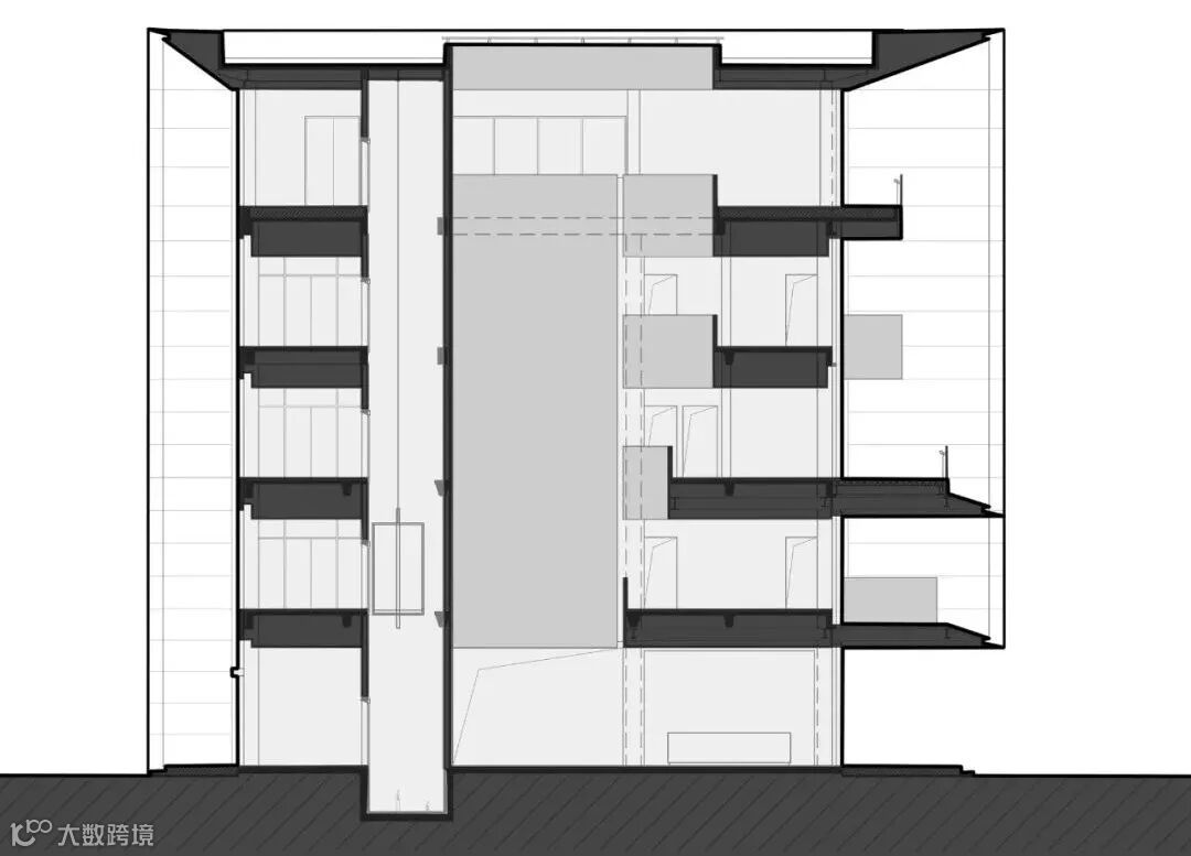
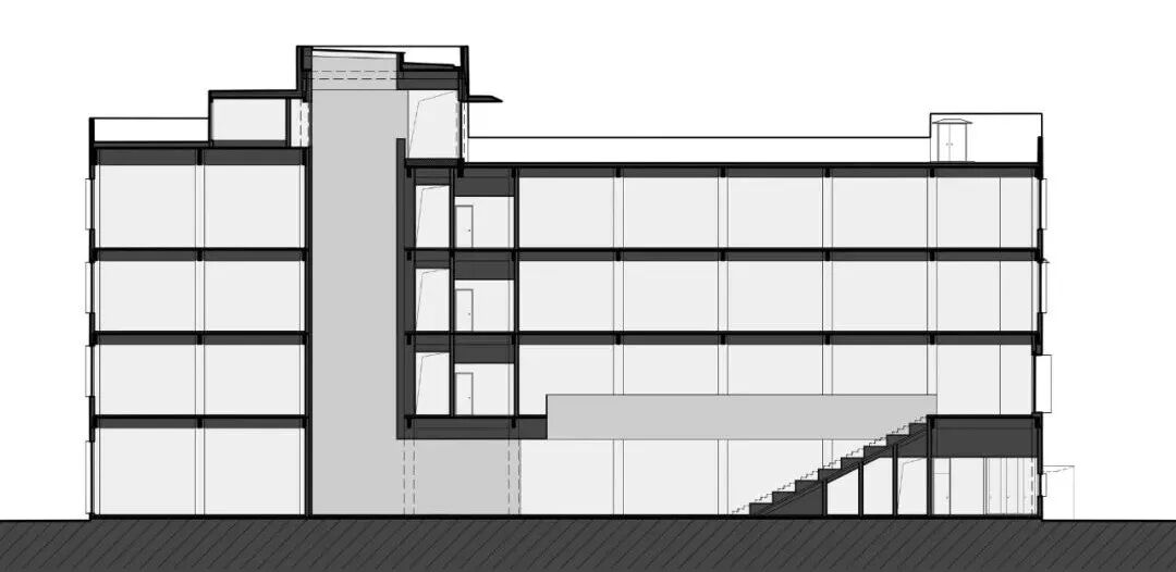
南师大紫金校区的图书馆年代悠久,新的改造在保有原建筑风貌基础上,突破传统的平面布局,打造更具多样性的功能核心,集交通、阳光天井、共享空间于一体。立面交通核体量明确有力,横向则通透舒展。
The library on the Zijin campus of Nanjing Normal University has a long history. The new renovation retains the original architectural style, innovatively breaks through the traditional layout, creates a more functional core, and integrates vertical transportation, sunny patios, and shared spaces. The traffic core of the facade is clear and powerful, and the horizontal is transparent and stretched.
设计拆解
Design elaboration

▲ 原建筑剖面图 
▲ 改造后的“图书馆”剖面图

▲ 原图书馆 
▲ 改造后的“图书馆”

▲ 改造后的“图书馆”背面
开放的“橱窗”
Design Concept:Open "Showcase"
原有的图书馆功能单一,保护书籍,保持安静的读书环境使建筑空间相对封闭。设计师将原有的交通空间打造成一个高24米的公共橱窗,突出其文化的地标性。愈加开放与共享,也正体现了现代城市公共文化空间的发展方向。
The original library has a single function. Protect books and maintain a quiet reading environment to make the building space relatively closed. The designer transformed the original traffic space into a 24m high public showcase, highlighting its cultural landmark. Increasing openness and sharing also reflect the development direction of modern urban public cultural space.

▲体块策略

▲ 改造后的“图书馆”正面

▲ 改造后的“图书馆”夜景
▲ 改造后的“图书馆“日景 
▲ 改造后的“图书馆”夜景
引入“观山平台”,加强内与外的互动关系,空间内的人们,可以在交流的闲暇通过橱窗,遥望紫金山,汲取自然之力,找回内心的宁静。

▲ 交通核集交通、阳光天井、共享空间于一体

▲ 引入“观山平台”,加强内与外的互动关系

▲ 空间内的人们,可以在闲暇通过橱窗遥望紫金山
"Opening" of floor plan and elevation
建筑师将平面打开,重构原有的交通核,电梯、卫生间、共享空间等巧妙植入,并在核心区打造贯通的天井空间,利用垂直的天井引入自然光线,加深自然与建筑,时间与空间之间的互动。
Architects opened up the plan, reconstructed the original traffic core, ingeniously implanted elevators, toilets, shared spaces, etc., and created a perforated patio space in the core area, using vertical patios to introduce natural light, deepening nature and architecture, time and interaction between spaces.

▲ “图书馆”改造策略

▲ 打开平面,在核心区打造贯通的天井空间,引入自然光线

▲ 建筑内的空间光影

▲ 建筑内的空间光影
立面造型上保持原本的构图关系,但将原来封闭的竖向体块改为通透玻璃,多个公共平台穿插于其中,在此,人们的活动有了展示的舞台,恰似城市窗,而同时又可以凭栏而 眺远处的紫金山美景。历史、功能、景观资源在现代的设计手法下形成了完美的融合。
In terms of façade modeling, the original composition relationship is maintained, but the originally closed vertical volume is changed to transparent glass, with multiple public platforms. Here, people’s activities have a stage for display, just like a window to the city, while at the same time they can lean on a railing and overlook the beauty of the purple mountain in the distance. History, function, and landscape resources have formed a perfect fusion under modern design techniques.

▲ 改造后的”图书馆“全景

▲ “图书馆”侧面:横向通透舒展

▲ 或是聆听一场人文讲座,参观一场艺术展览

▲ 将立面与平面打开,创造“开放的橱窗”
The "opened" bookstore
为延续书籍在这片空间中留下的温暖记忆,设计师将“图书馆”的一层与二层创造成了一个开阔、 通透、充满人文气息的挑高中庭空间,空间两侧以连续的完整的书墙来界定,书架分隔的线条 延续到天花板形成连续的拱形,强化了空间的精神性,端部则通过自然光线的引入,成为空间 中自然与人文的一种隐含沟通。
In order to continue the warm memory of the books in this space, the designer merged the first and second floors of the "library" into an open, transparent and humanistic high-rise atrium space, with continuous integrity on both sides of the space To define the book wall, the dividing lines of the bookshelves continue to the ceiling to form a continuous arch, which strengthens the spirituality of the space. At the end, the introduction of natural light becomes an implicit communication between nature and humanity in the space.

▲ 空间两侧以连续的完整的书墙来界定,书架分隔的线条延续到天花板形成连续的拱形

▲ 观四时美景

▲ 寻一本书,坐在台阶上慢慢品读

▲ 为“图书馆”带来更多与生活美学,艺术,社交互动的可能

▲端部通过自然光线的引入,加强空间中自然与人文的沟通
合:注入复合业态,融合现代生活
Combination:
Inject a complex business format and integrate
with modern life
多元丰富的生活方式为空间带来新的活力。保留原本图书馆的人文气息,设计师为其注入现代 城市生活的复合业态,创新性的将开放咖啡厅、共享办公室、餐饮美食、互联网、生态科技等以当代手法注入“图书馆”,成为城市年轻人的社区生活圈。
A diverse and rich lifestyle brings new vitality to the space. Retaining the humanistic atmosphere of the original library, the architect infused it with more complex business scenes of modern urban life, innovatively injecting open cafes, shared offices, dining and food, internet, and ecological technology into the "library" with contemporary methods. ", becoming a community life circle for young urban people.
“我们想塑造的是一种“可成长”的人文空间,它承载了校园的记忆,也正在记录这当代都市年轻人的奋斗历程。不变的是,所有还保留在我们心里与空间中的人文情怀。”
"What we want to create is a kind of "Growth-able" culture space, which carries the memories of the campus and is also recording the growth of young people in this contemporary city. What remains unchanged is the humanistic feeling in our hearts, preserved in the space."

▲ “图书馆”的复合功能业态
“奇点书集”的入驻成为了“图书馆”中最具情感记忆的感性空间 , 也为图书馆带来更多与生 活美学、艺术、社交互动的可能。寻一本书,坐在台阶上慢慢品读,或是聆听一场人文讲座, 参观一场艺术展览。新型的复合型城市文化空间,它以更加现代包容的方式,在开放性、公益性的基础上,带领城市走向更多的活力。
"Singularity Book store" has become the most emotional space in the "library", and it also brings more possibilities for the library to interact with life aesthetics, art, and social interaction. Find a book, sit on the steps and read it slowly, or listen to a lecture or visit an art exhibition. A new type of urban cultural space, which brings more vitality to the city on the basis of openness and public welfare in a more modern and inclusive way.

▲ 将“图书馆”的一层与二层创造成了一个开阔、通透、充满人文气息的挑高中庭空间
保留校园的文化气息,整幢建筑的楼层信息采用了独具创意的“铅笔墙”进行呈现,108,000支笔的排序组合,带来令人冲击的视觉效果,同时也融入了电影,艺术相关的文化信息。
Preserving the cultural atmosphere of the campus, the floor information of the entire building is presented with a unique creative "pencil wall". The sorting combination of 108,000 pens brings shocking visual effects. It also incorporates movies and art related Cultural information.

▲ 楼层信息由十万支笔组成的“铅笔墙“构成,同时也融入了电影,艺术相关的文化信息
WECAFE 开放咖啡厅,共享办公室等现代生活方式业态与空间交错融合,带来更多理性的思考。华丽转身后的“图书馆”,成为融合展示、商业、办公、商务、交流等多功能的新型复合空间, 充满人文与生活气息的新型地标性文化中心。
WECAFE, shared office and other modern lifestyle formats are combined in the space, bringing more rational thinking. The newly reborn "library" has become a new type of multi-functional complex space and new culture landmark integrating exhibition, business, office, business, event and urban lifestyle.

▲ 在“图书馆”中注入复合业态,融合现代生活
New urban development brings more industrial ecological upgrades, and also brings a richer life experience for residents. More and more new complex types of business have penetrated into the urban fabric, showing strong modern human care and cultural experience, making the urban "cultural forest" more lush.
项目图纸

▲ 南师大紫金校区改造后-效果图

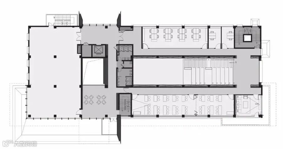
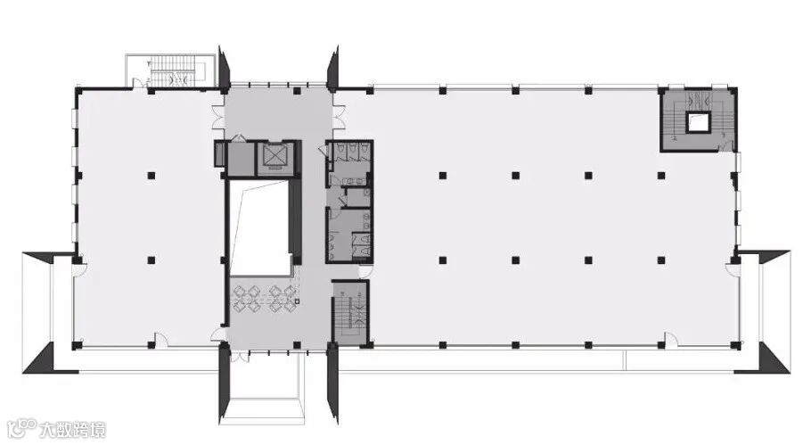
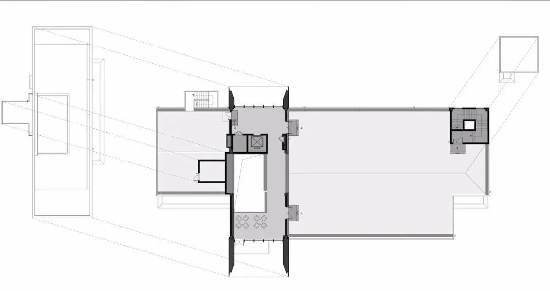
▲ 平面图 1F

▲ 平面图 2F

▲ 平面图 3F

▲ 平面图 4F

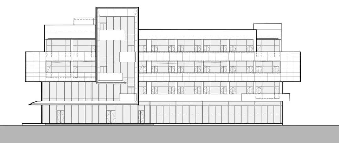
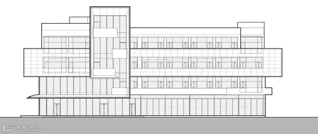
▲ 西立面图

▲ 南立面图

▲ 北立面图

▲ 东立面图

▲ 剖面图-东西向

▲ 剖面图-南北向

▲ 立面-屋顶
▲ 建筑模型-1 
▲ 建筑模型-2
▲ 建筑模型-3
▲ 建筑模型-4
项目名称:南师大玄武科技园“图书馆”
设计单位:杜兹设计
项目地点 : 南京市玄武区板仓街 78 号
项目业主 : 金地商置
项目面积 : 4170平方米 (南师大校园整体改造面积:80000 平方米)
主持建筑师 : 钟凌
建筑设计 :万涛、胡颖祺、Bruno Rodriguez、苏蒋健
室内设计:施望刚、万佳宇、项哲、周广建
软装设计:施望刚、张爽、张瑰瑰
景观设计:罗朗景观
摄影 : 吴清山
—— 作品展示、访谈、招聘 ——
搜建筑·矩阵平台
合作、宣传、投稿
请加小编微信:soujianzhu006
推荐一个
专业的地产+建筑平台
每天都有新内容
扫描二维码关注

微信公众号“搜建筑”(ID:sjz9999)
2021年·新产品方向
《 品牌地产 | 精品楼盘活动 》




