▲ 更多精彩,关注“搜建筑”
万科打造
低密度高端居住区
宽距大院联排项目以经典的“草原风”建筑
重庆的低密度滨江高端居住区万科江上明月。项目以赖特风格相乘比弗利美式建筑,因地制宜设计坡地别墅,甚至根据环境调和建筑色调,相隔半个地球向经典致敬。

总体规划图 ▲
占地面积650亩,总建筑面积87.8万方。整个项目由三大板块构成,北区为小高层、联排双拼、叠拼别墅组成,面积区间为144-199平米;南边为纯洋房居住社区,面积区间为135-225平米;中间为纯独栋定制型别墅区。

宽距大联排,全为三联牌,四联排排布,最大约38米间距举城罕有。最大约39米楼间距,低密舒适,户户皆朝中庭社区景观,多内院设计,一至三层皆有近10㎡内庭,配置双车位,光照充足,保障空间使用功能,阔绰花园,扩容生活尺度。
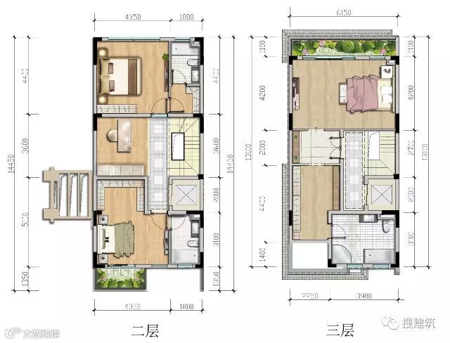
约203-269平米 宽距大院联排
A1宽距大院联排
四室两厅四卫
约268㎡

地下室采光由采光井采光升级为采光井+下沉式庭院采光,最大限度保障了地下室自然光。

在夹层,设计约5.6米开间环岛型厨房,餐厅紧连厨房,让家人享受美食与美好。
一楼增设老人房,满足不同年龄层次的需求,方便三代同堂;地面层设置内庭院,增加赠送的同时,加大了整套房子的采光面和使用功能。

二层两间儿童房,全套房设计,舒适方便。
三层整层主人生活区,最小约6.15米开间卧室,可以布置生活的多种可能。约4.4米进深的衣帽间,舒适方便。
B1联排中户
四室四厅六卫
约240㎡

负一层双车位配置,独立入户设计,彰显大宅风范。超大可拓展空间,生活从此随心而悦。

一层前厅后院配置,花草相迎循香而归。约6.3米大面宽客厅,让江景与阳光四季常驻。约3.6米阔绰层高,匹配人生卓越高度。

二层双套房设计,私密生活随心所欲。三层约81㎡奢华主卧,全主人空间设计,犒赏不凡人生。

联排效果图

联排实景图
约100-218㎡ 叠拼
D1户型 叠拼别墅叠下
218平米—— 4室4厅5卫

双车位配置,独立玄关入户
前庭后院,外加入户门廊,春闻百花秋望月
约5.7米大面宽客厅外接花园,观四季享生活
三套房设计,居家待客雍容尽显
多变功能空间,会客厅、儿童娱乐室、琴房随趣而享
D2户型 叠拼别墅叠上
168平米—— 4室2厅4卫

独门独院,有天有地,花草相迎循香而归
双车位配置,独立入户流线,尊崇空间自由舒展
三套房设计,居家待客雍容尽显
大露台设计,江岸高尔夫尽收眼底
F1户型 宽叠叠下
108平米——3室2厅3卫

电梯配置,玄关入户,尽享私密尊崇
约9.5米面宽超大横厅,多功能配置随心而悦
主卧套房配景观阳台,奢享私密居家之趣
三套房设计,居家待客雍容尽显
多功能空间布局,包容阁下藏书、玩物志趣
F2户型 宽叠叠上
111平米——3室2厅3卫

电梯配置,玄关入户,尽享私密尊崇
约9.5米面宽超大横厅,多功能配置随心而悦
超大主卧套房,配备超大景观阳台,保障主人无上私密
三套房设计,居家待客雍容尽显
顶层阔景平台,滨江盛景一览无余
超大景观露台,户外休闲尽显极致尊崇
约205㎡ 双拼别墅
205㎡的双拼别墅
五室两厅六卫

前庭设计,与千亩高尔夫亲密相处。负一层双车位配置,独立玄关入户流线更具人性化。

180°环线花园设计,与自然的美好在一起。预留独立电梯井位,予空间更多生活想象。双套房设计,静谧温馨之馀,让亲情互不相扰。双露台配置,近揽千亩高尔夫,远瞰嘉陵江湾。
约132-224㎡ 花园洋房
135㎡的花园洋房
四室两厅两卫
在户型打造上,套内约135平米四室两厅双卫,电梯直接入户的设计,还配置了步入式衣帽间、独立卫浴的主卧套房;近7米大尺度阳台,客厅、餐厅、阳台起居空间相连,南北通透采光极佳。

144㎡的花园洋房
四室两厅四卫

电梯直接入户,尊崇感强,7.2米大尺度阳台,享受无边美景,客厅、餐厅、阳台起居空间相连,南北通透采光极佳,活动露台增添生活趣味,厨卫空间舒朗,带大尺度生活阳台。

洋房效果图
洋房产品,外拥约15000㎡超大中庭,内享独立小合院。合院式布局可有效降低江边风压强度,同时为老幼独辟安全的社区活动场所。而社区大门、万平中庭、合院花园所营造的三进院落式归家路径,则赋予洋房产品别墅级的归家仪式。

洋房
万科把打造滨水作品的亲水、生态、坐标、出行四大法则运用在该项目上,在充分考虑水景、交通、距离、气候、生态等因素的情况下,根据沿江天然的坡地落差,让每一个等高线上的建筑都享受更棒的景观,并把更多的江景资源引入室内。


建筑面积:130000平方米
占地面积:80000平方米
开发商:重庆中航万科云岭置业有限公司
本资料声明:
1.本文为建筑设计技术分析,仅供欣赏学习。
2.本资料为要约邀请,不视为要约,所有政府、政策信息均来源于官方披露信息,具体以实物、政府主管部门批准文件及买卖双方签订的商品房买卖合同约定为准。如有变化恕不另行通知。
3.因编辑需要,文字和图片无必然联系,仅供读者参考;
—— 作品展示、访谈、招聘 ——
搜建筑·矩阵平台
合作、宣传、投稿
请加小编微信:soujianzhu006
推荐一个
专业的地产+建筑平台
每天都有新内容
扫描二维码关注

微信公众号“搜建筑”(ID:sjz9999)
2021年·新产品方向
《 品牌地产 | 精品楼盘活动 》



