The building’s massing is composed of two main towers connected at each level by a glazed circulation ‘bridge’. The towers are carefully positioned according to the movement of the sun and the nature of the views from the different parts of the building. The building’s position on-site also factors in a sensitive relationship to the neighboring plots, minimizing blank facades on the periphery, and integrating a back garden that benefits the different surrounding plots.
A vital element of the overall design approach is the development of a sun shading system as a second skin. The bespoke façade elements that form this latticed sunscreen are made of Glassfibre Reinforced Concrete (GRC) and float upon the glass surface of the building itself. These lozenge-shaped louvers were selectively placed to correlate with the movement of the sun through the day, helping to control the temperature of the interiors and reduce the need for energy-intensive artificial cooling.
The design of the façade was developed through an iterative process of computer modeling focusing on geometrical and formal analysis of the structure, and the resulting shade analysis with its impact on the interior spaces of the bank. Accordingly, four specific types of louver modules were developed, each with a varying angle and depth, responding to different needs of openness or shading. The different types of modules were distributed than on the façade in a tested pattern that best optimizes the interior comfort of the different levels. The structural glazing mullions were used for both a unitized glass system as well as the support of the louvers. This simplified system provides a seamless emergence of all components.
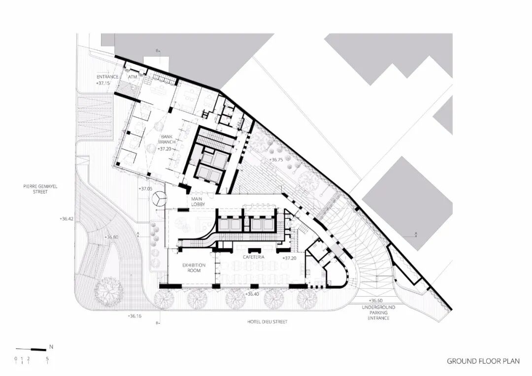
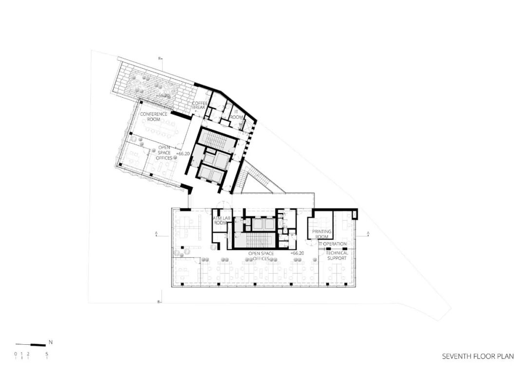
The towers themselves have arranged over eleven principal storeys, within an overall flexible floor plan that accommodates the projected growth of the bank. A retail branch is located at the ground and mezzanine levels, while a cafeteria sits at the adjacent base of the building fronted by a flexible gallery space that can be used for various cultural or social events. The offices on the floors above are punctuated with meeting rooms, common spaces, and an auditorium, offering a flexible range of functions and possibilities within one building. In addition, eight underground levels provide discreet spaces for services and parking with increased capacity to support private and public car parks. Access to the building is optimized and subdivided through various circulation cores of elevators and fire-rated staircases that meet at the ground level, with public circulation leading down to the parking levels, and private access-controlled circulation leading to the top floors. The higher levels of the bank are additionally connected via a glass floating staircase that allows a visual and direct link between the banking floors.
设计构思
2.本资料为要约邀请,不视为要约,所有政府、政策信息均来源于官方披露信息,具体以实物、政府主管部门批准文件及买卖双方签订的商品房买卖合同约定为准。如有变化恕不另行通知。
—— 作品展示、访谈、招聘 ——
搜建筑·矩阵平台
合作、宣传、投稿
请加微信:soujianzhu006
推荐一个
专业的地产+建筑平台
每天都有新内容
扫描二维码关注

微信公众号“搜建筑”(ID:sjz9999)


