▲ 更多精彩,关注“搜建筑”
什么是豪宅户型?当然是各人皆有不同的理解。
评价户型的一般标准是方正通透、动静分区、干湿分离、尺寸合理,我们认为以上这些只是评价普通户型的标准。
那么评价豪宅的标准是什么?
我认为,首先面积大小不是豪宅的标准,面积很大也不一定能称为豪宅,通过精心设计的小面积,能够适应和满足多种需求与变化也可以是豪宅。
今天我们来聊一下“年轻人的第一套豪宅”,看各大房企,如何把刚需户型玩得出神入化。
先来看几个关键词
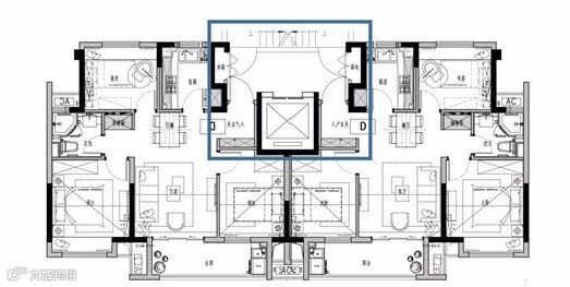
• 一梯两户,豪宅标配
• 70-80平也能做4房
• 70-80平也能三开间朝南
• 可变空间
• LDK、270°采光
......
年轻人“第一套”豪宅-面积段
先来看这个73㎡黄金切割真三房,进门带独立入户花园,可以作为拓展空间,成为3+1房。

保利·玲珑公馆坚持“Think small”的开发设计理念,推出升级版“神户型”:78平2+1房,几乎每个功能空间都做到了可以使用的开间格局,主卧3.3米,南向次卧3米,北向书房3.1米。

78平米户型示意图
下面这个建面约89㎡户型,户型方正,全明设计,每一处户型进阶都准确击中市场痛点。

美的·映海潮约89㎡户型图
近9米的大面宽,分配给阳台和两个飘窗,让阳光肆意倾泻入室内的每一个角落。采光和通风堪称MAX级别。
三室设计,动静分离,生活功能区分布在西侧,卧室统一排布在东边。无论是两口子还是有孩子的家庭,都妥妥的够用。这样的房子,未来流入二手房市场,也是永恒的“硬通货”。
梯户比
一梯两户,豪宅标配
为了进一步提高私密性与通透度,敏捷·东樾府项目增加了两个小创新。第一个是,每一层的电梯都分开在东西两端,每两户共用一个电梯厅。

图源:户型库
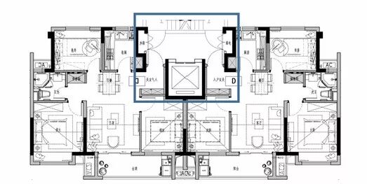
上海保利玲珑公馆整体的标准层设计,把公摊面积也降低到了极致
我们来看下标准层:一梯两户设计

不仅户型设计非常集约,整体的公共走道部分也做的非常小,北向就是横着摆的楼梯,这一部分的设计,保证了户型的得房率在80%左右,这一点在上海楼市里已经非常非常少见了。
小户型也能有更丰富的生活
① 三开间朝南
70-80平米别看面积不大,在这个发挥空间有限的面积段里,光和城项目体现了足够的产品力,入门级79㎡,竟然在这个面积段里做到了三开间朝南,并且每个房间都是全明的,优势非常突出。
小细节也十分到位,客厅带独立阳台,餐厅带玄关柜,主卧带全明梳妆间和飘窗,次卧也带飘窗……

光和城建面约79㎡户型图
天津保利云禧所有高层户型,均实现了三开间朝南,这也意味着更好的采光和通风。


建筑面积约88㎡户型样板间示意图
② 270°采光
100平米以内户型,做出140平米的客餐厅空间十分难得。


上海中集金地美兰城样板房实景图
上海万科启宸,98平米的小三房的客餐厅开窗大到5.6米,采光效果非常好。
最后交付的结果非常出乎意外▼
万科启宸样板房示意图
这样的夸张的转角窗,整体横厅的线条直接拉长了。这么一个方正空间也因为这样的设置采光和通风都更好了,整体的居住感变得更好了。
宁波金麟府建面约94㎡高层户型,三面采光+双阳台+约6米的阔景大横厅,同时主卧套房还有拥有步入式衣帽间的建面约95㎡高层边套。

建面约95㎡户型
③ 大横厅
宁波万科未来广场建面约95㎡的小户型,这也是全城热门的精装小户型。
万科未来广场建面约95㎡户型图
关于这套95㎡户型,约11米的震撼面宽,突破创新打造约5.5m的大横厅,舒适度完全可以媲美市面120㎡户型,让你拥有舒适的居住享受。

来源:户型库
广州万科95㎡四房,这个户型的亮点还是万科的大横厅设计,而且南北对流。

餐厨一体化的设计,能够加强家庭的社交性,是现在比较流行的理念。做饭的时候,可以同时照看到小孩,也能缩短传菜动线。
下面这个90㎡户型做3房设计,整体方正规整,三开间朝南。

5.5米横厅连接同面宽的阳台的设计在市面上常见的刚需户型里是比较罕见的,这也是项目的一大亮点。
⑤ 小户型的标配,开放式厨房
小户型的面积十分紧张,可谓寸土寸金。因此每一处空间都要充分利用,浪费不得。正因如此,众多小户型中基本都首选了空间利用最大的开放式厨房。
以前一般是豪宅户型才会做岛台,上海万科启宸甚至连75平户型都做了岛台,可见岛台已经作为单独的模块引入户型迭代中了。

同样我们来看92平米的户型,从过去的封闭式厨房调整为打开式的空间。

来源:真叫卢俊
很多人会说,开放式厨房不符合中式厨房的特点,因为我们做饭都是重油烟,敞开式未来会很不实用
是的,这个确实是,仅仅为了打开厨房而让油烟乱串,这样的创新没有必要
但是这就是万科厉害的地方,因为整体的设计逻辑,万科是牵动工程、设计、精装修一起参与的,所以对于这一块,精装修部分早就考虑到了

样板房示意图
整体的两侧都做了移门,在实现了空间通透性之后,厨房依然可以保持可分可和的存在,丝毫不影响未来的实际使用。
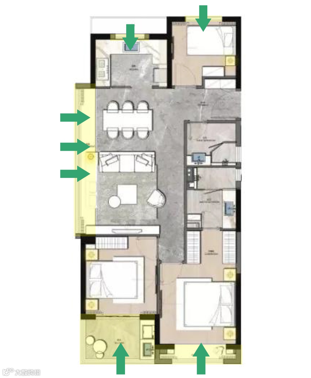
北京华樾国际,89平米3居户型,南向三面宽,南北通透。独立的入户玄关,开放式的厨房带中导台,餐客厨一体,会显得空间很大,细节处理非常到位,厨房餐厅一体化设计动线非常合理,很符合年轻人的口味。

北京华樾国际89㎡
⑥ 空间利用率
从空间利用层面,保利成熟的设计体现在,各主要房间尺度都优化得很好。

厦门保利天汇89平米户型示意图
厦门保利天汇89㎡4房,对于餐客系统,市面上的面积段是22-23㎡,保利做到了28.6㎡,多出近7㎡,相当于多一间杂物间,家庭生活尺度和想象空间,多了一大半。
次卧面积13.42㎡,比同面积段的户型大了6㎡,完全满足成年人的居住尺度,让家里的两老有更舒适的活动范围。
结语:
小户型豪宅,也有大格局!
事实上,再小的空间都可以小而美、精致豪华。摆脱思维局限,合理规划布局,小户型也能成为真豪宅!
2021年·新产品方向
《 品牌地产 | 精品楼盘活动 》
本资料声明:
1.本文为建筑设计技术分析,仅供欣赏学习。
2.本资料为要约邀请,不视为要约,所有政府、政策信息均来源于官方披露信息,具体以实物、政府主管部门批准文件及买卖双方签订的商品房买卖合同约定为准。如有变化恕不另行通知。
3.因编辑需要,文字和图片无必然联系,仅供读者参考;
—— 作品展示、访谈、招聘 ——
搜建筑·矩阵平台
合作、宣传、投稿
请加小编微信:soujianzhu006
推荐一个
专业的地产+建筑平台
每天都有新内容
扫描二维码关注

微信公众号“搜建筑”(ID:sjz9999)



