
■ 区位特质 ■
基地位于武林区块,正是杭城自古以来的繁华中心,东瞰大运河,旧时帆樯卸泊、百货登市之景犹在眼前。随着新兴商圈的纵贯铺陈,这里逐渐回归根植于市井生活的素朴,呈现阅遍了万千繁华的积淀。毗邻的新旧式住宅小区,就像密织的针脚,行走其间得以窥见城市发展的记忆。

▲ 区位总图
■ 设计策略 ■
对形体关系的处理则是基于大体量建筑对整个片区的边界效应。在尝试拆解组合后,我们选择将两幢通高的高层塔楼沿湖墅南路对称布局,强调柔和平衡的建筑关系,发挥空间场所均衡的使用效率。
两幢楼之间的下沉庭院呼应外部广场,提供了内聚型的交往场所,将室外景观从二维界面拓展至三维。直立脚柱将上下层空间贯连为一体,有效消减了楼宇可能带来的压迫感,也让建筑本身简约鲜明的形象跳脱于纷繁。
入口大堂近10米高的高透玻璃及出挑13米的无柱雨棚,将空间的商务气质从园区延续到了室内大堂。
■ 营建工艺 ■
在传统与现代,局部与整体的碰撞中,我们试图将细腻感贯穿于设计始末,将温润的建筑语言渗透至每一寸设计尺度中。立面强调匀质的竖向肌理,井然有序,同时包裹出体量的错动,塑造建筑简洁现代、典雅端庄的气质。

为顺应谦和而精致的建筑形象,表皮材料以玻璃铝板为主,并通过妥帖的玻墙比例、精准的构造处理和材料搭接,在形体的沉稳与轻盈之间达成平衡。
▲ 建筑幕墙节点模型
■ 结语 ■
在与其所处环境的交互中,建筑个体得以诠释自身的独特品质,滨绿大厦也不例外。当城市的高速发展催生愈加外显的形式主义,回溯本源的设计更秉承为城市服务的理念,不刻意标榜自身,动静相宜的个性在城市的日夜交替中却已了然。

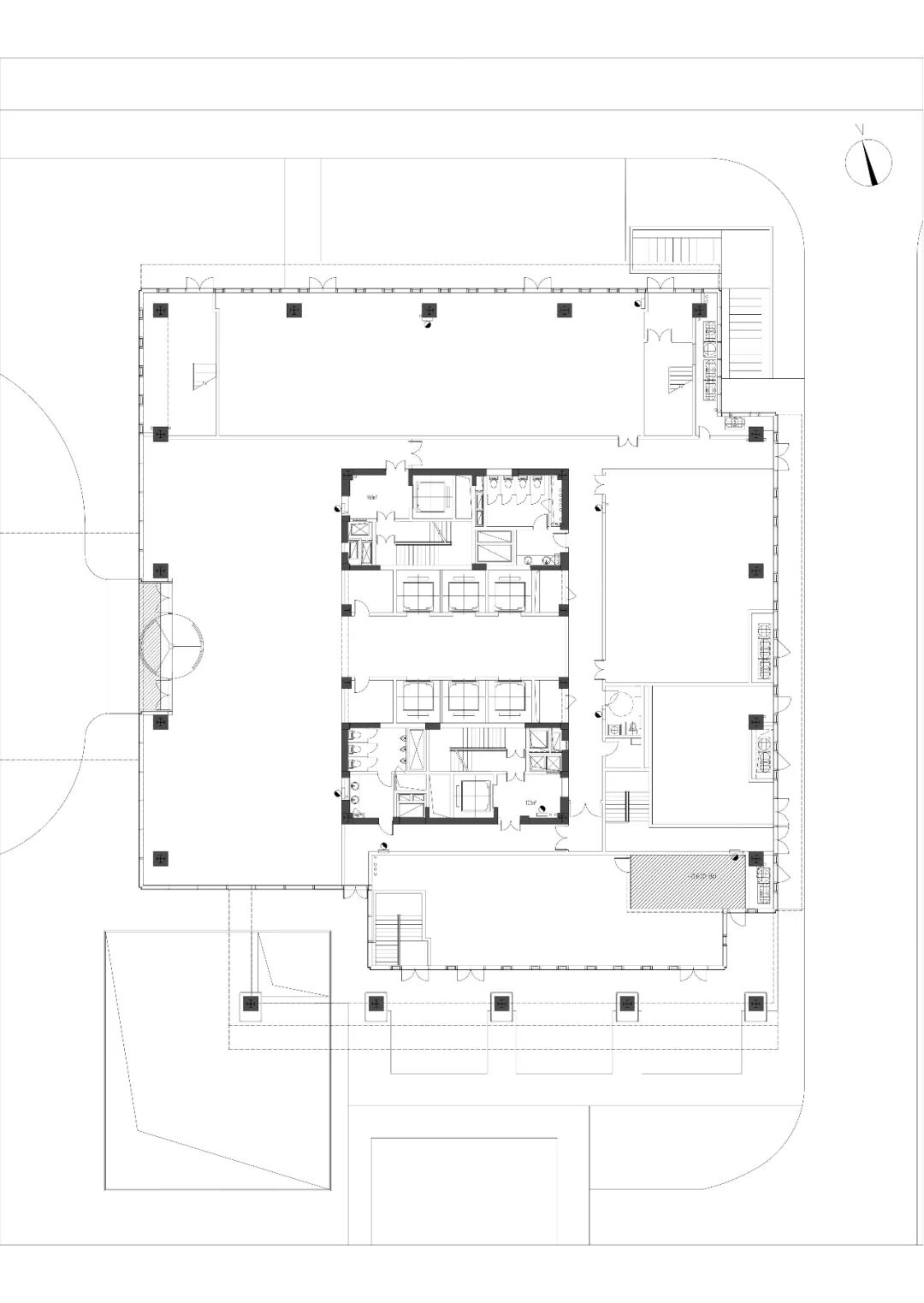
■ 项目图纸 ■

▲ 首层平面图

▲ 西立面

▲ 剖面图
项目名称:滨绿大厦
项目地点:浙江,杭州
详细地址:湖墅南路66号
项目类型:综合办公楼
设计时间:2013年6月
建成时间:2019年10月
项目规模:108440㎡
设计单位:gad
项目总监:蒋愈
项目主创:苏玲
完整团队成员
建筑:蒋愈 李伟 苏玲 赵亮 谢永亮
结构:方巽科 李保忠 汪光满 彭智 郭峻
给排水:戚乙 吴文坚 沈晓伟 谢良林
暖通:崔大梁 戚乙 沈锋强 姚国财
电气:卓祖航 孙淑绒 刘传谱
其他参与者
业主:杭州滨绿房地产开发有限公司
摄影:shiromio studio, gad
结构手法:钢管混凝土框架-核心筒结构
建筑材料:金属玻璃
—— 作品展示、访谈、招聘 ——
搜建筑·矩阵平台
合作、宣传、投稿
请加小编微信:soujianzhu006
本资料声明:
1.本文为建筑设计技术分析,仅供欣赏学习。
2.本资料为要约邀请,不视为要约,所有政府、政策信息均来源于官方披露信息,具体以实物、政府主管部门批准文件及买卖双方签订的商品房买卖合同约定为准。如有变化恕不另行通知。
3.因编辑需要,文字和图片无必然联系,仅供读者参考;
推荐一个
专业的地产+建筑平台
每天都有新内容
扫描二维码关注

微信公众号“搜建筑”(ID:sjz9999)


