▲ 更多精彩,点击关注“搜建筑”
当大平层还未坐暖楼市“第一把交椅”的时候,又涌现了另一种倍受改善客群青睐的产品——跃层,城市人的改善需求正潜移默化地改变。
大平层产品和跃层墅居两种,那么,这两个产品究竟哪个才是终极改善的选择呢?

重庆世茂璀璨天城跃层示意图
什么是跃层
所谓跃层即是一套住宅占两个楼层,不同于复式、LOFT,跃层住宅的层高和普通平层基本一致,总层高在6m左右,住宅内部有楼梯而不需要经过公用电梯来连接上下层。
跃层的优势和劣势
优势:
• 稀缺性:“禁墅令”,老生常谈,已经不算新鲜事,跃层产品自带稀缺属性。
• 空间:跃层墅居通过上下两层的空间重叠,动静分离、私密性强、空间功能丰富,可以实现大平层没有的百变空间尺度,得房率也更高;
• 居住体验:跃层墅居,有天有地、揽园观景、纳藏自然的诗意生活,蕴藏着居住情趣,这种体验是大平层无法比拟的;
• 大“室”所趋:三胎政策开放后,家庭人员数量的增加,跃层户型的优势也被越来越多的人们认可。
劣势:
跃层必须在室内做楼梯,即增加自己的公摊面积,不可避免地造成部分空间浪费。
大多数跃层产品在功能分区上,往往会比大平层做的更好,通过对区域的精准分割,有效降低居住成员之间的干扰因素,提升私密性。
动静分离,科学布局
科学的动静分区,能决定未来居住舒适度。比如武汉金地·城与城93㎡户型,约5.8m真两层的层高,上下独立空间互不干扰。

武汉金地·城与城93㎡户型图
楼上楼下双层格局设计,上层可作为夫妻私密空间,保证主人的尊贵感和归属感。下层可设置老人房,兼顾老人的健康和生活习惯。以及专属儿童房,为孩子打造童梦空间 ,真正过上1+1>2的幸福生活。


武汉金地·城与城样板间实景图
再比如成都武侯金茂府约163㎡跃墅户型惊喜连连。一般163㎡只是一个平层产品,而金茂把它做成了立体产品,加了楼梯成为跃墅,划分了两种世界,无论是在空间布局上,还是在生活布局上都做到了科学规划。
双层将动区与静区很有条理的科学分开,上层与一楼公共空间互不干扰,楼上楼下居住私密度完全可以保障,静享安静、沉稳的独处时光。
成都武侯金茂府约163㎡户型图
一层的长辈套房,带有独立卫生间,公共空间客厅+餐厅+厨房+开放式岛台,超50㎡餐客厅空间,L型厨房与开放式独立岛台相连,南向约8米的阔尺阳台与餐客厅相连,视觉上扩大了整个空间的尺度感。

成都武侯金茂府一层实景图
二层为一个主卧大套房,整体大而全面,独立步入式衣帽间,超大卫生间带独立大浴缸、淋浴间、独立马桶、双洗面台五件套。
双层生活,有家庭互动的同时,也有独立相处的空间,让居家生活在热闹与宁静间自由切换,充分满足了物质与精神需求。
这样的双套房设计,完美平衡了两代或三代人的生活空间。
成都武侯金茂府的户型中,采用了院落式的户外大阳台设计,尺度奢华的阳台把阳光请进家里,让成都的阳光照到房子的每一个角落。

武侯金茂府二期约186㎡户型图
室外的风景和室内生活从此联通,居者从正面和侧面皆能欣赏到不同的风景,以此延展生活的宽度,营造出生活的美感。
区别于传统的跃层设计,武侯金茂府二期186㎡的户型,客厅直接挑高6.2米。9.3米的景观阳台,除了可以作为生活阳台,还可以作为一个休闲空间,精致的小茶室或者户外吧台,周末邀上三五好友,把酒言欢。关注经典人居
双套房设计,独立衣帽间、卫生间,均可单独采光。
二楼只有一个主卧大套房,与一楼互不干扰,楼上楼下居住私密度完全可以保障。
武侯金茂府样板间实景图
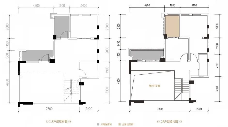
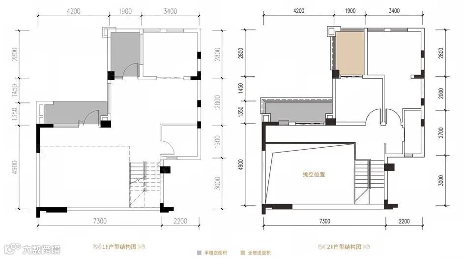
重庆世茂璀璨天城约144㎡跃层洋房的挑空部分的层高为6.6米。

重庆世茂璀璨天城跃层示意图

重庆世茂璀璨天城约144㎡户型图
每个单元的底跃皆可拥有约4.2米的入户门厅直接与客厅相连,更有宽约4.2米的大露台配置,将更多阳光和风光招揽入怀,让居者生活在都市也能感受隐逸的乐趣。

无锡世茂璀璨时光约220㎡户型图
① 局部挑空,空间感设计
老子在《道德经》中提出:“凿户牖以为室,当其无,有室之用。故有之以为利,无之以为用。”建筑与空间的适当安排,可以起到虚实相生、浑然一体的效果。
跃层上下层只有楼梯的连接,而现在市场上更多地出现了客厅部分挑空的设计,成为一个点晴之笔。
比如重庆融创九阙府的跃层,建筑面积约179㎡,套内面积约146㎡,四室两厅两卫。楼上楼下有效连成一体,使室内有一定的高差,形成立体空间。
重庆融创九阙府约179㎡一层户型示意图
首层,南向约16.5米面宽,首层三房布置,满足三代同堂。约7.2米大横厅连接同宽南向超大景观阳台,能最大化的享受资源。首层主卧豪华套房设计,私享独立卫浴,独立衣帽间,给予生活更多私人空间。全都是明厨明卫,可谓是锦上添花了。

重庆融创九阙府约179㎡二层户型示意图
跃层为休闲空间,客厅直接挑空,整个房间马上进入奢华高大上的节奏。
跃层户型创新L型咬合式结构示意图
320㎡跃层/六房两厅七卫
双厅独立入户,独立私密玄关,一层5.4m架空入户大堂,边户两面开敞双厅+55㎡怡人空中转角花园;中间户为确保每户花园视线通畅及私密安全性,分户实墙遮挡:南北通透双厅+55㎡南北双花园。

240㎡跃层/五房两厅七卫
一般住宅顶底楼诞生“跃层产品”,可以实现“墅质”生活感受,享受双重空间体验,但遗憾的是顶底跃数量十分稀少,因此,备受改善家庭重视。
一层留给生活,一层留给美好
① 顶跃
比如杭州保利欣品华庭洋房顶楼设计了带有双向超大阳台的跃层产品。

杭州保利欣品华庭约154㎡户型图
约154㎡的顶跃,动静分区明显,一层可以做老人套房带卫生间,行动十分方便, 客厅+开放式书房一体化,外连约6.5米大阳台,二层主卧超大套房设计,带衣帽间和卫浴间。

杭州保利欣品华庭约165㎡户型图
约165㎡的顶跃,楼下呈现三开间朝南的格局,拥有约10米大面宽,楼上更打造了一整层的超级主卧套房,开间约4米,2米宽的舒适大床简直轻松放入不在话下,整个房间包括走入式衣帽间、卫浴一应俱全,实现起居的私密与独立性。

重庆金辉玖珑云璟约129㎡户型,一层约6.6米横厅设计,三个卧室,其中的一个套房可以作为老人套房使用,方便老人活动。二层豪华主卧套房,带环形露台,满足多种生活想象。

重庆金辉玖珑云璟约129㎡户型示意图
比如成都龙湖花样年·春屿溪岸建面约290㎡的顶跃。
一层约7.55米宽境横厅,提供了无限空间想象;一体式中西双厨的设计,满足主人的美食幻想。约4米开间的豪华套房主卧,主客卧做了细致分区,保证家人私密生活的同时,也为每一位家庭成员创造专属的生活方式。关注经典人居
二层约7米的主卧开间,面积超50㎡,是主人释放生活情趣的绝妙场所。附带超大露台,实现真正有院子的理想生活。
滑动查看更多
成都龙湖花样年·春屿溪岸顶跃约290㎡、约170㎡户型示意图
② 底跃
“采光不好,阴暗潮湿”,说到底跃,首先想到的就是这两个诟病。
但是现在,随着建筑技术水平的提高和房屋设计理念的升级,底跃早已大不同!
比如南京正荣江望润府的底跃:不仅扩充了面积附加,使业主居住的舒适度得到提高,并且在采光通风方面也有了全面的进阶。

南京正荣江望润府约260㎡户型图
底跃夹层可独立入户,利用三面采光井在空间采光上延伸出了更多的可能。
楼梯位于阳台,不会影响活动空间,地下车库等设备用房也使得下跃户型不必接触土壤,不用担心潮湿等问题。

南京正荣江望润府约286㎡户型图

南京江望润府一层样板间实景图
结语:
跃层房源在市面上属于稀缺产品,只有少数开发商会推出,有“空中别墅”的美名。跃层是通过夹层复合,提高住宅使用面积,与一般层高和面积相同的住宅相比,可有效提高土地利用率。
2021年·新产品方向
《 品牌地产 | 精品楼盘活动 》
本资料声明:
1.本文为建筑设计技术分析,仅供欣赏学习。
2.本资料为要约邀请,不视为要约,所有政府、政策信息均来源于官方披露信息,具体以实物、政府主管部门批准文件及买卖双方签订的商品房买卖合同约定为准。如有变化恕不另行通知。
3.因编辑需要,文字和图片无必然联系,仅供读者参考;
—— 作品展示、访谈、招聘 ——
搜建筑·矩阵平台
合作、宣传、投稿
请加小编微信:soujianzhu006
推荐一个
专业的地产+建筑平台
每天都有新内容
扫描二维码关注

微信公众号“搜建筑”(ID:sjz9999)







