项目位于上海市山阴路风貌保护区,虹口四川北路2000号,溧阳路交界处,场地面积: 7960.5㎡,建筑面积: 59715㎡。
▲ 项目鸟瞰 ©建斐建筑咨询(上海)有限公司 & 张立
山阴路风貌保护区完整记载了一个世纪前的中国新文化运动历程,时代更迭,21世纪的我们希望创造并构建全新的互联环境,给历史旧区带来更多的可能。GreenbergFarrow为上海宝华集团设计的虹口宝华商业广场即将开业,它是一个以“生活、社交、办公”为主题,集零售、美食、服务、娱乐、办公等多种业态于一体的新型商业办公地标。项目的成功落成也展现了宝华集团独特的商业眼光。
▲ 宝华商业广场区位图 ©建斐建筑咨询(上海)有限公司
▲ 集多种业态于一体的新型商业办公地标 ©建斐建筑咨询(上海)有限公司 & 张立
▲ 商业入口 ©建斐建筑咨询(上海)有限公司 & 张立
我们的设计愿景是创造一个令人印象深刻的零售空间&社区公共中心。
建筑立面模拟山谷的形态,模仿天然翡翠石的纹理和首饰折叠艺术来展现洞天之美。设计最大限度的规避了建筑体对周围居民楼光照的影响。同时通过建筑体量所形成的层层退台,将成为人们室外休息的区域,在避开周边喧闹街道影响的同时,可俯瞰周边历史保护建筑。
▲ 山谷形态 ©建斐建筑咨询(上海)有限公司 & 张立
▲ 层层退台带来室外休息区域 ©建斐建筑咨询(上海)有限公司 & 张立
大面积高反射玻璃被运用到外立面上以提高光反射率,特殊形态的金属折板立面也减少了对周边建筑的光污染。通风口也被完美的设置在了外立面铝制折板旁边,在不影响功能的情况大,最大程度地保留的建筑体的美感。
▲ 从室外广场望向建筑 ©建斐建筑咨询(上海)有限公司 & 张立
▲ 入口夜景 ©建斐建筑咨询(上海)有限公司 & 张立
▲ 金属折板立面夜间视角 ©建斐建筑咨询(上海)有限公司 & 张立
室内设计方面,商业区域,内部中庭部分立面采用通透的玻璃幕墙,此设置使得阳光可以直接从三楼照射到B1层,而在材质的选择上,除了和建筑设计和谐统一,我们也运用了人造石铺贴和木纹地砖以彰显项目位于历史保护区域这一特质,在发挥现代化设计迎合当代消费者需求的同时,也保留了其特有的文化属性。
▲ 中庭交通空间 ©建斐建筑咨询(上海)有限公司 & 张立
▲ 首层空间 ©建斐建筑咨询(上海)有限公司 & 张立
▲ 中庭天窗 ©建斐建筑咨询(上海)有限公司 & 张立
▲ 从屋顶俯瞰天窗 ©建斐建筑咨询(上海)有限公司 & 张立
办公区域,Greenbergfarrow 设计师选用了金属板,白色石材,深色不锈钢,亚克力透光板等材料营造出高端大气的办公氛围,同时每一层办公室都有直接通往室外露台的通道。为未来入驻租户提供高品质的工作空间。
▲ 办公入口 ©建斐建筑咨询(上海)有限公司 & 张立
项目采用BIM技术从概念设计到施工协调生成。所有技术图纸、现场协调均采用BIM模型。所有建筑材料和部件均在当地采购;机电通风系统采用VRV系统。建筑上部结构整体采用混凝土结构,节能高效,寿命周期长,成本低。外立面面板集成可操作的通风口,允许自然通风。
▲ 户外庭院 ©建斐建筑咨询(上海)有限公司 & 张立
项目刻画了虹口四川北路版块商业新场景、城市新场景、生活新场景和办公新场景,4层商业和零售空间在服务周边居民的同时也可以支持办公租户。办公空间既有独立的办公单元,也有灵活的合作办公空间。宝华商业广场将带动区域商圈价值升级、递交城市地标新名片、满足周边消费者对精致生活和社交空间的强烈需求以及区域内企业对于高品质办公空间的深切要求。
▲ 夜间鸟瞰 ©建斐建筑咨询(上海)有限公司 & 张立
▲ 宝华商业广场景观规划 ©建斐建筑咨询(上海)有限公司
▲ 宝华商业广场设计图 ©建斐建筑咨询(上海)有限公司
▲ 宝华商业广场设计图 ©建斐建筑咨询(上海)有限公司
▲ 宝华商业广场设计图 ©建斐建筑咨询(上海)有限公司
▲ 宝华商业广场设计图 ©建斐建筑咨询(上海)有限公司
▲ 宝华商业广场设计图 ©建斐建筑咨询(上海)有限公司
▲ 宝华商业广场设计图 ©建斐建筑咨询(上海)有限公司
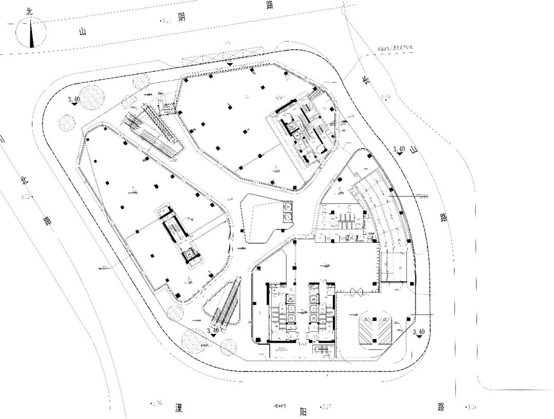
▲ 宝华商业广场1楼平面图 ©建斐建筑咨询(上海)有限公司
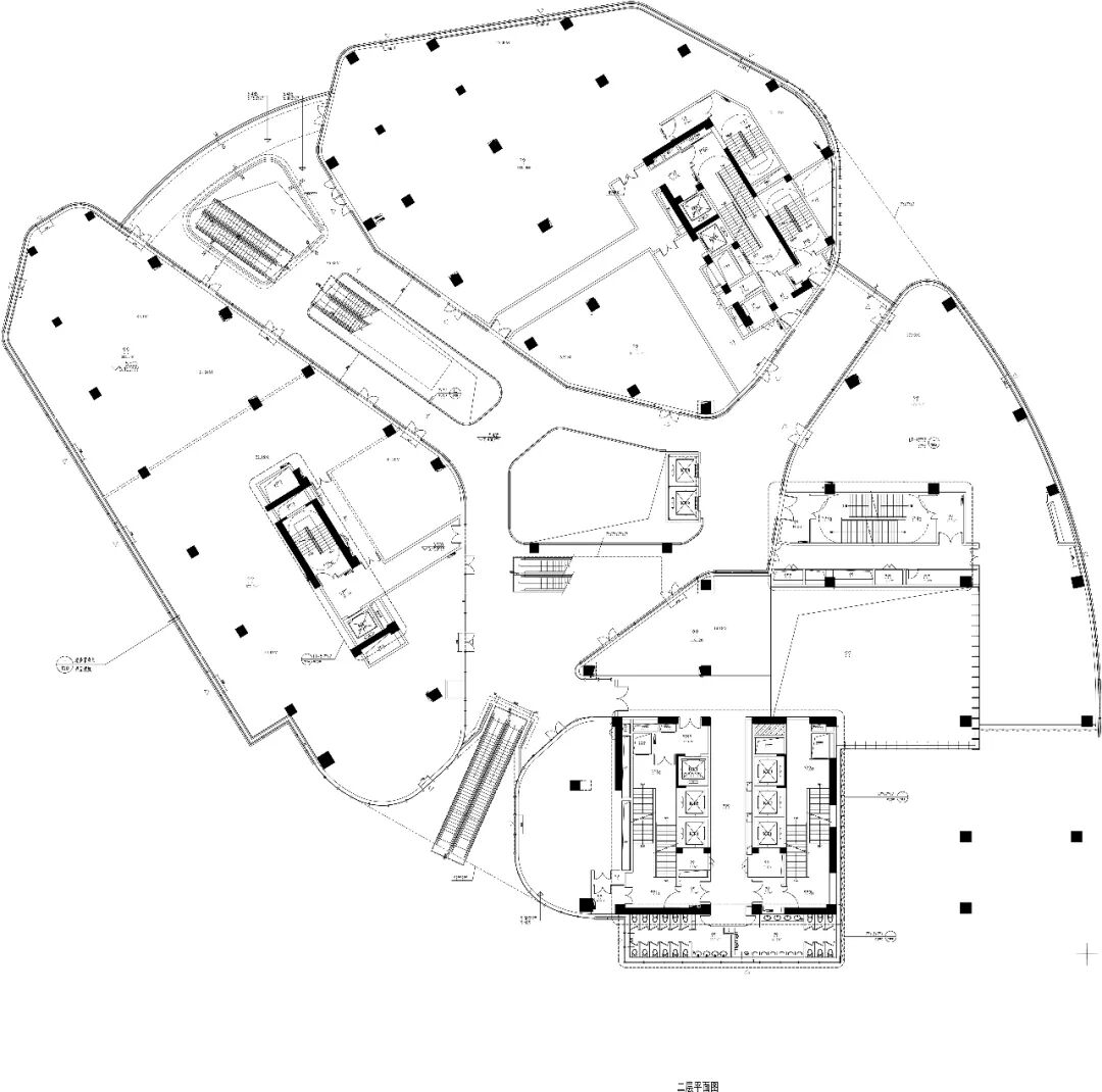
▲ 宝华商业广场2楼平面图 ©建斐建筑咨询(上海)有限公司
▲ 宝华商业广场3楼平面图 ©建斐建筑咨询(上海)有限公司
▲ 宝华商业广场4楼平面图 ©建斐建筑咨询(上海)有限公司
▲ 宝华商业广场5楼平面图 ©建斐建筑咨询(上海)有限公司
▲ 宝华商业广场立面图 ©建斐建筑咨询(上海)有限公司
▲ 宝华商业广场立面图2 ©建斐建筑咨询(上海)有限公司
▲ 宝华商业广场平立剖细节图 ©建斐建筑咨询(上海)有限公司
▲ 宝华商业广场剖面图01 ©建斐建筑咨询(上海)有限公司
▲ 宝华商业广场剖面图02 ©建斐建筑咨询(上海)有限公司
公司网站:www.greenbergfarrow.com
联系邮箱:monica.lu@greenbergfarrow.com
项目设计 & 完成年份:2017-2021&2021
主创及设计团队:Scott Loikits,James Lew
本资料声明:
1.本文为建筑设计技术分析,仅供欣赏学习。
2.本资料为要约邀请,不视为要约,所有政府、政策信息均来源于官方披露信息,具体以实物、政府主管部门批准文件及买卖双方签订的商品房买卖合同约定为准。如有变化恕不另行通知。
3.因编辑需要,文字和图片无必然联系,仅供读者参考;
搜建筑·矩阵平台

合作、宣传、投稿
请加小编微信:soujianzhu006
推荐一个
专业的地产+建筑平台
每天都有新内容
扫描二维码关注

微信公众号“搜建筑”(ID:sjz9999)