The property at 1 Lonsdale has been owned by a local family for three generations. When the existing building was reaching the end of its lifespan, the family chose to use this as an opportunity to develop a new three-storey, Passive House building that would serve as a sustainable benchmark for the fast-changing Lower Lonsdale District.
The intent of the design was to create a contemporary interpretation of the brick-clad, heavy timber, warehouse buildings that formed the backbone of the working waterfront. Along with the sustainable ambitions for the project, the new building presents the Lower Lonsdale District with the familiarity and ‘grounded’ feeling of a dark, glazed brick building that reads as a ‘skin’ for the mass timber frame, as opposed to a traditional ‘solid mass’ building. The fenestration on the building’s upper two floors has been ‘randomly’ distributed to offer visual interest and relief from the predictable facades typical in commercial buildings. Special attention has been given to signify the corner of Lonsdale Avenue and Carrie Cates Court by eroding the brick facade on the upper floors to express the mass timber structure through a PH curtainwall system while offering the upper floor occupants stunning views of Vancouver harbour.
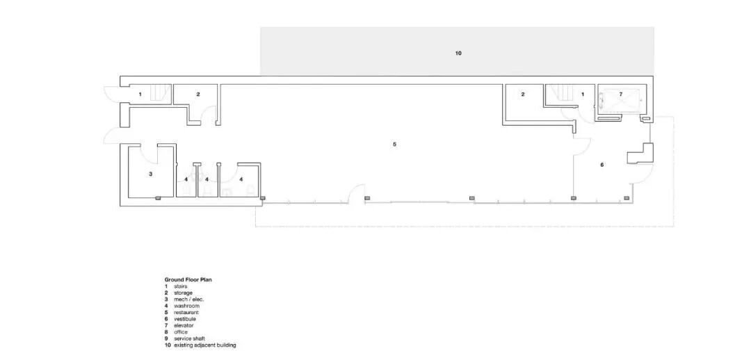
All this said, the most remarkable aspect of the project is the innovations in prefabrication and mass timber construction methodologies. The project faced a number of building code challenges including the use of a CLT and glulam structure and the need for a zero lot line ‘non-combustible party wall. Factoring in the complexity of PH airtightness and restricted thermal bridging requirements, a system of pre-fabricated insulated, 2x8 vertical wall panels was used for the three ‘visible’ sides of the building. A series of CLT panels with the membrane, exterior insulation, and cladding pre-installed were then used to create the north wall whilst providing the necessary fire rating.
本资料声明:
1.本文为建筑设计技术分析,仅供欣赏学习。
2.本资料为要约邀请,不视为要约,所有政府、政策信息均来源于官方披露信息,具体以实物、政府主管部门批准文件及买卖双方签订的商品房买卖合同约定为准。如有变化恕不另行通知。
3.因编辑需要,文字和图片无必然联系,仅供读者参考;
—— 作品展示、访谈、招聘 ——
搜建筑·矩阵平台
合作、宣传、投稿
联系微信:soujianzhu006
推荐一个
专业的地产+建筑平台
每天都有新内容
扫描二维码关注

微信公众号“搜建筑”(ID:sjz9999)


