▲ 更多精彩,点击关注“搜建筑”
未来城市缩影丨龙华合正观澜三期
柏涛建筑设计(深圳)

随着深圳龙华新区经济的快速增长,中心区域呈现出高容高密的发展状况,城市高容高密不可避免的出现居住环境问题:土地该如何集约高效的利用?如何满足人口居住的舒适性?居住空间与城市未来的发展该如何相互融合?这些都是龙华区城市更新项目的首要考虑因素。
密集的城市钢筋铁网内,让人透不过气。川流不息的人潮里,无处去安放心境的闲歇。此刻,是否想建立起边界感,幻想着亲近山水、亲近生活的都市空间,“浮生偷得半日闲”的诗意会不会成为现实,而观澜汇三期城市更新项目就是为区域及城市打造“一座蕴藏山水的自然宜居城”。

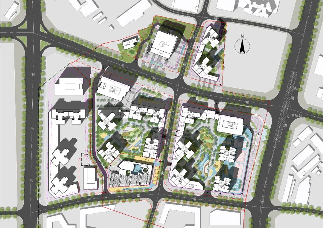
项目位于观澜大道旁,距离茜坑站500米辐射范围内,区位公共交通体系发达,但内部道路缺乏;周边环境具有成熟的城市街区,人文及自然要素丰富;项目东/北侧为住宅项目,西/南侧为旧村、工业,城市品质亟待提升。

道路交通、周边环境
场地现状
高容高密是龙华区域一直面临的挑战,当容积率接近或达到 9.0 时,会带来人居环境质量下降、开放空间缺失、社会交往空间减少等问题。

总平面图
项目区域容积率成倍增加时,如何通过设计优化城市界面与人居空间,解决“高容高密”的难题,是设计团队首要需要考虑的方向。


融合观澜山水印象,塑造场所记忆,与自然对话。打造观澜片区集生活、购物、生态、健康为一体化的新形象。

此外植入多层次绿地空间,弥补高容高密社区生态环境缺失,利用架空层、避难层、屋顶层植入立体花园,增加绿化率,提供休闲场所,从而打造自然宜居的生活场所。

山水与惊云的立面设计理念,将美观与实用所兼备。商办立面融合观澜山水印象, 塑造场所的印记。

办公通过竖向构件的宽度变化,形成渐变肌理。折叠的穿孔板部分面,减少太阳直射,缓解光污染,节约能源消耗,同时节省了造价,控制了成本。办公通过在南北两侧设置三角面,引导视线,降低与保障房的视线干扰。

住宅立面通过片墙与框的组合,强调立面的完整性与精致度。


商业、产业群、生活休闲三位一体的空间营造,便捷日常所需。观澜大道界面——观澜大道宽60m,为城市快速路。设计将结合观澜大道发展轴这一重要城市展示面打造具有标志性的活力商业界面。
观兴南路界面——观兴南路宽45m,为城市主干路,通往西部产业集群主要门户。项目本身应结合产业配置序列,打造城市的产业集群界面。

植入多层次绿地空间,营造全新的未来社区空间格局。以全龄化体系构建,形成老、中、青的综合参与场所。
构建复合交通系统,提高高容高密社区交通使用效率,地铁与地下商业、公交首末站、地库与地下大堂做到无缝连接。
设计团队在幼儿园空间的设计上,遵循连续的地面、活动场地最大化、营造童趣空间的主旨。将场地划分为两个台地,平接周边道路。西侧结合高差,布局建筑主体。


同时获得比较完整的活动场地,底层架空,形成一个风雨操场,作为活动场地的延伸,同时防止高空坠落,提升安全性。

项目档案
位置:深圳龙华区
业主:合正地产
建筑设计:柏涛建筑设计(深圳)有限公司
用地面积:71365.26m²
计规定容积率建筑面积:612360m²
业态:超高层办公、超高层住宅、集中商业、公共配套
容积率:8.58
设计主创:赵晓东,朱维吉
设计团队:黄旭,林少蓬,胡俊雄,林海辉,林榕蓉,杜康佳,杨朝杰,娄雅欣,陈实、蔡力权
设计部门:设计四部
本资料声明:
1.本文为建筑设计技术分析,仅供欣赏学习。
2.本资料为要约邀请,不视为要约,所有政府、政策信息均来源于官方披露信息,具体以实物、政府主管部门批准文件及买卖双方签订的商品房买卖合同约定为准。如有变化恕不另行通知。
3.因编辑需要,文字和图片无必然联系,仅供读者参考;
搜建筑·矩阵平台

合作、宣传、投稿
请加小编微信:soujianzhu006
推荐一个
专业的地产+建筑平台
每天都有新内容
扫描二维码关注

微信公众号“搜建筑”(ID:sjz9999)