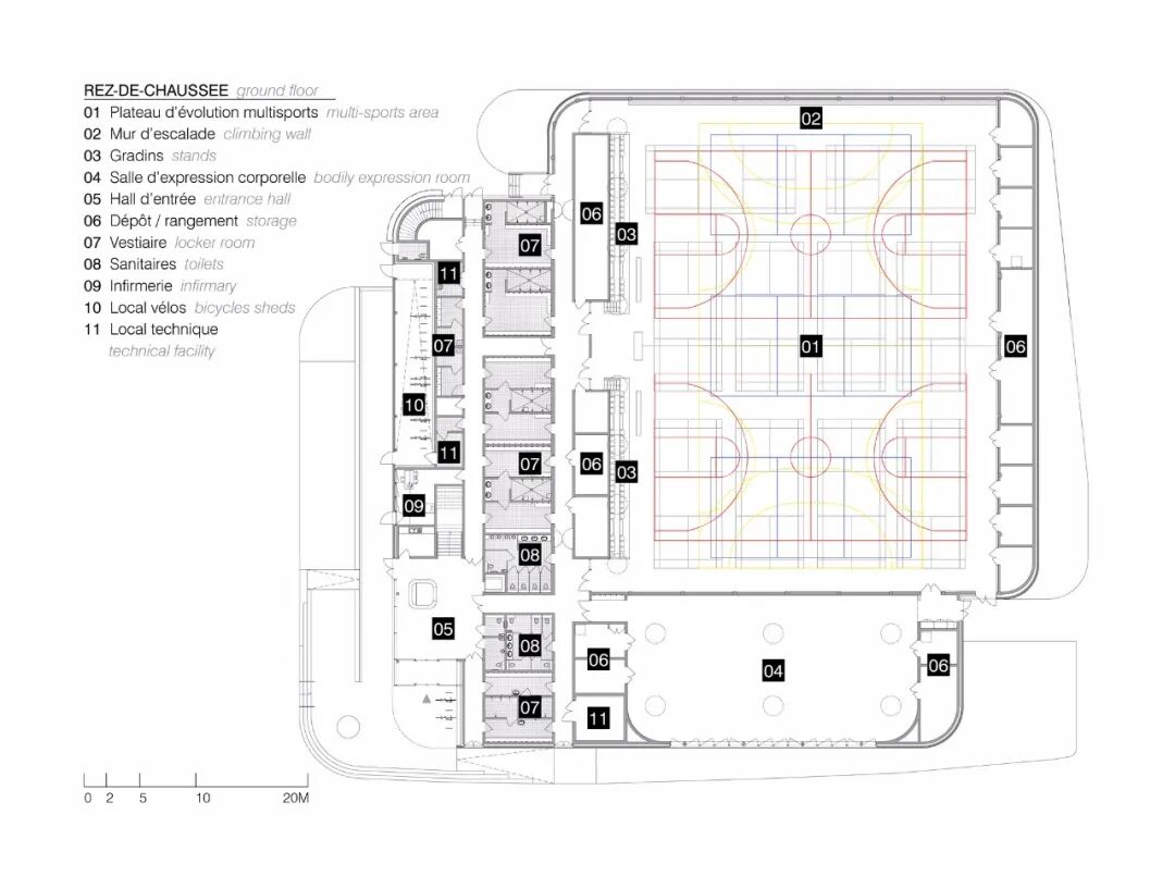
体育馆是Minais区发展的关键项目,它被写成一个缠绕,以景观尺度的姿态统一整个方案。该项目由三个主要元素组成:综合运动区、身体表达室和服务区。围绕综合运动区的高容量组织成一个阶梯状的环,正交的隔断决定了每一边的用途和部门很容易进行公共或非公共练习。从地面的过渡,分级阅读的尺度,最大限度地减少了建筑的垂直度,软化了与环境的关系。
Key project in the Minais district’s development, the sports hall is written as a winding that unifies the entire programme in a gesture on the landscape scale. The project is composed of three main elements: the multi-sports area, the bodily expression room and the service areas. Organised in a stepped ring around the high volume of the multi-sports area, the orthogonal partition determines a use on each side and sectors easily practices with or without public. The transition from the ground, grading the reading scales, minimises the verticality of the building and softens the relationship with the environment.
建筑系统是基于墙和地板的混凝土底层。新出现的体量是由金属框架制成的,在综合运动区的梁柱达到40米。带有外部隔热层的三层外墙构成了一个统一的围护结构。立缝包层由穿孔和不透明的铝板组成,以不同的水平线铺设。在这个统一的覆层中,主入口和露台作为主要元素立即显现出来。
The construction system is based on a ground floor level in concrete for walls and floors. The emerging volumes are made of metal frame with beams reaching 40m in the multi-sports area. A triple-skin façade with external insulation constitutes a uniform envelope. The standing seam cladding is composed of perforated and opaques aluminium sheets laid in variable horizontal lines. In this unitary cladding, the main entrance and the terrace are immediately revealed as major elements.
该项目以安静和明亮的色调编写,创造了内外平静和宁静的气氛。
The project is written with quiet and bright tones created calm and serene atmospheres both inside and outside.
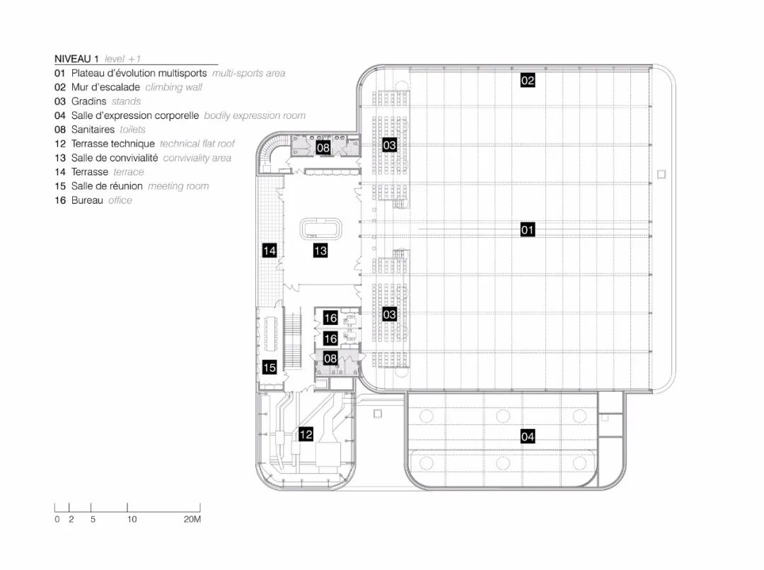
俱乐部、体育协会和学校团体位于一层,而观众则设置在一层。一个大楼梯将公众引向看台和接待区。
The clubs, sports associations and school groups are located on the ground floor, while the spectators are installed on the first floor. A large stairway leads up the public to the stands and to the reception area.
接待室采用了宽大的玻璃,既向多运动区开放,也通过可进入的露台延伸的长窗向公园开放。
The reception room, generously glazed, is open both to the multi-sports area and toward the park through a long window extended by an accessible terrace.
建筑师:Bohuon Bertic Architectes
搜建筑·矩阵平台

合作、宣传、投稿
请加小编微信:soujianzhu006
推荐一个
专业的地产+建筑平台
每天都有新内容
扫描二维码关注

微信公众号“搜建筑”(ID:sjz9999)