来源:POLY技术汇 ID:POLY-Technology
01
必须清醒。2016~2018年是天津楼市的最后一次普涨行情。随着国家政策的不断调控、天津的限价、限购政策不断出台,楼市正在去政策套利化,货币土壤也消失了。目前板块行情,甚至单盘行情,才是天津楼市的常态。但板块资源可以共享,想要有拿得出手的漂亮数据,就得有一个过硬抗打的产品。
和光尘樾。承载了“和光系”产品基因的和光尘樾于2020年12月首开,开盘至今9个月时间,销售额已达24亿,被业内称做 “现象级红盘”,这与项目自身的“硬气”不无关系,是产品力最直接的证明。
和光尘樾项目区位图
和光尘樾项目位于西青精武镇板块,交通便利,配套相对完善,但周边竞品众多。作为一个建面约47万平米的体量大盘,如何能在竞争激烈的市场中杀出重围,成为“最靓的仔” 是本案设计的核心命题。
项目所在精武镇板块是西青流量集中地,品牌开发商集中,同期在售项目较多,且在售产品的面积段、户型均类似。2020年初,通过市场调研去挖掘客户对房子的真正需求。
“从市场中来,到客户中去”,客户需求找准,定位不会跑偏。
目标客群的敏感点序列决定了和光尘樾的户型设计核心轴为在总价控制原则上,极致提高功能性。
结合大盘对相对丰富的产品线的需求,以及与拾光年项目产品面积段的互补与联动,最终和光尘樾项目形成76、80、89、99、113、127的面积段分布,全面覆盖青年之家到三代同堂的各类家庭对居住功能的需求。
后疫情时代,人们的居家时间变多,对居住体验的要求也同步提高。在更小的面积中做到更通透的空间,拥有更强大的功能,提供更多样的生活场景想象是和光尘樾的户型亮点。
“麻雀虽小,五脏俱全”的80㎡两室一卫产品是全能空间的代表。总价低,但客厅开间5.3m,是一个多功能可变空间,保证产品基础尺度的极致功能性和舒适性,南北通透的LDK类洋房空间满足后疫情时代防疫通风需求。
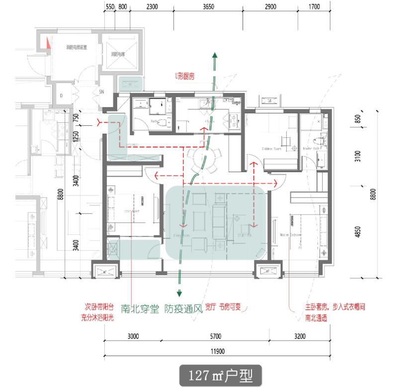
全能空间的另一位大将127㎡三室两卫,是一个配置5.7米超大宽厅的双阳卧户型。双阳卧均带飘窗,且其中一卧带阳台,内可纵享阳光、外可阅览四季美景。5.7米宽厅赋予改善客群更多空间组合的可能性。
87㎡三室两卫产品,在保利·拾光年87㎡的基础上进一步优化户型格局,提升空间尺度的舒适性。面积虽小,却能满足三代同堂的居住需求。
99㎡三室两卫产品,在保利·拾光年95㎡的基础上进行微创新,增加功能点,如卫生间干湿分离、独立玄关空间、3.5米客厅升级为4.2米宽厅、次卧面宽增加0.5米等,极致提高99㎡产品的性价比。
保利·和光尘樾打造“场-门-园-堂-院”的五重归家礼制,为业主提供奢华归家感受。
主大门实景图
星光广场实景
通过180s的社区漫游,向客户输出项目交付后的整体社区样貌。模拟地上、地下归家动线,出入口、门头细节,多个景观节点等,全方位多角度的展示后期交付实景,让客户对项目的体验更具象,身临其境,沉浸其中。
和光尘樾展示区跳出了“仅服务于销售功能,与客户交付体验无联系”的传统展示区打造方式,将主大门提前亮相,同时售楼处后期会作为永久归家大堂使用,让客户所见即所得。
项目总占地约18.7万平,横向约300米,纵深约600米,共规划50栋楼。由于项目体量较大,为避免业主地上步行归家距离过长,项目在地块四周均匀布置7个出入口,同时,在每个单元与其最近的大门之间设置便捷通行的社区小路,将各楼栋业主的归家步行时间控制在3分钟之内,极大提升业主生活便利性。
项目坐拥6.5万平的社区景观资源、3.5万平的城市公园资源以及超大楼间距的景观视野资源,其中最大楼间距可达70米。项目利用宅间绿地空间打造多个景观组团,提供多样生活场景,提升业主社区体验。
、
和光尘樾项目采用“ 全生命周期居住系统2.0——Well集和社区”系统,通过3s系统和十大健康技术,将空间、社区、生活模式与业主全生命周期生活交融在一起,提升智慧服务,营造未来社区居住体验。
在楼栋150米的可达半径内设置一个组团大堂,配置快递柜、休息区、非机动车停车区、自动充电桩、垃圾收集区等,为业主提供日常所需的便利服务。
考虑后疫情时代的防疫需求,在楼内地上公区设置开启扇形成自然通风,电梯加装光氢离子杀菌设备,精装楼栋户内配置深水封地漏,同时,室外采用E0级别环保建材,不管室内室外,均给业主提供安全保障。
户外设置健康跑道、亲子活动场地、小球类场地、康体活动场地等,满足全龄业主的户外活动需求。
户内升级为千兆六类网线,归家大堂及楼宇均采用人脸识别系统,单元门为电动平开门,电梯可智能呼梯,实现社区内无接触式通行。
和光尘樾项目具备三项配套优势:看得见的地铁3号线、10万+的商业配套以及小外品牌的九年一贯制学校。
教育、交通、商业的“三箭齐发”对板块楼市无疑是多重利好。未来当商业、教育实景呈现后,配合已有的轨交优势,围绕和光尘樾周边的将是一幅可以预见的美好城市活力景象。
面对竞争激烈的市场环境,产品力才是核心竞争力。虽然未来市场仍存在诸多不确定性,但忠于产品,以客户需求和市场导向为基点打造产品,实现产品创新及产品力升级依然是我们致力要做的事。
* 版权声明:本文为保利发展的研究成果,版权归保利发展所有,访问者可用于个人学习、研究,以及其他非商业性或非盈利性用途。如需转载必须经得POLY技术汇同意,对于未经得POLY技术汇同意转载全部/部分研究内容者,保利发展将保留追究法律责任的权利。
本资料声明:
1.本文为建筑设计技术分析,仅供欣赏学习。
2.本资料为要约邀请,不视为要约,所有政府、政策信息均来源于官方披露信息,具体以实物、政府主管部门批准文件及买卖双方签订的商品房买卖合同约定为准。如有变化恕不另行通知。
3.因编辑需要,文字和图片无必然联系,仅供读者参考;
搜建筑·矩阵平台

合作、宣传、投稿
请加小编微信:soujianzhu006
推荐一个
专业的地产+建筑平台
每天都有新内容
扫描二维码关注

微信公众号“搜建筑”(ID:sjz9999)