‖前 言‖
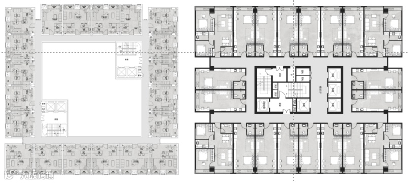
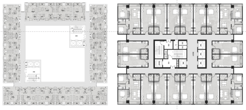
在越来越严苛的政策条件限制下,公寓限高逐渐成为常态。河北某郊(地级市)规范要求商务用地限层高3.9米,那么,如何在3.9米下创造家的居住幸福感?云翔团队在该项目实际案例中为您带来解题新思路!
市场痛点
高度BUG
传统3.9米层高,一层高,两层矮,高度浪费……
采光BUG
传统公寓楼栋北向户型多,户型面宽小,进深大,采光不足,室内总是感觉像笼子……

3
功能BUG
大开间,餐厅客厅厨房功能交叉,生活没有私密感、品质感……
围绕“居住幸福感”营造家容器解题新思路!
1
高度MAX
2
采光MAX
楼栋尽量减少北向户型,做到南北通透,加大面宽,缩小进深,全明采光,客厅、卧室、厨房全朝阳!提升生活品质感!
▲大面宽获得充足的采光
3
功能MAX
2.1 功能房间全尺寸,真正实现客厅、卧室、餐厅、厨房的独立使用性。满足居住功能需求,赋予生活幸福感!
▲ 全尺寸2厅+ 2.5房,55平方米体验完整两居半的舒适享受
2.2 场景精细化,空间可变,凸显个性化定制以及丰富的生活细节。
‖阳光宽厅模式‖
‖独立功能模式‖
‖结束语‖
家不分大小,我们希望在有限的条件下为公寓赋予更多家的功能,在有限的空间里让生活变得更有温度。
基本信息
建筑类型:办公、公寓
建筑设计:云翔设计
设计团队:王思远、张文智、万汛、费振鸿、林雨青、刘紫玉、刘晓雯
项目状态:建设中
本资料声明:
1.本文为建筑设计技术分析,仅供欣赏学习。
2.本资料为要约邀请,不视为要约,所有政府、政策信息均来源于官方披露信息,具体以实物、政府主管部门批准文件及买卖双方签订的商品房买卖合同约定为准。如有变化恕不另行通知。
3.因编辑需要,文字和图片无必然联系,仅供读者参考;
—— 作品展示、直播、访谈、招聘 ——
搜建筑·矩阵平台
合作、宣传、投稿
联系微信:soujianzhu006
推荐一个
专业的地产+建筑平台
每天都有新内容
扫描二维码关注

微信公众号“搜建筑”(ID:sjz9999)


