OurDomain阿姆斯特丹东南区,位于阿姆斯特丹的教育机构和学生公寓组成的知识轴上,在该地区引发了新的脉动。该园区地理位置优越,紧邻一家学术医院和火车站,拥有约1500套公寓和便利设施,在一个以办公为主的地区引入了第一个住宅建筑。
这个新园区是一个催化剂,点燃了人们长期以来所期望的从单一功能的办公区转变为一个活泼的、多功能的城市区域。OurDomain园区的城市化目标是引入根本性的变化,产生新的联系,并促进社会空间,激发其用户。
OurDomain Amsterdam Southeast, located on a knowledge axis consisting of educational institutions and student housing in Amsterdam, sparks a new pulse in the area. Strategically located next to an academic hospital and train station, the campus with a critical mass of approx. 1,500 apartments and amenities introduces its first residential building into a predominantly office area. This new campus is the catalyst that ignites the long-desired change from a mono-functional office area into a lively, multifunctional city district. The urbanistic objective of the OurDomain campus is to introduce fundamental change, generate new connections, and facilitate social space that inspires its users.
所有利益相关者都认为周围较大的改造区域(称为 Amstel III)存在问题。该位置设置为办公区,外观并不吸引人。医院是该地区的主要利益相关者之一。社会安全是一个关注点。目前的许多办公楼都是独立的创建岛屿。这些岛屿是通过以水和绿色植物为中心的建筑物而创建的。
与此同时,还有一些积极的持续发展,例如一些启动计划。最大的问题是:如何将这个分裂的区域联合起来,使其成为一个整体?随着 OurDomain 园区的规划,实现了连接,这是该地区整体转型进一步发展的第一步。
All stakeholders considered the surrounding larger transformation area (known as Amstel III) problematic. The location, set up as an office area, has an unattractive appearance. A hospital is one of the main stakeholders in the area. Social safety is a point of attention. Many of the current office buildings are free-standing creating islands. These islands were created by centering the buildings with water and greenery. Meanwhile, there were positive ongoing developments such as several start-up initiatives. The big question was: how to unite this divided area in such a way that it becomes a whole? With the plan for the OurDomain campus, a connection was realized as a first step for the further development of the transformation of the area as a whole.
选择这个位置的校园社区是特别的,因为这是人们第一次可以住在阿姆斯特丹的这个地区。实施校园的想法与当前阿姆斯特丹的住房问题有关:学生和年轻人的住房严重短缺。为了使这种住宅功能成为可能,阿姆斯特丹市政府应市场各方的要求,于 2011 年修改了分区计划,以允许住宅单位。2014 年,OZ 与顾问 Fakton、开发商 Blauwhoed、房地产所有者 LSI 和投资者 Greystar 一起研究了引入大量公寓的可能性。
调查了医院旁边的年轻人新校区是否响应了对更多青年住房的需求。结果是积极的,这就是面向区域方法的基本计划的诞生方式。最终,Greystar 对这个项目的兴趣是决定性的。这位美国投资者已经在阿姆斯特丹东南部的一部分研究校园概念,并看到了这个新校园的可能性。阿姆斯特丹市政府同意实施。
The choice for a campus community at this location is special because it is the first time that people can live in this part of Amsterdam. The idea to implement a campus relates to a current Amsterdam housing issue: a great shortage of housing for students and young people. In order to make this residential function possible the municipality of Amsterdam amended the zoning plan in 2011 to permit residential units, at the request of market parties. In 2014 OZ, together with consultant Fakton, developer Blauwhoed, real estate owner LSI, and investor Greystar, researched the possibility of introducing a large number of apartments. It was investigated whether a new campus for young adults next to the hospital responded to the demand for more youth housing. The results were positive and that is how the fundamental plan for an area-oriented approach was born. Ultimately, the interest of Greystar in this project was decisive. The American investor was already working on a campus concept in a part of Amsterdam Southeast and also saw the possibility of this new campus. The municipality of Amsterdam agreed on the effectuation.
无法找到 OurDomain 位置上一栋空办公楼和停车场的新租户,而且该地区在社会上不安全。由于这些原因,决定拆除这两座建筑物。该地区看起来杂乱无章,有很多围栏,公共空间也没有得到很好的维护。有点荒凉,难以接近。学生们还报告了匿名感和不安全感。
A new tenant for an empty office building and parking garage on the location of OurDomain could not be found and the area was socially unsafe. For these reasons, it was decided to demolish both buildings. The area looked cluttered with a lot of fencing, and the public space was not maintained well. A bit desolate and inaccessible. Students had also reported a sense of anonymity and insecurity.
该地区的主要城市发展目标是将功能、路线和周边环境与校园连接起来。公共空间,起初是一个没有吸引力的住宿地点,是校园计划的基础。公共空间的布局保证了规划区、社区校园、医学校园的整体衔接。
由于社区校园的住宅功能,一个高质量的公共区域是必不可少的。三个校园建筑中的每一个都具有独特的特征,所有独立的办公楼都反映了该地区的多样化特征。OZ 选择让三个不同的合作伙伴负责每个单独的设计。
The main urban development objective for the area was to connect functions, routes, and surroundings to the campus. The public space, at first an unattractive place to stay, was the basis for the campus plan. The layout of the public space ensured cohesion in the plan area, the community campus, and the medical campus as a whole. A high-quality public area was essential, because of the residential function of the community campus. The unique character of each of the three campus buildings reflects the diverse character of the area with all independent office buildings. OZ chose to make three different partners responsible for each of the individual designs.
该建筑加强了与公共空间的关系。室外空间与三栋建筑地面的连接对于创建一个社区非常重要。开放是贯穿整个校园的关键词。水和绿化不再作为分隔元素,而是转化为连接。
自行车和跑步路线比以前更加一体化。连续的路线将校园与地铁站、医院和其他周边建筑连接起来。规划中的路线与广场相连,具有多种功能和活动。居民在这里聚会、运动或组织烧烤。位于底座的公共功能是为社区校园的居民准备的。
The architecture strengthens the relationship with the public space. The connection of the outdoor space to the ground level of the three buildings is very important to create one community. Openness is a keyword that is reflected throughout the campus. Water and greenery no longer act as dividing elements but were transformed into connections. The cycling and running routes are more integrated than before. Continuous routes connect the campus with the metro station, hospital, and other surrounding buildings. The routes in the plan are connected to squares, which have various functions and activities. Residents meet here, play sports or organize a BBQ. The public functions located in the plinth are meant for the residents of the community campus.
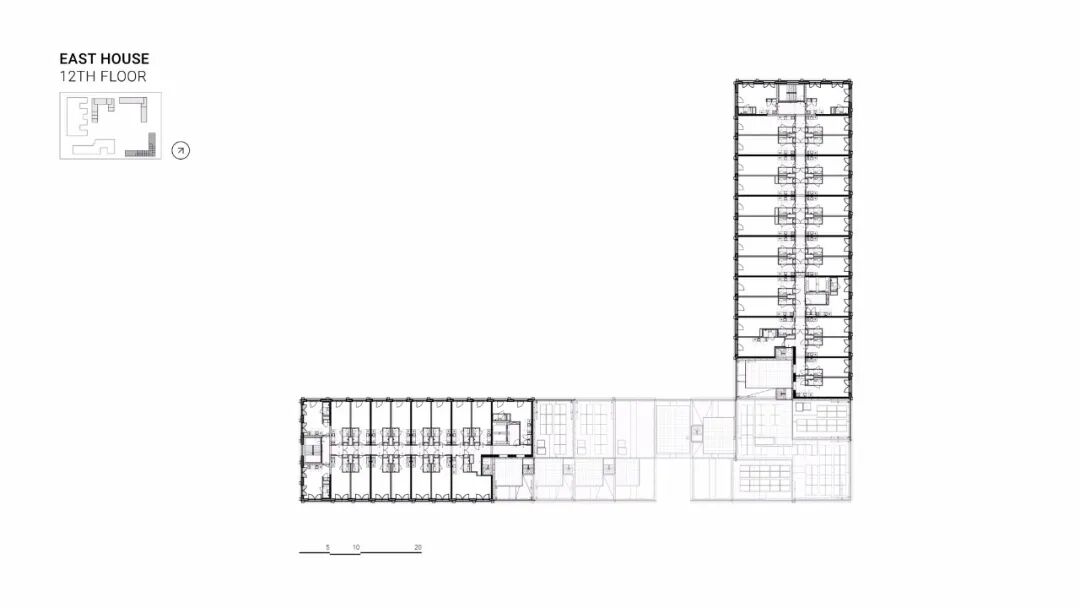
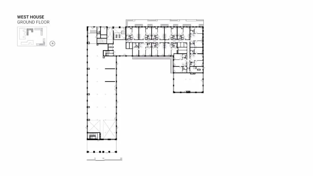
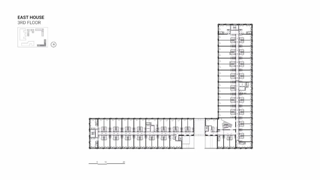
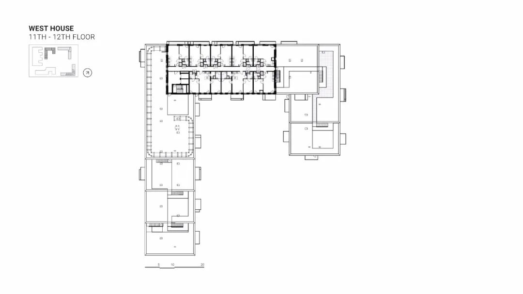
在一个铰接式公园周围插入三个大型住宅区(东屋、北屋和西屋),在主要办公地点营造出可识别的住宅氛围。这三个街区,每一个都有独立的身份,被设计成标志着公园边界的基石。
连同将被改造成学生宿舍和医疗初创公司的两座现有建筑,校园将成长为该地区的关键中心。Karres en Brands 郁郁葱葱的迷人景观设计为公园增添了清晰的地形。挖掘地下停车场的残余土壤用于制作小山丘,呈现当地品质,赋予该地区强烈的身份,激发人们利用它。
Inserting three large housing blocks (East House, North House, and West House) around an articulated park allows for a recognizable residential atmosphere in a predominantly office location. The three blocks, each with an independent identity, are designed to be cornerstones that mark the park boundary. Together with the two existing buildings, which will be transformed into student housing and medical startups, the campus will grow into the pivotal center of the area. The lush, inviting landscape design by Karres en Brands adds articulated topography to the park. The residual soil of excavating the underground parking garage is used to make small-scale hills that render local quality, give the area a strong identity, and inspire people to make use of it.
本资料声明:
1.本文为建筑设计技术分析,仅供欣赏学习。
2.本资料为要约邀请,不视为要约,所有政府、政策信息均来源于官方披露信息,具体以实物、政府主管部门批准文件及买卖双方签订的商品房买卖合同约定为准。如有变化恕不另行通知。
3.因编辑需要,文字和图片无必然联系,仅供读者参考;
搜建筑·矩阵平台

合作、宣传、投稿
联系微信:soujianzhu006
推荐一个
专业的地产+建筑平台
每天都有新内容
扫描二维码关注

微信公众号“搜建筑”(ID:sjz9999)