杨榆 杭州新天地集团重庆十八梯文化发展有限公司 设计部
“十八梯优秀历史建筑,通过功能置换的创造性构思,实现了历史建筑保护与利用的统一。”
更新后
建筑重生
月台坝24#
十八梯璞仕酒店总占地面积约5308平米,投资金额4000余万。
作为重庆十八梯传统文化风貌区的配套酒店,隐逸于风貌区的东侧,以传递东方山城之美为核心理念,是一家风格独特、艺术气息浓厚且以自然人文之美打造的山城文化主题酒店。
说明:中庭天井,维持历史建筑基本格局,注入现代元素,赋予新的生机
说明:中庭回廊,维持历史建筑基本格局,注入现代元素,赋予新的生机
引入国内首家旅行主题书店—司曙·旅行空间。“引领旅行生活新方式”,空间集上万册旅行主题图书,国内国际文化活动、丰富生动文旅内容、创新升级旅行服务、国际知名户外IP、旅行特色文创品牌于一体。
说明:中庭天井,维持历史建筑基本格局,注入现代元素,赋予新的生机
两幢优秀历史建筑均通过功能置换的手法,保留外立面历史记忆,内部维持历史建筑基本格局,重建结构,重赋现代使用功能。
室内设计采用优秀的设计手法,传承历史文化,注入现代潮流元素,使得历史建筑重生煜煜。
更新历程
01
工程概况
重庆十八梯传统风貌区两幢优秀历史建筑,建筑年代在1940~1950年。
原建筑形式为天井回廊式建筑布局,坡屋面,砖混结构,改造前建筑功能为民居。
更新改造后,继承建筑立面及维持整体格局,内部重建坚固的房屋结构,室内注入现代元素,重赋现代使用功能。
2019年3月,初步完成更新改造方案构思及技术论证;
02
保护与利用的统一
作为重庆市“优秀历史建筑”,是具有历史研究价值、历史记忆的;本着尊重历史,尊重文化的原则,是一定要保留的。
而作为上世纪40、50年代的砖混结构建筑,它的条件无法布置现代功能,满足使用要求。
【1】更新前影像-建筑记录历史
更新前-月台坝24#:
说明:建筑立面反应了当时的建筑工艺,材料,见证了历史
说明:中庭回廊加建卫生间、厨房严重。最上面一层为临时加建,改造时拆除
▲结构损坏严重 《鉴定报告》-重庆天润匠心工程检测
▲楼板、墙体等风化严重,钢筋裸露《鉴定报告》-重庆天润匠心工程检测
▲房间、走道局促,层高2650~2800,消防疏散功能不足
a由于“外立面”、“限高”保护及维持“原产权面积”,层高调高受到限制为3000;
b平面整体按“旅馆”,即维持历史建筑,原天井回廊格局布置,重建结构;
c为控制梁跨度及负荷,减小梁高,柱网每“开间”布置,后期“公区”及“入户”管道全部穿梁。以保证使用净高。
如何才能达到保护与利用的统一,是对本项目的巨大考验。
▲Theater Le Diamant,位于加拿大魁北克
通过功能置换的创造性构思,来实现保护与利用的统一:
以此,使之成为一幢保留历史记忆但内部重生的,可以适应现代使用功能的优秀历史建筑。
这种手法,不仅得到了专家、规划管理部门的认可,在项目呈现后,也得到了原住民的称赞。
颇具挑战的是,如何来实现方案构思、设计意图。本项目采取巧妙的、颇具想象力及创造性的施工措施。
▲内部掏空后的,钢结构支撑体系,鸟瞰图。(善果巷35#)
整个过程如同设置内支撑的基坑工程,从上到下逆作法开挖,同步进行支撑,地下室主体再从下到上修建的过程。
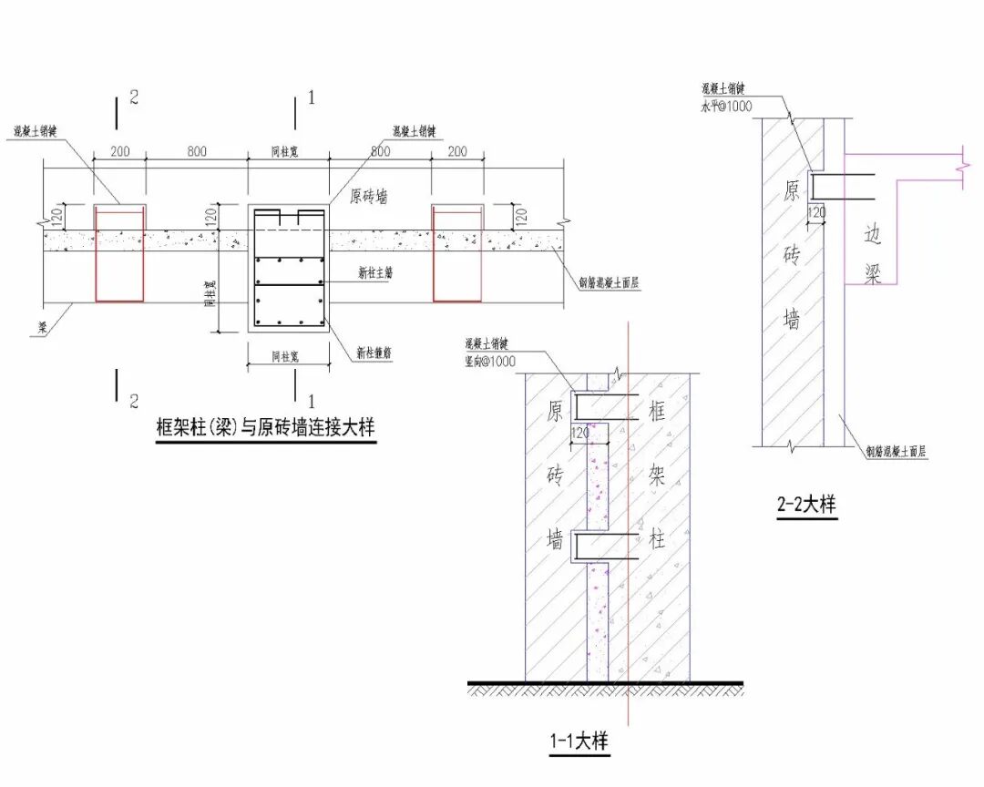
于拆除内部前,先对全楼保留外墙的内侧,实施钢筋混凝土面层加固。
从上到下,依次拆除屋面、四层至二层的隔墙及楼板,每拆除一层用钢梁作为墙体型钢腰梁夹紧外墙;
说明:内外两片槽钢,将外墙通过对拉螺栓夹紧。(楼板理解为原楼板)
用斜撑跟腰梁及中心构造柱连接,每拆除一层,设置一层,保证外墙稳定。
▲逐层设置斜撑,连接腰梁跟中心柱,保证外墙屹立不倒 陈磊 摄
按以上顺序,交替实施,直至内部掏空后,即形成最终的稳固的支撑体系。保证外墙在内部拆除及结构新建过程中,屹立不倒。
▲新建结构跟外墙连接(如图中墙壁上凹洞处)陈磊 摄
从基础至屋面结构施工过程中,每修建一层,框架梁、柱跟外墙可靠连接。每修建一层新建结构,就可以拆除一层钢结构圈梁及斜撑。
以上,按顺序实施,直至新建结构封顶,最终实现新旧结合,进行功能置换。
“功能置换的构思可以实现历史建筑活化再利用,文化传承的理念、新颖潮流的功能业态及优秀室内设计手法则是历史建筑重新焕发生机的关键。”
▼更多精品·点击关注
本资料声明:
1.本文为建筑设计技术分析,仅供欣赏学习。
2.本资料为要约邀请,不视为要约,所有政府、政策信息均来源于官方披露信息,具体以实物、政府主管部门批准文件及买卖双方签订的商品房买卖合同约定为准。如有变化恕不另行通知。
3.因编辑需要,文字和图片无必然联系,仅供读者参考;
搜建筑·矩阵平台

合作、宣传、投稿
联系微信:soujianzhu006
推荐一个
专业的地产+建筑平台
每天都有新内容
扫描二维码关注

微信公众号“搜建筑”(ID:sjz9999)