▲ 更多精品,点击关注“搜建筑”
“住有所居”实验地
有巢国际公寓社区东部经开区店
日清建筑设计

序 言
柯布西耶在《走向新建筑》“成批生产的住宅”一节中提出:“想到住宅就想到富人的别墅,但是更广泛的是多如牛毛、不堪入目的穷人陋室;我探索方法,希望有一天让穷苦的人们和所有诚实的人们都能在美好的住宅中生活

© 巢国际公寓社区鸟瞰
近十年来,从“租购并举”到鼓励发展保障性租赁住房,国家对住房租赁行业的发展给予多维度支持。从开发、租赁到运营、服务,房企已经深度参与到住房租赁行业之中,并形成了一套日渐成熟的发展体系。
此次项目的业主华润有巢作为城市生活的服务商,于2016年正式开启租赁住房布局。上海有巢国际公寓社区东部经开区店,就是响应政策号召,是上海市第二个集体土地入市建设的租赁住房项目。


© 社区实景
项目毗邻G60科创走廊产业带,位于国家级松江经济开发区东部园区内,该区域产业聚集度高、产业人口住宿需求大。标准化、规模化及高品质的新建租赁社区就是在此急迫需求的背景下产生。住区内分为5栋建筑,其中1-4号楼为租赁住宅,5号楼为配套社区商业。社区可为1300多户提供租赁住宿,自2021年4月投入运营以来,入住率达到9成。
围合&社区

© 社区总图
住宅建筑围绕中心环境的规划布局,与中国传统建筑布局有相似之处。而在城市规划的层面,围合式的社区设计是建立有形边界的有效手段;有明确的边界就有了可以被辨识的标志,从而创造了社区感,使居住在这里的人们有停留下来互相交往的愿望。


© 围合社区
租赁住房的日照条件需保证50%以上的套型有一个居住空间能获得冬至日满窗有效日照时间不小于1小时。在此规划政策的支持下,租赁式住宅更多地走向了围合式的社区形态。相比于传统行列式住宅小区的模式,小户型围合式的集合住宅不仅更加顺应公共租赁住房的设计导则,也更适合年轻使用者的市场定位。

© 社区规划分析图
现阶段租赁住房的规划建设不仅仅要满足社会的基本需要,更重要的是提供新的住区模式。日清设计希望将来居住在这里的人们租的不只是一间屋子,更是一种氛围、一个社会关系,而“社区”是它们的土壤。
共享&居住
共享居住空间(co-living space)的概念是各大城市伴随020革命而兴起的新型居住形式。就社区的共享资源范围来说,基本上涵盖公共物理空间(如客厅、大厅、院子、天台等)、公共生活设施(如厨房、卫生设施、休闲娱乐设施等)、公共生活工具(如家具、厨具、维修工具等)、公共文化娱乐资源(如各类社交聚会、读书会、分享沙龙、影视艺术放映、音乐会等)。

© 轴测分析
除此之外,人们所共享的还有生活场景及生活经历,这些促使人们产生相互认同,并形成人们情感上的纽带。社区的核心是居住期间的人际关系形式,而并不仅仅是社区本身。


© 共享客厅

© 共享庭院
社区服务和商业配套更像是串联邻里的活力核心,将其布置在社区的南侧主入口。不仅可以与围合的居住体量、开放的社区绿化共同构建成体验舒适的社区客厅,而且可以对外与底层商业共同形成持续开放的社区环境。它可以有效的建立起更广泛更牢固的人与人的连接,从而实现其作为理想社交场景的功能。

© 社区里的“公园”


© 共享球场
社区内部底层全架空,在设计上呈现出开放性,与社区景观、休闲健身等场所相融合,形成1+1>2的集合优势。后疫情时代,愈加注重全区的健康生活习惯,贯穿全区的1km漫步道与集中绿地融为一体,途经各活力中心;一面享受置身公园般的愉悦环境,一面不错过正在发生的各种社区活动。


© 底层架空区域

© 底层架空入户空间
“一人居”的营造
社区主要面向周边产业园区的年轻白领和蓝领,租赁住房产品以一室户和两室户为主,套内使用面积控制在20~40㎡。设计面临的挑战是在集约的标准单元内,提供可预制、易变化、多功能的空间。

© 面向中央绿地的开敞走廊
出于成本控制的考量,户型的开间尺寸受限于地下车库停车的经济性,经过多轮比选最终确定2800mm这个模数,这样地下车库可以采用5600mm的经济型小柱网,而一室户的单模数开间、两室户的双模数开间,也能匹配小面积段的采光通风要求。统一的开间模数、完全标准化的门窗洞口使得小区实现了建筑结构单元的100%装配式,高效环保。

© 25㎡一室户型

© 30㎡一室一厅户型

© 45㎡两室一厅户型
宽敞是小户型不可求的,而有趣则可以争取。在“一人居”的模式下,一个标准单元包括了U型厨房、独立卫浴、封闭阳台、开放客厅、卧室和可变柜体,可以高质量地满足年轻人对于生活中仪式感的需求,做饭、读书、聚会、观影等都能以舒适的方式展开。
成本可控的立面设计
由于租赁式住宅大多是由开发商自持运营,立面设计在成本可控的前提下,还需做到辨识度高、标识感强。在低成本、模数统一的立面条件下,如何创造其辨识度?色彩构成式的质感涂料装饰成为首选。

© 成本可控的立面
设计大胆地使用深灰和白两种对比强烈的颜色,在不同的层间和开间中寻找比例关系,运用色彩构成的逻辑形成现代感十足的立面效果。
凸窗、阳台、外窗、水落管、空调机位等功能构件,也在立面中变成了富有装饰细节的存在。质感涂料的粗糙质感,也给使用者和观察者与众不同的心理感受。

© 建筑北立面
结语
2021年11月23日,华润置地有巢国际公寓社区东部经开区店在上海市房地产行业协会公布的第十二届“上海优秀住宅”评选项目中,摘得“规划建筑奖”、“住宅产业化奖”两个奖项。


© 社区夜景
这是一个面向“Z世代”的租赁住房设计,他们个性鲜明、注重体验,渴望被世界尊重。日清设计希望最大程度地弱化租赁住房的“临时感”,将更多的“仪式感”打包在这个30平米的单元里,实现“住有所居”,为年轻人营造在上海的第一个家。
技术图纸

© 总平面图

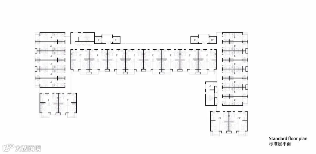
© 标准层平面

© 剖面图
工程档案
项目名称 | 华润置地有巢国际公寓社区东部经开区店
项目位置 | 上海松江
项目功能 | 租赁住宅
建筑面积 | 72930.50㎡
业主单位 | 有巢房屋租赁(上海)有限公司
业主团队 | 金晓芸 陆洪慧 潘姗姗 唐晓筱 郑匡义 季诚 吴任远 叶玉龙 刘涛 温广海 刘晓青
设计单位 | 上海日清建筑设计有限公司
总建筑师 | 宋照青
设计团队 | 魏文渊 单悠 张涛 方梦函
施工图设计 | 上海中森建筑与工程设计顾问有限公司
室内设计 | 矩阵纵横设计股份有限公司 上海李峻设计咨询有限公司
景观设计 | 上海兰境景观设计咨询有限公司
设计时间 | 2018年12月
竣工时间 | 2021年4月
专业摄影 | 是然建筑摄影Schran Images
本资料声明:
1.本文为建筑设计技术分析,仅供欣赏学习。
2.本资料为要约邀请,不视为要约,所有政府、政策信息均来源于官方披露信息,具体以实物、政府主管部门批准文件及买卖双方签订的商品房买卖合同约定为准。如有变化恕不另行通知。
3.因编辑需要,文字和图片无必然联系,仅供读者参考;
—— 作品展示、直播、访谈、招聘 ——
搜建筑·矩阵平台
合作、宣传、投稿
联系微信:soujianzhu006
推荐一个
专业的地产+建筑平台
每天都有新内容
扫描二维码关注

微信公众号“搜建筑”(ID:sjz9999)


