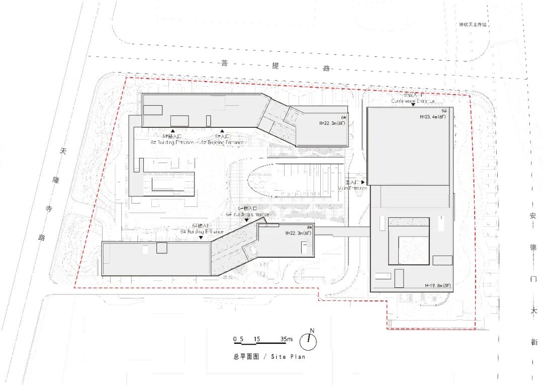
南京丰盛五季凯悦臻选酒店位于南京市雨花台区安德门大街和软件大道交汇口,地铁天隆寺站南侧。西邻由古浡泥国王墓、天隆寺和菊花台公园组成的城市绿地公园,东临安德门大街以及雨花客厅等办公园区,南北两侧为办公商业综合体。项目基地约为30241㎡,总建筑面积为77700㎡。
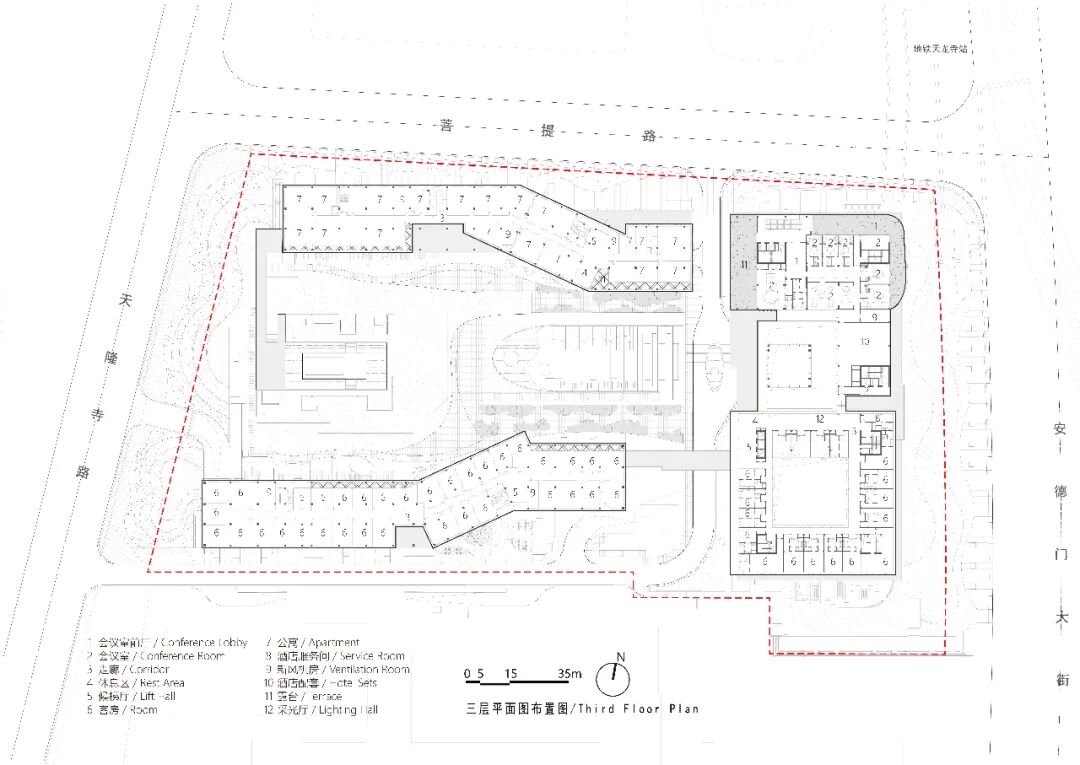
基于对“东城西林”的基地周边环境的响应,方案整体设置为“东动西静”、且自东向西打开的半围合布局。位于城市主干道西侧的主楼具有接待、商务、餐饮和客房等功能,同时也是面向城市的形象界面;南北两栋楼为客房楼, 拥有良好的景观与采光条件;被建筑环抱在中间则是以禅堂为代表的酒店公共功能空间和多重标高的景观庭院。
项目在委托之前,南北两栋客房楼已经按照原设计方案施工多时,地上及地下主体建筑结构部分已基本完成。原方案是一个较为典型的、以效率化使用为目标的城市商务型酒店。酒店300多间客房安置在几座联排的条块状体量建筑中,结合建筑群中央下沉地面,围合出一个数层高的中庭式商业内街。因此,这是一个改造与新建结合的项目,而如何将新落成的原有建筑融入新建建筑的整体氛围中,是本项目最大的挑战。
而与此同时,南京的酒店业态趋于饱和,却相对缺少具有高品质和体验感的酒店。南京丰盛五季凯悦臻选作为南京第一家凯悦系列酒店,提倡“以人为本、沉于山水、归于内心的体验方式”,正好填补了这类特色酒店的空白。因此,如何在部分建成的现有建筑基础之上,融合场地周边历史人文景观、绿色生态环境与高品质体验空间等要素,成为这个项目改造设计工作重要目标。
项目位于南京南城中心,场地西侧是城市中难得的自然景观公园,东侧是繁华的商业中心。设计因此希望通过场地与建筑,将东西两侧的城市空间衔接起来,实现从西侧森林景观到东侧繁华城市自然且富有趣味的过渡。
反过来,方案同时希望在闹市拦出一片“宁静”,让城市的人们在进入场地后,从喧嚣、疲惫的城市快节奏中舒缓下来。
基于这一策略,建筑体量呈“C”形向古浡泥国王墓和天隆寺开口,将城市公园景观引入场地,同时,方案选择将原有建筑主体(南、北楼)及新建建筑(主楼)底层敞开,以形成可以游走的自西向东的开放景观空间。
作为城市景观的延伸,方案将东侧原有施工留下的8米基坑完全景观化,以回应项目周边的景观节点。具体策略上,方案通过柔化的形态将原有基坑处理为三层退台,在消解场地内巨大高差的同时,营造出如画般的逐步蔓延的景观层次。由此,设计将场地东西景观轴补充完整,形成了一个纵深的、无边的公园景观。
在建筑尺度上,方案尝试从庭院的公共性和景观性出发,以草木、置石、水流为核心,结合场地内行进路线、视线变化和建筑布局关系进行造景,并最终形成了下沉庭院的景观环境。
建筑沿庭院处做了大量的底层架空和屋顶覆土,以尽可能将自然光线与景观引入到建筑空间当中。覆土建筑上的曲面种植屋面,软化了建筑与景观的交接面,通过空间的流动,景观的流动,人员的流动,建筑不再是孤立的存在与单纯的自我表达,而是融入自然之中,带来了空间与景观相互渗透影响的体验。
环绕的覆土屋面之下,设计引入了类似传统园林的回廊、曲廊等多种行进空间形式,以此包裹和划分庭院空间,并实现步移景异的观感。同时,结合包括格栅在内的“半透明”表皮,使景观经由建筑的檐下空间,渗透到建筑的室内中,提供了一种人与景观之间观看和对话的机会。
通过这样的方式,景观与建筑的界限更为模糊,设计在建筑之间营造出了一个渗透的、无边的庭院景观。
由于项目的最初定位是集合养生度假于一体的城市酒店,随着素食餐厅、中医养生馆等业态的进入,禅修中心的概念应运而生。
酒店的禅修中心,或者说水院禅堂,更像一种“空”,它没有具体的功能定义,更像是一种精神性空间。禅堂作为一个悬浮的混凝土体块镶嵌在地面之中,被水面所包围。
借助建筑之中的光影变化,设计在室内营造出兼具内观性与景观性的空间与表皮形式。在这一未曾被定义过的内向空间中,人们可以打坐、太极或是冥思,人的活动为这个空间赋予功能和意义。
禅堂的使用空间位于水面以下,水面与人的视线齐平,进一步拉近了人与水面的距离,在此,空间与景观形成了非常有趣的对话。因此,水院禅堂可以被理解为一种更为景观而非建筑的手段,人仿佛被隔绝在某个没有属性的空间,被水环绕,视线却在近乎于等高的水面的反射映照下,获得了无边际的风景。
为了延续西侧城市公园景观并实现无边景观的设想,方案选择通过底层多个由钢结构的核心筒支撑的实体体块将主楼首层架空,以在城市空间界面上消解建筑体量及整体性并营造贯通的视线关系。
东楼主要由三部分功能空间构成:接待空间、宴会空间和客房空间。除接待空间外,方案将诸如商务、宴会和客房等效率化导向的主要功能空间架空在上层体量中。
考虑到酒店客房功能所需要良好的景观界面和采光条件,为避免体量架空导致密柱深梁的结构形式,方案采用了复杂的巨型空间桁架结构体系。在解决立面结构形式的同时,形成了大跨度及大悬挑的独特空间视觉体验,并随之带来了入口处漂浮体块之下宏大的仪式感。
在同样的结构表现和设计逻辑下,对于南、北楼两座建成建筑,设计面对已经固定的结构体系,选择将酒店客房底下局部打通,结合建筑表皮与列柱构成近似于架空空间感受的柱廊空间。方案希望以此在形式上捏合主楼与南、北楼,形成整体上漂浮般的空间关系,有如一片漂在树梢之上的盒子。
在盒子之间,主楼的开洞方式参考了传统园林对视线的控制方法,尝试利用体块之间的横向与纵向缝隙,框定使用者和周围环境的关联,来为使用者带来更为独特的观景体验。例如,中餐厅外的露台之上,实体体量挤出了对天隆寺的景框,使得天隆寺被从山林背景中抽离出来,形成了另一层次的语义。而这样的缝隙不仅是建筑的体量间的空隙,还有在建筑高位的客房之间散布的空中庭院与连廊。
结合构件形式、尺寸、表皮材料等因素,设计将“漂浮”和“多孔”的空间意向捏合在一起,以尝试落实设计概念中的漂浮感,并实现建筑及周边环境景观的立体化。
在此,景观不仅在水平面上延展,更是在垂直和内外维度上延伸、渗透和变化,使得使用者在行进和停留中,获得步移景异的景观体验以及身心上与自然的关联。
最终,设计营造出了林与居的建筑与公共空间组合,将建筑还给了城市和公园。
业主顾问:殷向民(总顾问),汪颖,卢艳,李晋军,庄靖
项目主创:庄子玉,戚征东,Fabian Wieser,李娜
设计团队:刘毅,刘晓清,范宏宇,陈冬冬,李京,陈玉冰,刘国宇,星梦钊, 乔宣通
建筑施工图团队:CCDI悉地国际,江苏绿色都建建筑设计研究院有限公司
室内设计团队:CCD, JAYA Associates, BUZZ庄子玉工作室
清水混凝土顾问及施工团队:泉州清水砼建筑工程有限公司
本资料声明:
1.本文为建筑设计技术分析,仅供欣赏学习。
2.本资料为要约邀请,不视为要约,所有政府、政策信息均来源于官方披露信息,具体以实物、政府主管部门批准文件及买卖双方签订的商品房买卖合同约定为准。如有变化恕不另行通知。
3.因编辑需要,文字和图片无必然联系,仅供读者参考;
搜建筑·矩阵平台
—— 作品展示、直播、访谈、招聘 ——
合作、宣传、投稿
联系微信:soujianzhu006

推荐一个
专业的地产+建筑平台
每天都有新内容
扫描二维码关注

微信公众号“搜建筑”(ID:sjz9999)