装配式建筑是建筑业工业化的重要方向之一,随着政府对建筑工业化的政策性推动,我国装配式建筑也进入了全面发展期。根据国务院文件定义及各地市2020年的装配式建筑发展目标,当前全国划分为装配式建筑重点推进地区的省市自治区为13个,积极推进地区为12个,鼓励推进地区为6个。


▲当前装配式建筑发展区域划分
在这样不可阻挡的发展态势下,北京、上海、浙江、江苏、广东等各主要省市也陆续下发政策对装配式建筑的预制装配率提出了明确的要求,促使着开发商采用装配式建筑。不同地区对预制装配率的要求有所区别,且装配率计算法则也不尽相同。
为保证项目可以顺利达成装配率指标,开发商不仅可以在主体结构采用装配式,也可后端装修采用装配式。根据各区域发布的装配率计算规则,装配式内装可以帮助项目获得30%~51%的装配率指标。
作为装修建造方式的深度变革,装配式装修是一种工业化程度更高、效果更稳定的装修方式。合理的利用与设计,不仅可以帮助整体项目更轻松的达成装配率指标,也可以帮助项目呈现出更好、更优质的效果。
接下来,以最新实践项目——景瑞松江项目为例,一起看看利用装配式内装来帮助项目达成装配率指标,需要经过哪些步骤。
步骤一:
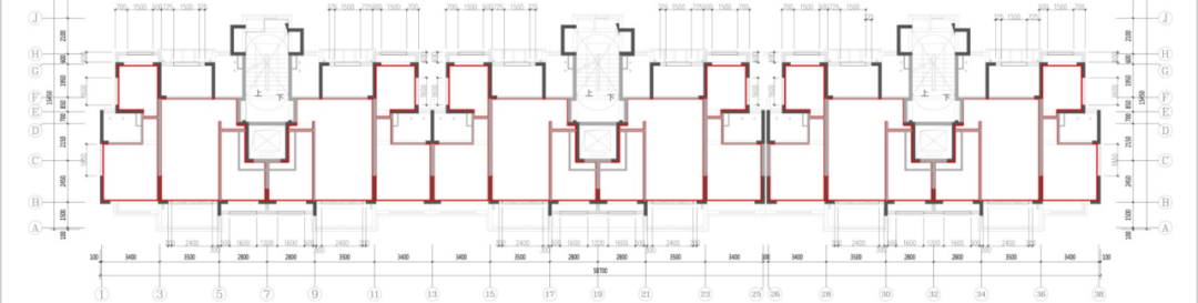
梳理项目信息
步骤二:
项目所在地政策分析
本案所处地区在上海市松江区。根据上海市相关装配率要求:自2016年4月1日后完成报建或项目信息报送的项目,建筑单体预制率不低于40%或单体装配率不低于60%。也就是说在项目实施过程中,只需在40%预制率和60%装配率二选一即可。
但由于不同的项目总会出现不同的情况,仍需根据实际情况重新配比预制率、装配率。以景瑞松江项目为例,该项目的特点是规模较小,只有3.6万㎡,且建筑格局也多以小高层为主。
因此在实际过程中要实现40%预制率往往比较困难且不经济。因此经过PPD品装设计团队的讨论研究,最终决定通过装配式内装与PC共同实现60%的装配率,这样的配比更加经济、合理。
步骤三:
初步选型
确定好装配率配比的下一步工作便是要在纷繁的装配式内装部品部件中确定出最终需要在项目中具体实施的部分。部品选择的过程不仅要紧扣装配率的得分点进行,同时也需要选出与项目适配度最高的部品。根据本案的实际情况,PPD品装设计团队从众多的选择中初步筛选出适合本案的配置选型:
步骤四:
成本适配
成本是每个项目开发商最关注的要素之一。而装配式建筑的成本管理有别于传统的成本管理,它需要对建筑的全成本维度有清晰的概念,无论是精装修成本还是土建成本都在成本把控的范围之内。
在实际施工中,要达到越高的建筑预制率就会产生不同程度的成本增量,比例越高,成本增幅越大。但是,采用装配式同样可以在内墙、楼地面、管线分离三个层面节省土建成本。
总结下来,在本案的成本规划中,采用装配化装修在1200元/㎡装标的标准上装修成本比传统装修整体费用高15%。但比起传统装修,应用装配式内装可以在土建、PC方面节省下250元/㎡。综合对比下可以发现,装配式装修的造价成本略低于传统造价,是装配式建筑更经济、更合理的内装选择。
01
装配率得分计算详解
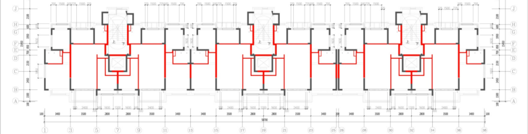
根据上海市《新计算细则》,本案全部应用装配式内装可以贡献37.5%+的装配率,此时PC率仅需22.5%即可实现整个项目60%的装配率。但在项目的装配率计算过程中,需要结合项目的具体规划,以计算书、单体建筑计算分解图、内装装配式图纸(与建筑图纸一并提交)为依据进行装配率评审,以此得出最终的装配率得分。
下面以景瑞松江项目的单体建筑装配率计算为例,详细的讲解装配式内装得分装配率的计算步骤与细节。
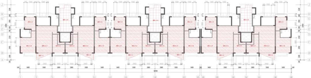
■ 全装修
■ 非砌筑内隔墙

■ 室内墙面干法饰面
■ 集成厨房
■ 集成卫生间

■ 装配式楼地面

根据上述6个类目的计算得分,最终可以得出本项目通过应用装配式装修为整个建筑单体装配率贡献为33.05%。
02
设计效果呈现
装配式内装不仅可以从内装层面帮助项目拿到装配率分数,在装修效果的呈现上也更胜一筹。在本案的风格设计上,PPD品装设计的设计师们通过对项目的专注研磨,以极致的产品力糅合实用功能与视觉美感,以环保、舒适、高品质的装配式内装设计,为本案量身定制更契合年轻一代小资情调的居住体验。
■ 风格定位
色彩作为一种视觉元素存在于我们的生活中,决定着空间的整体风格和灵魂。在本案的色彩设计上,整体由白色、原木色、高级灰几个色彩元素构成,淡雅的色调营造优雅的氛围,显示出居者不俗的品味。此外,大理石与金属元素的融合不仅让室内空间显得极富轻奢质感,更让空间散发着一种时尚优雅的生活态度。
■ 效果展示
本案采用的是一体化餐客厅的设计。餐客厅的墙面采用的是纯白色、高级灰两种色彩的对立与融合,没有强烈的视觉刺激,也没有生硬的色彩暗示,通过这种低调不张扬的颜色演绎出空间高雅与优雅的极致魅力。同时在软装上通过少许绿色元素的点缀,为整个餐客厅空间注入了一丝活泼与灵韵。
▲餐客厅硬装效果图
商务合作洽谈
139 1724 3731
上海办公地址
上海市徐汇区桂林路402号76幢310室
(诚达创意产业园)
本资料声明:
1.本文为建筑设计技术分析,仅供欣赏学习。
2.本资料为要约邀请,不视为要约,所有政府、政策信息均来源于官方披露信息,具体以实物、政府主管部门批准文件及买卖双方签订的商品房买卖合同约定为准。如有变化恕不另行通知。
3.因编辑需要,文字和图片无必然联系,仅供读者参考;
—— 作品展示、直播、访谈、招聘 ——
搜建筑·矩阵平台
合作、宣传、投稿
联系微信:soujianzhu006
推荐一个
专业的地产+建筑平台
每天都有新内容
扫描二维码关注

微信公众号“搜建筑”(ID:sjz9999)


