▲ 更多精品,关注“搜建筑”
标准厂房是指建设主体利用工业用地,按照国家通用标准及行业要求进行统一设计、集中建设的工业类建筑,其建筑布局、形态及平面设计应体现工业建筑特征,建成后用于自持或出租、出售给企业从事工业生产经营。(基于M1用地)
前期定位,尤其是项目的产业定位,对项目的手续办理以及后期的营销有着重要的先决作用。建议项目产业定位不要过度聚焦某一待定产业,要适当增加行业宽度,避免后期招商的自我行业限制。
以“销”定“产”是产业项目的基本原则,“厂房定制”更是最佳的方式,但大多数时候现实中无法全部做到。因此+需要根据自身产业规划、客户画图,通过同类项目产品调研,在层高、承重、柱距、装卸货平台、配套设施等各层面,尽可能贴合主流客户群体的需求,或预留一定的富裕空间。
结合自身产业定位,需要寻找项目独特的差异化价值,并对其聚焦、放大、提升形象高度,形成项目独有的营销招商卖点,得到政府的关注、市场的认可,能够让招商更加事半功倍。
营销前期及中期,结合项目自身定位,进行主力客户、次主力客户、边缘客户、潜在客户的分级,同时对每级客户进行区域、行业、个人习惯等进行全方位画像,便于精准推广。
现有市场盘子较为固定,“狼多肉少”的局面会一直存在,因此项目销售应注重加快节奏的速度,应尽快组建销售团队,制定销售策略,能早尽量早,能前置就尽量前置,不按照传统步骤浪费时机。
工程进度是企业实力的表现,交房时间的差别也是客户重要关注点之一,也能尽快将图纸印象转为实体体验,促动营销招商和客户认可
以济南市为例,各行政区都有项目在建,除南部片区尚未成规模外,其他片区都形成了较为明显的产业园区聚集。
政府对各片区产业方向有宏观的政策导向,部分园区也进行了聚焦,如医药产业、智能制造产业等;但在实际操作中,绝大多数项目仍以招商实际落地进行产业的自我形成。
产品呈现多样化,独栋、联排、多层、高层等建筑形态丰富,1-2层产品成绝版,3-5层成为主流;交通核、货物装卸、专业管井等产品细节也更注重,产品满足企业实际需求和人性化关注的程度越来越高。
各级政策导向都鼓励发展产业及作为空间载体的园区,土地、手续、资金、政策等各方面都有各层级的扶持;同时,也在规划、产业、手续等各方面进行了规范与约束。行业正处于政策更迭转换的初期,行业政策成熟仍需时日。
5.市场需求——疫情影响逐渐减弱,市场回暖迹象明显
疫情影响下,部分企业受到影响,购置计划取消;部分企业前景不明朗,购置计划暂时搁置;随着国内疫情缓解,刚需群体逐渐回归,客户积极性提高,市场复苏迹象明显。同时随着可选择性增加,客户购置厂房也更趋理性。
2019年上半年,各片区、各项目基本都独自为战,不存在明显的项目竞争与片区竞争。自2019年下半年,项目呈现井喷式爆发,直接导致片区内项目竞争白热化,各片区之间的竞争也愈加明显。
2021年整体销售情况不乐观,个别产业园区几个月都没有成交,其中有市场原因,也有园区自身的原因。
市场竞争倒逼开发主体变革,在产品设计、项目定位、营销推广、服务运营等各个环节都加速提档,由开发商向服务商、由工业地产商向产业园运营商进行角色转变。
a) 多层厂房去化较快面积区段:600-1500㎡
a) 销售均价3000-4000元/㎡,开发严格成本控制:2300元/㎡以内(完全成本)
建议采用此布局条件:地下停车为主,考虑沿街厂房销售功能。
以一条道路服务两侧建筑为一个组团,场地宽度、长度一定时,大概推算场地内可设计竖向与横向组团数。
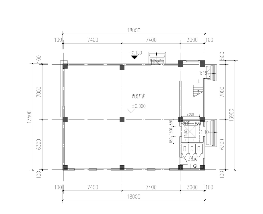
250平方独栋(或双拼)户型(丙类厂房),独立交通空间,设置一部疏散楼梯
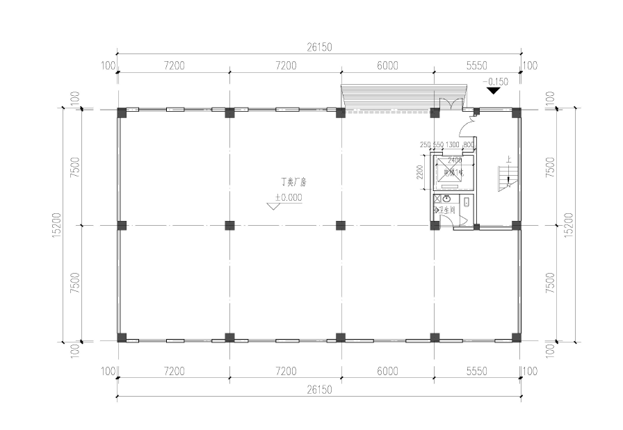
300-400平方独栋(或双拼)户型(丁类厂房),独立交通空间,设置一部疏散楼梯
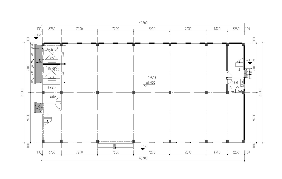
600-1200平方独栋户型(丁类厂房),独立交通空间,设置两部疏散楼梯,结合总图布置及工艺使用需求,推荐采用两种柱网形式,户型组合可分可合。
a 产品介绍:前办后场,分跨销售,含钢量45kg/㎡(5吨吊车)
八、项目案例


团队成员:高峰 金霞 王龙 唐海朋 刘超 蔡一真 袁恒
本资料声明:
1.本文为建筑设计技术分析,仅供欣赏学习。
2.本资料为要约邀请,不视为要约,所有政府、政策信息均来源于官方披露信息,具体以实物、政府主管部门批准文件及买卖双方签订的商品房买卖合同约定为准。如有变化恕不另行通知。
3.因编辑需要,文字和图片无必然联系,仅供读者参考;
合作、宣传、投稿
联系微信:soujianzhu006

推荐一个
专业的地产+建筑平台
每天都有新内容
扫描二维码关注

微信公众号“搜建筑”(ID:sjz9999)
点击“阅读原文” ,“龙源科建”更多作品