▲ 更多精品,关注“搜建筑”
来源:POLY技术汇 ID:POLY-Technology
宅家四大困扰:爸妈太近,孩子太吵,睡觉太多,活动太少。——过去「常回家聚聚」的愿望,在疫情的挤压下变成了「真想一个人静静」。
我们深切体会到,所谓「家」不只是全家老小掏光口袋供养的一个建筑,不只是楼下的省级名校和半小时通勤圈,更是一个承载生活变化、代际关系的空间。
理想的生活,有多少人,就有多少种。但这理想背后,有一个基本的共识:尊重个人隐私的前提下最大限度的满足共住生活的需要。
个人的隐私,代表着生活的边界,空间上需要尽可能高效的空间分割;共住的需求,代表着多样的生活场景,单一空间需要尽可能实现功用的灵活。
但这一对矛盾的命题在疫情之下被充分扩大:想工作的时候,房间不够,互相打扰;想聚会的时候,客厅太小,活动不开;想在楼下散散步,还要小心电梯间的传染......
因此,我们需要一个「治愈系」的居所,它要足够硬核,能够抵挡外界的侵害,也能实现家庭内部的体面自由。——上海保利云上,通过优化公区设计和户型极致分割,完美的解决了【隐私和共住】矛盾。
保利云上是如何「治愈」了我们的房子呢?那就要看看其从“公区”到“户内”,从“卧室”到“客厅”的这些设计细节了。

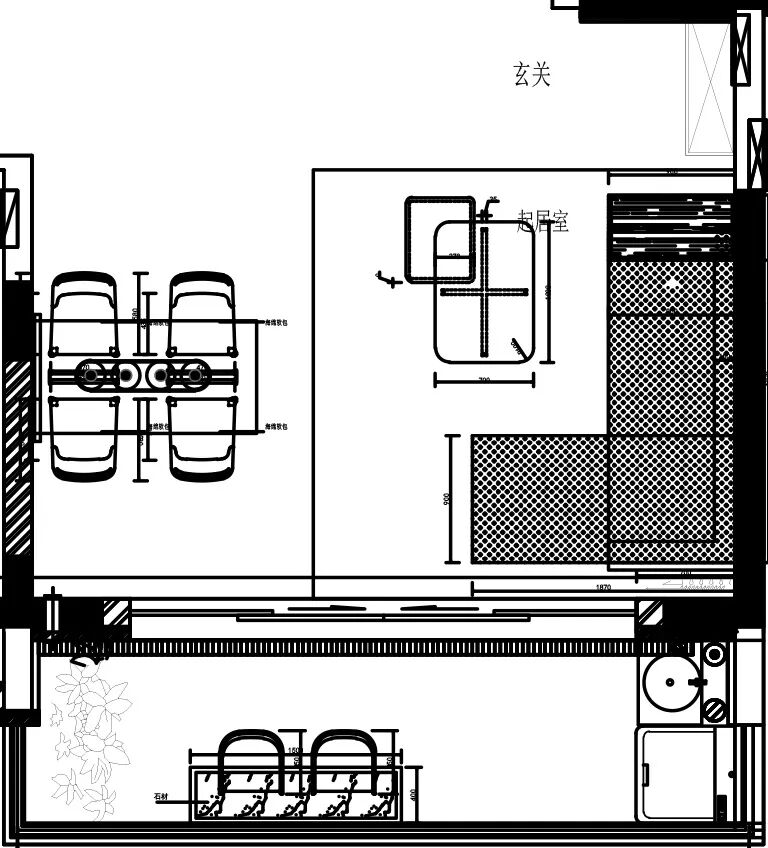
5.2m面宽大客厅,带来多重生活的可能
1
治愈系公区——从大堂到电梯
公区作为入室过渡,其私密性一直被忽视。在平时上下班高峰期,社区出入口的糟杂混乱让人烦躁不安;等候电梯时的拥堵、隔壁家门口堆放的皮鞋......不但让入室前的路变得难行,拥挤感更让用户隐私感全无,社区内部私密性差因此成了无数业主的痛点和槽点,解决这一大难题,就需要归家流线和空间的合理规划。
保利.云上采用人车分流的形式,有效避免了上下班高峰期的拥堵,在拥挤时段也能充分保障了小区内居民安全,有娃家庭不用把娃抱在手上,让下课放学的孩子放心奔跑。

社区大堂流线分析图
中间贯穿的大堂保障了人流的畅通。内院设计则屏蔽了外部的糟杂,保障了业主的隐私;共享的玻璃花房则为业主提供了一个休闲好去处,共享和隐私空间得到兼顾。

贯穿的大堂

内院实景图

玻璃花房
保利.云上采用双入户大厅+对穿电梯的设计,业主在等候电梯的时候可以减少50%的人员接触,更好得保障了业主的隐私。

双大厅平面图


大厅效果图
一梯一户杜绝了和其他业主的接触,而户外预留的私享空间更好得保障了业主的隐私性。
公共区域共的两个处理十分亮眼:第一,电梯和楼室放在一个竖向方向,做到类一梯一户的入户体验,约6平方米的私家电梯厅空间,做收纳也好,做过渡隔离保护隐私也好,「玄关外置,内藏天地」,这样可以最大程度地节约公摊。第二,把电梯做成双向开门的方式,进一步节省传统电梯北向开门所预留的走道部分,这样的做法更是可以直接把公摊降到最低。

保利.云上在入户前的三重空间充分考虑到【共住与隐私】的这一矛盾,致力让公区私密性不再被诟病,而2020年伊始爆发的新冠肺炎疫情,让原本就注重私密性的公区空间摇身一变成为三重防线,比传统小区更科学更有效地进行防控。
2
疫情之下,三重空间变形三重防线
第一道防线:
示范区大堂(100%拒病毒于门外)
疫情之下,示范区的大堂则成为抗疫的前线,不同于普通社区配套设置小区内部 或边角处,保利云上把社区配套服务设置在归家流线的第一站,既有利于拒病毒 于小区大门之外,又有利于小区防控工作的展开。

大堂消毒实景图
保利.云上社区大堂四大巧妙变形:
1.外挑的雨棚恰好为社区内外部人员提供了一个风雨连廊。
2.宽敞的大堂则可以成为社区监测点和消毒场所。
3.原来的内庭院可以作为外卖存放区。
4.文化活动室可以临时改成快递物品存放区。
在这一场全民参与的抗疫战斗中,社区出入口成为了防疫战斗的桥头堡,这里成 了外部人员聚集地、社区人员出入口、社区检测点、以及快递外卖等物品的集散 地。现实确是物品放置混乱,人流交叉,而且露天,极易造成交叉感染。因此传 统的一个门卫或岗亭是不能承载这么复杂和繁琐的任务的。
一个宽敞的大堂是很必要的,保利云上大堂轻松解决以上痛点,而且设置了消毒设施,100%拒病毒于门外,100%确保进入人员都是安全的,站好防疫的第 一站。

社区大堂临时改造分析图
第二道防线:
双入户大厅+对穿电梯(减少 50%的接触)
我们知道防疫的关键是减少接触,社区居民进入家庭之前的必经之地就是入户大 厅。电梯若是单开的,双入户大厅是起不到分流 50%的作用的。因此双入户大厅+对穿电梯才能真正起到分流50%的作用。这些人性化的设计 保利云上提前都想到了,而且大厅侧面的窗户也保障了大厅的通风性。

双大厅平面图
第三道防线:
一梯一户+二次洗消空间 (实现 0 接触)
一梯一户杜绝了和其他业主的接触,而户外预留的私享空间则给业主带来了更多 改造的可能性,疫情来临作为入户的消毒处理空间,放置消毒洗手液、消毒液、 存放外衣、鞋具、雨披等防疫物资,做到户内户外洁污分离,形成第三道防线。

二次洗消空间
保利云上为您筑起的这 3 道户外防线,从病毒的防控上讲,是在根源上减少接 触,避免交叉感染。从产品力上讲,保利云上的这 3 道户外防线是建立在保利人性化的产品设计,站在业主的角度,想到每一个细节。

户外二次消毒实景图
3
治愈系卧室——尊重隐私的体面
共住与隐私的矛盾在家庭里更为明显,长时间亲密相处的家人之间更需要体面的隐私空间,一大家人挤在一个八九十平的【伪三房】空间里,六七口人共用一个洗手间,每一个卧室都被压缩到极限,在一个「开门就是床,抬头没有窗」的房间里,睡到天昏地暗——明明是一家人,生活节奏却像极了「室友」。而有些极限3平米的卧室虽然有床,却难逃杂物间的命运。
而上海保利的云上98平户型真正实现了通过三个完整的卧室空间,让住户在私密空间得到放松。

相比较常规的主卧套设计,新中产家庭更加追求仪式感与轴线感。所以,云上在设计主卧时加入了豪宅标配的玄关衣帽间,加上卫生间与居住空间,形成1+2式套房设计,搭配实用性极强的飘窗,达到更极限的功能满足,100㎡以内小户型主卧拥有真正套房的概念,营造居者的私密生活体验与出众的生活品质。
在具体布局上,主卧入口两侧是步入式衣帽间和卫浴间,起床、洗簌、更衣、化妆,4个步骤,5米距离,只需8步行走;独立衣帽间让挂放区、叠放区等分类储藏空间成为可能,也创造了更多可以安坐读书写字的安静区域。
给予主卧更多独立功能,是对自由与私密的保护,也是对这个城市奋斗者的最大尊重。休息和居家办公不冲突,超大主卧套间的衣帽间和飘窗为居家办公提供更多的可能性。

长期的居家生活办公,出现了以往很少同时出现的两类活动:孩子上网课 (09:00-20:00)、爸爸妈妈工作开视频会(8:00-22:00)……随时随地的学习+随时随地的工作,原来的家庭,又承载了多重功能。这时就需要各个房间的相对独立性、避免干扰,而这时,次卧则可以作为办公、学习的另一个空间。
保利·云上的每一个次卧都配备了飘窗,采光通透、并保证了小空间的多样功能。次卧可以实现灵活改造,不管是儿童房或者办公室,抑或是临时亲友客房,都可以最大限度的维持家庭原有的生活节奏,避免相互打扰。房间不是对家庭成员彼此的分割,而是更多更灵活的生活选择。



在注重户内空间的私密性的同时,人们对于户内公共空间也提出了更多元化的需求。当然随着工作生活节奏的加快家人相处时间也在减少,这就需要提高户内公区的使用效用。传统南北厅的布局已经不能满足新生活的需要,保利.云上提供了一个多重功能灵活转换的公共空间。
4
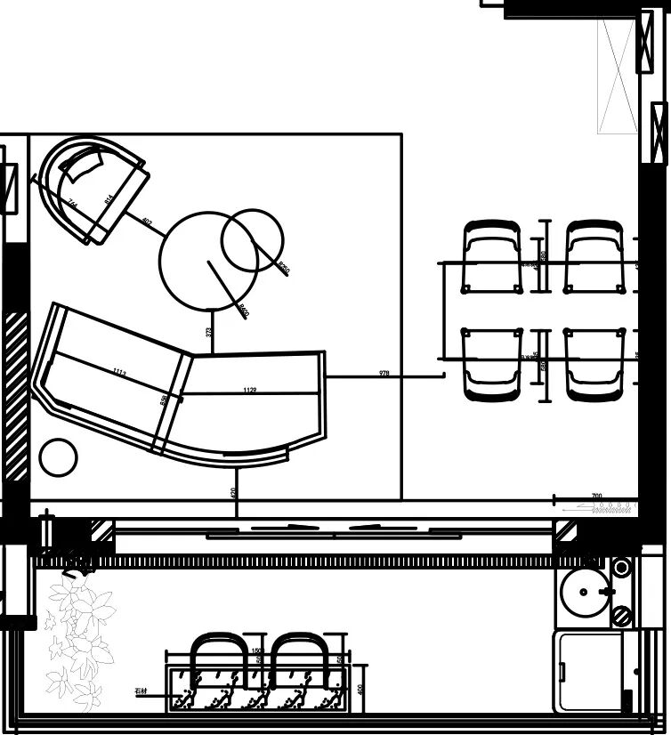
治愈系客厅:一幅三代同堂的画卷
疫情看似把所有的家人都困在了一起,但也分隔得清楚:属于女人的厨房,属于男人的沙发,老人无聊的转来转去催促全家吃喝,孩子则开发了每一个本不属于他的危险角落。一个多重可变的居住空间才能满足 N 重生活情境 。
保利·云上的变形金刚客厅设计从新中产家庭的亲子时光、家人陪伴等情感诉求洞察,号召家庭生活主场回归客厅,打造三种不同的空间布局模式,给不同家庭 阶段居者以全新的生活表达。
在 5.2m 米超尺度的家庭厅,有儿童天地、有会客厅、有阳光餐厅......多元化的可变复合功能空间,开放式一体化设计,在陪伴与独处之间自由转换,与隔墙同时消除的,是家人间情感的隔阂。

【变形一】二人世界的时候,可以采用“开放式横厅”布局,客厅与餐厅功能融合,形成大宽厅、大采光敞开区域,在视觉空间上更通透宽广。

可变1:开放环横厅模式
【变形二】如果需要明确的功能分区,将沙发放在客厅中间,形成独立的“客餐双厅”模式,一家人可以同时工作、 健身、阅读、看影视,互相有交流,又各得其乐。
可变2:客餐双厅分离模式
【变形三】亲子互动的最佳选择:——环形客厅模式:客厅的整面墙壁 可以设计一排书架收纳空间,再加上几张懒人沙发、一个小茶几、温暖的落地台 灯,可以成为您和孩子阅读、互动的最佳场所。
可变3:环形客厅模式
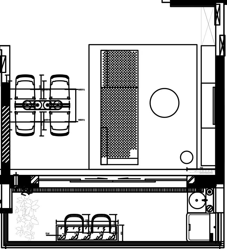
中央客厅可以打造一处儿童天地,在这里,孩子可以做游戏、绘画、听故事;这 里是全家人的目光焦点,爸妈视线无遮拦,大人们即使在厨房也可以看护孩子,既可以互动,也可以防止意外出现。

约 5.2m 面宽的阳台两侧墙壁都做了内凹处理,细节虽小但提升室内日常采光半小时,加上3.1米的层高,让室内的空气流通得到了提升。这样的阔景阳台可以变成第二家庭厅、品茗室、阳光瑜伽室、生活后花园,自由打造的私享空间,延伸出生活的宽度。 让无法下楼撒欢的孩子,不能出门遛弯的老人,在阔景阳台也享受生活的日常。

阔景阳台示意图
经此一“疫”,给我们带来了很多思考和反思。没有专门的抗疫户型,只有匠心设计,才能带来更加美好的生活。
疫情之下保利.云上恰好为家庭成员提供了三个私享室内空间,保障了各自的隐私和独立性;一个多重功能的客厅空间保障了疫情期间居家生活的丰富性。未来各个房间的私密独立性、客厅、厨房、餐厅的一体化设计的更多可能性将会受到更多人的青睐。
保利.云上做到“共住和隐私”和谐统一的秘诀是什么?

要回答这个问题就涉及到公司运营理念、规划理念和户型设计理念的问题。保利本着以人为本的原则,在产品规划和设计层面站在客户的角度,精雕细琢产品的每一个空间感受和细节。
快节奏的现代生活,让家人之间交流时间被不断压缩。因此,保利·云上在产品设计过程中,更多考量新中产家庭交流、共聚的时间,将餐客厨公共空间融为一体,打造超尺度家庭厅,即LDK三合一融合宽厅。并不是简单的把客厅、餐厅、厨房放在一起就是LDK一体化设计,LDK一体化设计的核心是要满足家人“共住”时多重活动的需求。

传统的南北厅竖厅式布局,3.6m左右的面宽,使用时常常感到空间的局促。所以横厅布置才能把局促的室内空间打开。保利.云上动区设计是LDK一体化设计的加强版,称之为“LDKB”,即厅、餐厅、厨房、阳台一体化设计,这也是最近新发布的“保利全生命周期2.0”产品在户型设计上的一大突破。云上的创新之处彻底打破“共住”空间的界限,从而形成一个把阳台纳入一体化设计的LDK PLUS版。

“LDK PLUS”一体化设计
而这样就会拉大整个房型的面宽,这也是保利.云上在同样的面积段里,比市面上大多数产品多一个面宽的关键所在。因为小户型设置的短进深+极大开间的模式,所以直接导致整个保利的标准层就要比传统的项目的面宽更大。

面宽大会意味着什么?——意味着设计难度之大
因为面宽大,也就导致了在规划排布上的难度加大,建筑与建筑之间的栋距也要拉长。所以某种程度上这是一个对开发商来说比较严苛的排布模式,楼型长度加大了,地面的绿化空间也要同步增加,所以很多楼盘都放弃了。
在坚守产品品质的同时保利云上,是如何在规划层面做到的?
1.部分楼栋首层局部架空

14#实景图
14#首层中间两户架空,9#首层左侧架空,不仅保障了楼栋之间的日照间距,而且当您在穿过社区大堂时,视线也能够透过14#的架空空间,增加了空间体验的趣味性。

楼栋首层架空分析
楼栋错位布局既最大限度的利用日照,又使楼栋群体之间形成了丰富的空间形态,避免了兵营式呆板的布局。而这一切从规划就开始的细心布局,最后导向了每一个户内空间的绝对舒适。
这就是保利与其他开发商在产品力上的区别所在。

楼栋错位布局分析
5
结语
快节奏的生活让人们更加注重共享空间和隐私空间的体验性,只有更加人性化的设计,才能带来更加美好的生活。
保利.云上提前谋篇,为业主精心设计了3重“共住与隐私”统一的户外空间,给人以安全感。
保利.云上以人为本,为业主外精心打造3大“隐私”户内空间,保护人的私密性。
保利.云上精心构想,为业主供1个多重功能“共住”居家空间,促进家人和谐相处。
因为疫情过去后,人们对于居住的要求不再局限于传统的【堡垒】——面积大,房间多,抑或是区位好都将成为居住的基本因素,而「治愈系」住宅将成为广泛关注的趋势,这不仅关乎健康,人文,更将成为每一个家庭成长的情感归属所在。正如小奥利弗·W·霍姆斯所说:
若问生活有价值否,唯一答案
就是你是否拥有足够的生活。

项目信息
项目名称 | 上海保利.云上
项目类型 | 住宅社区
项目业主 | 保利上海
项目位置 | 上海市海波路和黄家花园路交叉口
项目面积 | 10.6万平方米
建筑设计 | 上海尤安建筑设计股份有限公司
景观设计 | 上海山水比德有限公司
室内设计 | 北京紫香舸有限公司
责任编辑:吴寻、张天翔、余辉
* 版权声明:本文为保利发展的研究成果,版权归保利发展所有,访问者可用于个人学习、研究,以及其他非商业性或非盈利性用途。如需转载必须经得POLY技术汇同意,对于未经得POLY技术汇同意转载全部/部分研究内容者,保利发展将保留追究法律责任的权利。
本资料声明:
1.本文为建筑设计技术分析,仅供欣赏学习。
2.本资料为要约邀请,不视为要约,所有政府、政策信息均来源于官方披露信息,具体以实物、政府主管部门批准文件及买卖双方签订的商品房买卖合同约定为准。如有变化恕不另行通知。
3.因编辑需要,文字和图片无必然联系,仅供读者参考;
—— 作品展示、直播、访谈、招聘 ——
搜建筑·矩阵平台
合作、宣传、投稿
联系微信:soujianzhu006
推荐一个
专业的地产+建筑平台
每天都有新内容
扫描二维码关注

微信公众号“搜建筑”(ID:sjz9999)


