▲ 更多精品, 关注“搜建筑”
中国台湾·台南市立图书馆

台南是中国台湾最古老的城市,受到不同文化的影响,有着丰富的历史。这里有17世纪与欧洲海上贸易的遗迹,有中国明朝时期的遗迹。
这座城市有很多寺庙,包括17世纪著名的孔庙,其悬臂式屋顶和精美雕刻的天花板。新图书馆借鉴了这段历史,受到当地文化的启发,并为台南的热带气候而设计。
它是这座城市的文化遗产、现代艺术、音乐、电影和100多万册图书的所在地,它配备了现代图书馆的最新技术。

外型宛如轻盈飘浮在空中的台南市立图书馆,二楼以仿木质色的铝格栅外牆呈现取自台南老屋窗花的纹样,透过现代的材料展现结构与设计的优雅,除了具有隔热效果之外,更灵巧地引入光线,于地面上照射出美丽的图腾。
整栋建筑物以阶梯式立面的方式,屋顶层提供了地上 6 楼、地下 2 楼的遮蔽阴影,外围百叶窗更使用了台南清代的古地图意象,当阳光照拂于上时,可见清晰的历史轨迹,亦表现出如同竹林裡的雅緻风韵。

竹林。图书馆最引人注目的特点是倒置的阶梯形状。细长的柱子支撑着悬臂,形成有节奏的四重奏,给人一种穿越现代竹林的感觉。
建筑引人注目的顶部被带有雕花图案的垂直铝条包围,这让人想起老城区的装饰性格子窗。这些板条能过滤光线,把热量挡在外面。在晚上,这种独特的立面从远处就可以辨认出来。

阶梯式建筑为内外游客提供了庇护,并创造了内外的平稳过渡。在悬臂下面是四个用于户外活动的下沉天井,最大的天井可以从广场进入;这里可以举办讲座、音乐会和展览。
向上看,你可以看到遮阳篷的特殊装饰:香槟色铝板与线性交错浮雕,为立面提供额外的装饰元素。图书馆的合理结构允许最大的灵活性,使建筑为未来的变化做好准备。
The stepped building offers shelter to visitors both inside and outside and creates a smooth transition from exterior and interior. Below the cantilevers are four sunken patios for outdoor activities, with the largest accessible from the square; lectures, concerts, and exhibitions can be organized here. Looking up, you can see the special finish of the awnings: champagne-coloured aluminium panels with a linear staggered relief, providing additional decorative elements to the facades. The rational construction of the library allows maximum flexibility so that the building is prepared for future changes.

艺术和书籍。一进入这个通高的中庭,就可以看到保罗·考克塞奇(Paul Cocksedge)的一件艺术品。
这个装置似乎凝固了白色纸张被风吹走的瞬间,象征着思想的自由和阅读的乐趣。艺术在建筑中随处可见,不仅可以观赏,还可以接触和玩互动艺术。
红色雕塑楼梯为几何建筑增添了令人兴奋的元素,贯穿所有楼层,通过微妙的木条楼梯楼梯段随处可见。
Art and books. Once inside, the double-height atrium is inhabited with a work of art by Paul Cocksedge. The installation seems to freeze the moment when white sheets of paper are blown away by the wind, symbolising freedom of thought and the pleasure of reading. Art is exhibited everywhere in the building, not just to look at but also interactive art to touch and play with. A red sculptural staircase adds an exciting element to the geometric building, intersecting all levels and is visible everywhere through the subtle wooden-slatted flight of stairs.


底层空间宽敞、透明、温暖,这得益于木质的表面处理。进入后,迎接你的是到达区和迎宾台,客厅也位于这里,你可以在这里阅读报纸和杂志。在这一层,你可以使用触摸屏来探索藏书,还有一个自助借书点。
下面是儿童图书馆,里面有富有想象力的书柜和一个毗邻的户外游戏天井。这一层还有一个宽敞的自习室,有自己的入口,学生可以在这里全天候学习。
The ground floor is spacious, transparent, and warm due to the wood finish. Upon entry, you are greeted by an arrivals area and the welcome desk, a living room is also located here where you can read newspapers and magazines. Touchscreens with which you can explore the collection and a self-service point for borrowing books also feature on this level. The children's library with imaginative bookcases and an adjoining patio under the awning for outdoor play is situated below. This level is also home to a spacious study room with its own entrance, where students can study 24/7.

遗产收藏。当你走到大楼的上层时,你首先会看到一个媒体图书馆,里面有座位,你可以在这里看电影,还有一个青少年图书馆,有自己的休息室。
入门后挑高的一楼大厅天井一路延伸至三楼高,引入自然光线、拥有开放的视野,对内对外都得以拥有自然连贯的流动气息,最为显眼的当属天井的公共艺术「阵风」(Gust of Wind),由英国艺术家团队保罗.考克斯基(Paul Cocksedge)创作,像是凝结了白纸随风腾飞的瞬间,展现了动与静、轻与重的对比,表达台南市立图书馆新馆的本质——思想的自由,以及纸本阅读的快乐。


这里还有四个室外区域,被安排为屋顶花园,以及三个多功能的教室/工作室和咖啡厅。在大楼的顶部,你可以看到剧院、会议厅以及工作人员的办公室。
从建筑物的最上层,可以看到城市的美丽景色,透过垂直的板条可以看到。
此外,该建筑有一个艺术画廊,一个创客空间和盲文图书馆。还有一个书店,你不仅可以看书,还可以买书。
There are also four outdoor areas situated here, which are arranged as roof gardens, as well as three multifunctional spaces for classrooms/workshops and a cafe. At the top of the building, you will find the theatre and conference hall, along with offices for members of staff. From the uppermost levels of the building, a beautiful view of the city through the vertical slats is on display. Furthermore, the building has an art gallery, a maker space, and Braille library. There is also a bookshop so that you can not only read books but also purchase them.




外表沉稳、以垂直线条为主的台南市立图书馆新总馆中,地面积木质色调中更以大红色贯穿了全馆各楼层,为原色的空间增添了热情与活力,也象徵巧妙地将台南市树「凤凰树」意象植于建筑物设计当中。















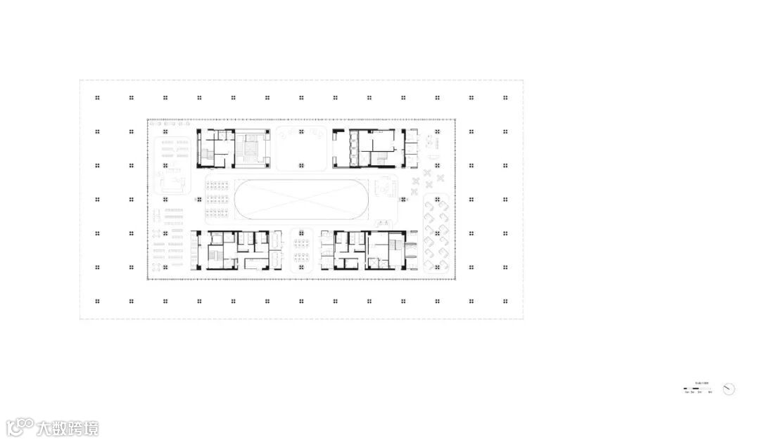
1层平面图

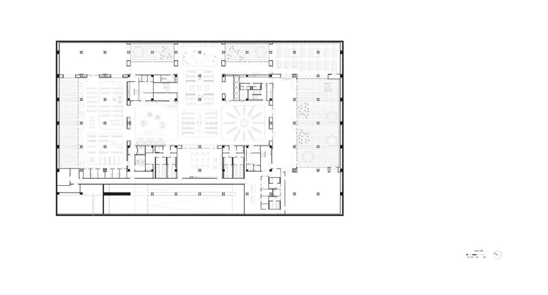
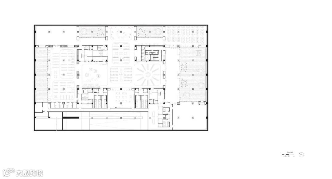
2层平面图

3层平面图

4层平面图

6层平面图

B-1平面图

南立面图

北立面图

剖面图


建筑师:MAYU建筑事务所+Mecanoo建筑事务所
地点:中国台湾
面积:37000 m²
年份:2021
本资料声明:
1.本文为建筑设计技术分析,仅供欣赏学习。
2.本资料为要约邀请,不视为要约,所有政府、政策信息均来源于官方披露信息,具体以实物、政府主管部门批准文件及买卖双方签订的商品房买卖合同约定为准。如有变化恕不另行通知。
3.因编辑需要,文字和图片无必然联系,仅供读者参考;
—— 作品展示、直播、访谈、招聘 ——
搜建筑·矩阵平台
合作、宣传、投稿
联系微信:soujianzhu006
推荐一个
专业的地产+建筑平台
每天都有新内容
扫描二维码关注

微信公众号“搜建筑”(ID:sjz9999)


