宁波杭州湾新区产业工人宿舍与食堂
Ningbo Hangzhou Bay New Zone Workers' Dormitories & Canteens
中国,宁波
Ningbo, China
“城市是一本打开的书,从中可以看到它的抱负。让我看看你的城市,我就能说出这个城市的居民在追求的是什么。"
——伊利尔·沙里宁
引 言
_
“进城务工”在中国的城市化发展浪潮中流行了很久,依然还是“进行时”。近年,“用工荒”现象严重制约了企业的发展,这是由社会发展和新时期劳动力特点决定的。目前的劳动力主力为“90后”“95后”新青年,他们选择离开家乡换一个城市生活很大程度上不是基于生存需求,而是改变自己的生活,把工作作为开辟自己人生的机遇与途径。
这一批新青年都念过书,有文化,了解外部的世界,知道城乡之间的差距,城市文明对他们有着巨大的吸引力。他们很多是独生子女,具有朴素但又有些盲目的平等和民主观念,他们希望享有一样的平等就业、平等享受公共服务的权利。他们要求找出平等发展的机会,寻找精神上的归属感。
一个什么样的社区
异客的青春舞台 · 舞者的蓝色裙摆
_
本次项目位于宁波杭州湾新区,杭州湾跨海大桥的南部。随着2001年跨海大桥的建设,杭州湾新区的建设也正式启动。新区居于上海、宁波、杭州、苏州等大都市的几何中心,妥妥的C位出道。是国家级以制造业和服务业为主的经济技术开发区。新城的发展离不开人才的导入,大量人口的居住需求摆在了面前。
杭州湾新区的规划充分考虑了混合社区的建设,以吸引企业入驻,留住人才,缓解企业建设的后顾之忧。作为新城发展的“后勤保障部”,一个什么样的蓝领社区才能满足新一代“异乡人”的需求,实现这批新青年由“异乡客”到“新杭州湾人”的转变?
场地周边除了南侧150米宽的河道,基本被大大小小的工厂围绕,未来地块3km范围内的工业区是客群的主要工作场所。此次的设计工作需要的不仅是为这批蓝领一族提供一个静止的栖身之所,还是为他们提供一块真正融入这个城市的跳板,懂得其落脚点的核心意义,便知道这是一个他们扬起“裙摆”,尽情挥洒热情的青春“舞台”。
◎设计愿景
围绕主题展开的设计二三事
_
1、 简洁清晰的规划布局
水平方向上,以两大居住组团夹社区中心的布局方式展开。中部的社区中心由一个1500㎡的公共食堂以及休闲餐饮、银行网点、便利店、早教中心等生活配套组成,辅以商店、书吧、网咖桌游、健身中心等符合年轻人休闲娱乐需求的主题据点;两侧居住组团为近似“回”字的围合布局,各自围合出组团绿地中心,起到“外观河景,内拥园景”的效果。
◎设计草图
◎规划结构
垂直方向上,底层是相对开放的社区配套及活动空间,顶层为相对私密的居住空间。
整体规划简洁清晰,动静分区明确,提高土地利用率的同时尽可能多的植入邻里空间,提高公寓的居住体验。
◎沿街与内部视角
◎庭院空间
2、 立体多样的空间舞台
“人在异乡为异客”,旅人的落寞心情需要通过结识新朋友,打开新的生活圈来打破,为青年们提供一个互相交流、沟通、表演的城市生活舞台空间是极其重要的。建筑中置入多重空间平台以承载各样公共或半公共的生活场景;
◎多重空间层次
第一层舞台-社区中心:位于场地中部的社区中心是连接外部与居住空间的必经之路,是整个场地最开放的区域,借助内部丰富的生活配套可形成热闹的社区氛围;
◎社区中心
第二层舞台-丰富的架空层:架空层是社区中心的延伸,地块整体架空层高度达4.5米,除基本的停车空间外,青年们可以在这里组织社区活动,也避免了对居住区的干扰;
第三层舞台-增强联络的空中连廊:横向长廊将一系列空中庭院串联了起来,形成一串连续的休息平台,为居住于不同楼栋的人群的联系创造了机会;
◎空中连廊
第四层舞台-走廊尽头的红盒子:走廊尽头设置凸出的红色体块,为原本单调的长走廊空间点缀了些许趣味性的起伏;
◎走廊尽头的红盒子
第五层舞台-惬意的空中庭院:将局部挑空的空中庭院错落地置入到建筑之中,打破原有内廊式公寓呆板的空间形式;
◎空中庭院
3、 富有层次的立面组合
公寓宿舍立面往往受内部功能影响,普遍呈现较为规整单一的样式。而本案中,我们将公寓立面的奇数层和偶数层左右错位组合,以此增加立面变化。
◎立面逻辑
◎公寓标准模块立面
结合内部空中庭院和空中连廊,在白色的立面基底上增加跳跃的横向线条和点状色块,如同舞者挥舞的橙色飘带,将零散的楼栋整合成一体。
◎公寓立面-橙色飘带与体块
空中庭院外立面由四种大小不一的洞口进行重复的排列组合,增强立面节奏感的同时,也达到了一定的框景效果。
◎立面逻辑
◎立面选材
社区中心的食堂是本次项目赋予我们较大设计空间的一栋建筑,建筑形体以“舞者的裙摆”为原型,将裙摆被扬起的瞬间抽象出来,形成建筑上下起伏,富有韵律的屋面。
◎设计概念
◎体块生成
屋顶材质在多次比较后选定能代表蓝领一族的蓝色钛锌板,金属材质随着屋面的起伏形成不同的光影质感变化,与周遭建设厂房的铝板材料接近但又呈现出了完全不同的视觉效果,戏剧性的起伏是整个片区的点睛之笔,是舞者在舞台上掀起的高潮,也是青年们即将在这片土地上翻开的新篇章。
◎公共食堂-起舞的屋顶
◎立面选材
结 语
_
城市、建筑、空间的核心应该是人。我们期盼的片区未来图景是在杭州湾快速发展的城市整体形象之中,在人们日常生活中,一层新的充满生机、诗意和具有特色的城市空间的产生,并逐渐生长和蔓延,静静地改变我们今天所熟悉的一切,从而创造一种容纳新生活和新趋势的居住环境,并最终改变居住于其中的人们。
技术图纸
_
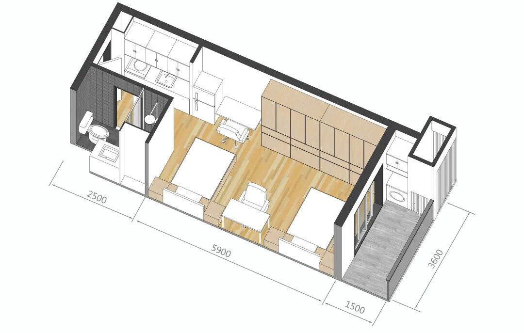
套型A
套型C
套型B
套型D
◎公寓套型设计
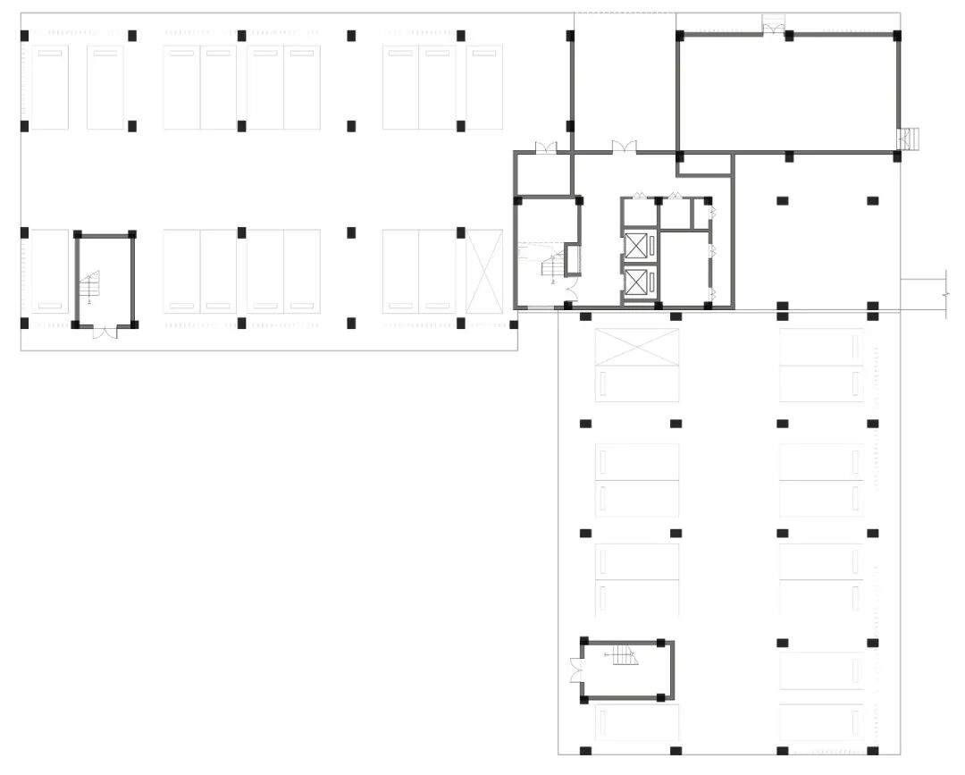
◎宿舍首层平面图
◎宿舍二层平面图
◎宿舍三层平面图
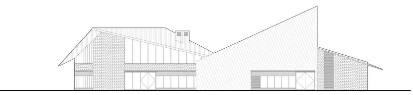
◎宿舍南立面图
◎宿舍东立面图
◎宿舍北立面图
◎宿舍西立面图
◎宿舍剖面图
◎配套食堂西立面图
◎配套食堂东立面图
◎配套食堂北立面图
◎配套食堂南立面图
◎配套食堂剖面图
工程档案
项目名称 | 宁波杭州湾智慧佳苑(产业工人宿舍与配套食堂)
项目位置 | 宁波杭州湾新区滨海六路南侧
建筑面积 | 170000m²
业主单位 | 宁波前湾控股集团
设计单位 | 上海日清建筑设计有限公司
项目总负责 | 宋照青
设计团队 | 陈斌 李明 李志 陈舒云 周旭阳 刘兆鑫 常磊
施工图设计 | 浙江华展工程研究设计院有限公司
建筑摄影 | 张虔希
本资料声明:
1.本文为建筑设计技术分析,仅供欣赏学习。
2.本资料为要约邀请,不视为要约,所有政府、政策信息均来源于官方披露信息,具体以实物、政府主管部门批准文件及买卖双方签订的商品房买卖合同约定为准。如有变化恕不另行通知。
3.因编辑需要,文字和图片无必然联系,仅供读者参考;
—— 作品展示、直播、访谈、招聘 ——
搜建筑·矩阵平台
合作、宣传、投稿
联系微信:soujianzhu006
推荐一个
专业的地产+建筑平台
每天都有新内容
扫描二维码关注

微信公众号“搜建筑”(ID:sjz9999)


