▲ 更多精品,点击关注“搜建筑”
户型动线,我们经常提到,但是对这个名词大家可能没有太多了解,要知道,动线不合理,再大的户型住进去都会心累身累!所以大家一定要注意了解动线,那么究竟何为动线,动线又该如何看呢?
户型动线是什么?
动线意指人在室内室外移动的点,连合起来就成为动线。
动线之间相互交叉的部分越少越好,一个好的户型动线,即使一个家户型不大却依旧生活舒适、宽敞亮堂、空间利用率高。因此,在了解户型和动线尤为关键。
动线如何规划才合理?
动线其实是由两部分构成的,第一就是指房屋内的各种固定构造物及摆设,另一部分就是指人流、物流的路径。这两者会因为不同的设计而相互影响。
好的户型动线设计能大大提升空间的居住体验,通过合理的动线规划,能有效的减少或避免住户在空间内重复行走、劳动。
动线的设计有两个核心:即“更短”和“更方便”。“动线更短”意味着能以更短的距离完成运动,“更方便”意味着能以更少的动作完成运动。
01
居家三大动线
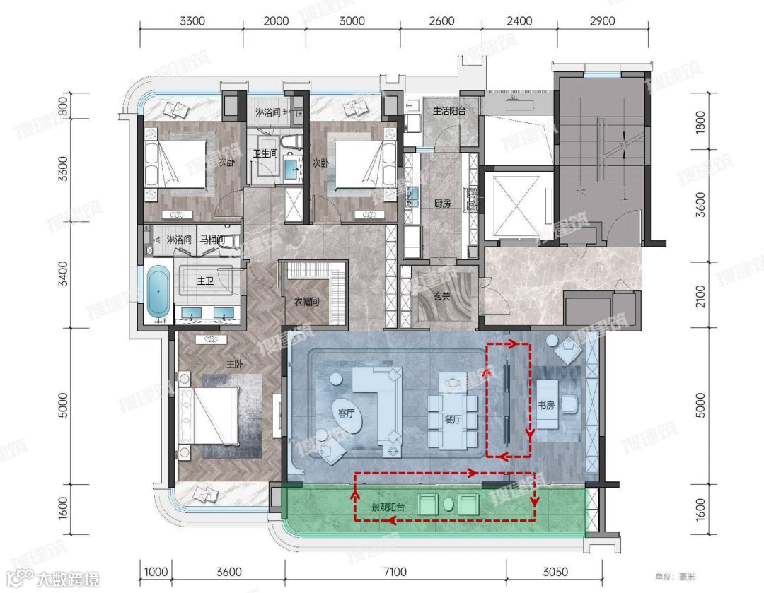
户型动线主要分为三条:居住动线、家务动线和访客动线。这三条动线将房间划分了不同区域,分割了各自的空间。
比如昆明绿地428公馆,这个约215㎡的户型只做了4房,房间数量虽然减少了,但是生活场景变得丰富了,还满足了全生命周期的居住体验,这也是绿地空间利用的一大原则。
昆明绿地428公馆建筑面积约215㎡户型平面示意图
从入口处玄关利用玄关柜体构成三条生活动线,4个房间布置得很合理,完全足够三口之家、二孩家庭甚至三代同堂使用;客餐厅是整个生活的重心,是社交共享空间,这样的动线布局更加符合当代高净值人群对居住的需求。
融创推出的“欢乐家”户型,整个动线搭配玄关,使用场景很是丰富。
图源:融创“欢乐家”
普通入户动线,净脏分区,室外污染不带进室内。经过脏区,然后才是双动线。丰富了室内的洄游动线,增加空间的趣味性,在户型升级和场景创新上都有突破。
02
家务动线
路线短、方便快捷
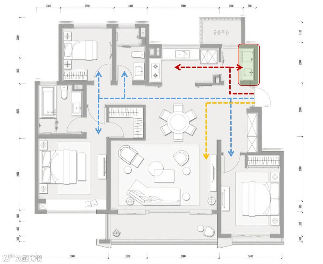
家务动线是在家务劳动中形成的移动路线,一般包括做饭、洗晒衣物和打扫,涉及的空间主要集中在厨房、卫生间和生活阳台。
1925年,柯布西耶以“洄游户型”的设计理念,为母亲设计居所。
洄游动线将空间串联,烹饪食物的同时可以洗衣服,而洗完的衣服就近在露台上晾晒干了,马上收进旁边的衣帽间,动作一气呵成。
比如仁恒将柯布西耶的“洄游户型”,应用于当代生活空间,买了菜,可以直接进入家政间。然后进入厨房进行处理,不必经过客厅、餐厅,完美避免污渍、污染等情况。

苏州仁恒园和约142㎡户型图
客厅、餐厅、厨房“十字洄游”,由于没有通道设置,大大提高空间利用率。厨房、餐厅、客厅、阳台,空间自由延展,让阳光与清风弥漫心间。
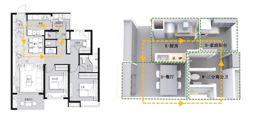
在95平米户型上,保利打造了一条“KWB高效家政洄游动线”按照zui短路径原则,“厨房+家政阳台”的组合可以让你秒变“家政女王”。

图源:poly技术汇

颐和金茂府约256户型双动线示意

颐和金茂府约256户型入户花园实景图
双玄关收纳体系,玄关收纳以及入户步入式衣帽间设计,紧邻电梯厅和北侧走廊,特殊时期取放防疫物资、消杀,十分便捷。平时出差、下班,风尘仆仆地回到家,也可以在外面换洗完再进入客厅,晾挂衣服,完全做到了洁污分区。

颐和金茂府约256户型衣帽间实景图
融创西南研发,改变市面上普遍在户型设计上,将厨房被动当作“过路道”的现状,将所有的家政空间集约到一处,形成方正的“家政盒子”,紧凑且动线不会被打扰。
比如下边这个约144㎡的户型,以家务动线为中心的动线设计,将家庭76%的家务活动聚集在约25㎡的“家政盒子”。

图源:融创西南,上海大椽建筑设计
重庆万科户型入户花园设计,实现了双归家动线。

重庆万科城市花园136㎡ 户型图
苏州仁恒·溪云雅园入户动线就是这样的:
进门后,在玄关换鞋,然后拐到卫生间干区洗手,再穿行去厨房、客餐厅,或是回卧室。
这样的设计,充分考虑到新冠疫情之后人们生活习惯的改变,满足大家对归家消杀的需求。
苏州仁恒·溪云雅园140㎡户型
万科西庐125平米户型进门后,沿左侧便是家政动线,家政间位于厨房一旁,超级方便。入户右手边还有个储藏室,可以堆放购物车、大件玩具、日用品囤货等等,非常实用。

万科西庐125平米户型
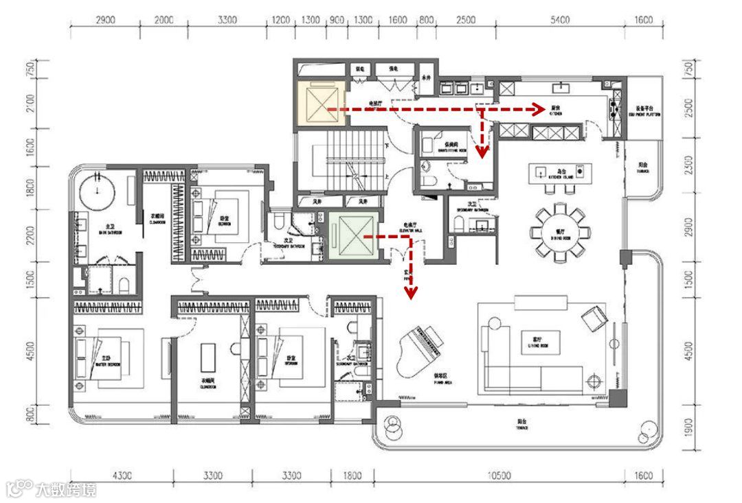
说起家务动线,在豪宅面积段,就不需要主人做家务了,就会出现主仆动线。
比如万科半岛国际泓园户型一层一户,真是亮点满满:

南通万科半岛国际315平米户型
两部电梯自然划分出两条平行动线,将公区与家政动线分开,由主入口进门,便能感觉满满尊崇感。

南通万科半岛国际
公区是经典LDKB一体化生活轴线,社交空间、会客空间、烹调空间连成一体。超10米面宽的大边厅连接L型跑道阳台,中岛台,担纲社交厨房重任。

南通万科半岛国际
比如岳阳南湖天著二期平墅,约536㎡户型有三大动线,我们主要来看一下主仆动线:
主人动线:主人归来,从玄关步入艺术走廊,直接进主人套房,换上家居服,即可享受舒适的个人时光。
岳阳南湖天著约536㎡ 主人动线示意图
后勤动线:保姆通过家政电梯,直达保姆房及家政区,不动声色开始准备餐点。
岳阳南湖天著约536㎡ 后勤动线示意图
每个区域,互相联通,又可以互不干扰,乃为人性化的设计考量。
贴心家政服务系统,确保保姆的工作、生活动线与主人完全分流,独立电梯、独立入户、独立保姆套房、独立家政间,保姆也能享受品质生活,更好地为主人服务。
03
日常生活动线
私密空间+聚合空间
改善户型中,玄关的设计重要度还相对比较高。玄关要实现的功能除了优化入户动线、保护隐私以外,增加收纳空间也是很重要的一点。
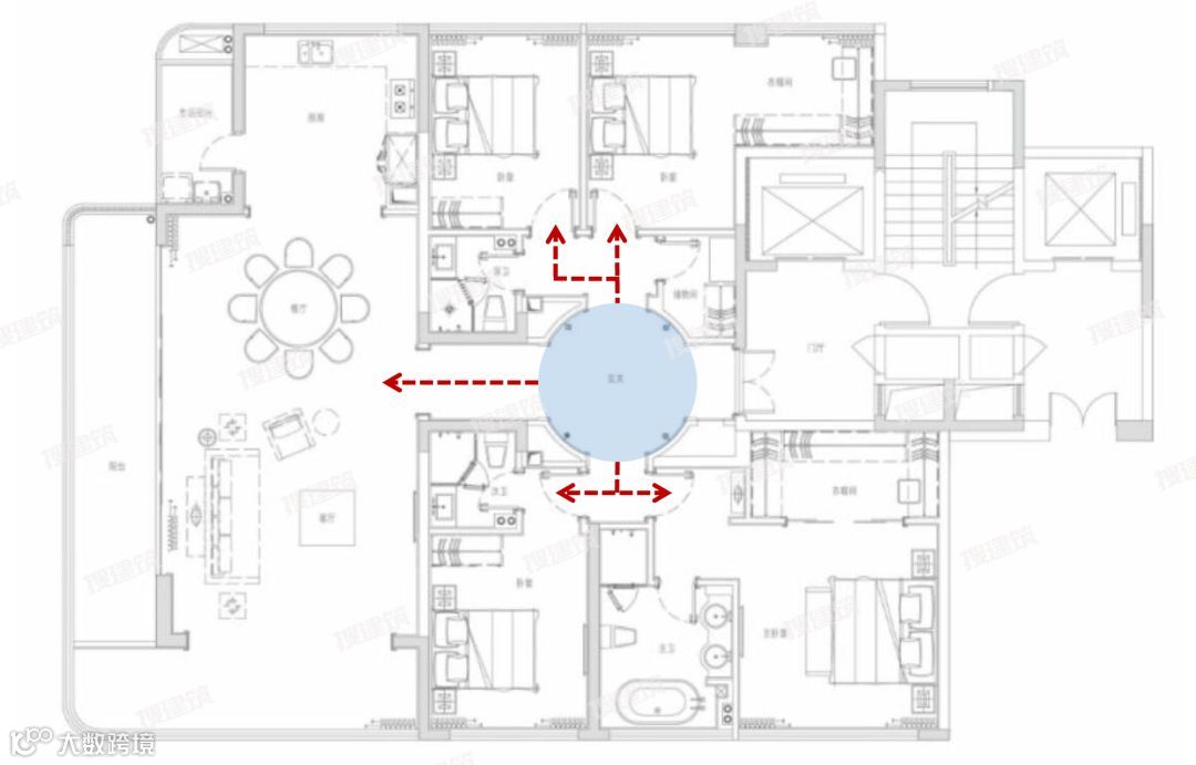
比如在锦江天玺建面约202㎡户型中,一大亮点则是圆形玄关,四间卧室围绕玄关均匀排布,保证了每个卧室的私密性。

德商锦江天玺高层约202㎡户型
这种圆形玄关是从北美著名的纽约上东区流传出来的,也被称为“女王玄关”。锦江天玺在建面约200平米空间中引用这种圆形玄关,可以说是引领了成都豪宅户型之先。
对于不同年龄、不同生活作息的家人,通过玄关的分隔,各自的生活动线互不相扰。
德商锦江天玺女王玄关实景图
同样,贵阳·铁建城在其约240平米户型也采用了女王玄关,与德商项目同理。

贵阳·铁建城约240平米户型示意图

贵阳·铁建城女王玄关实景图
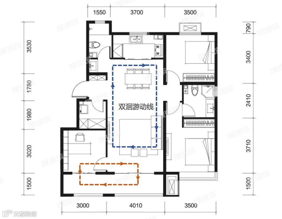
比如下面这款户型整体开间约4米,而且是客、餐、厨同宽。围绕家具构成多条洄游动线。

融创大河宸院建筑面积约121㎡户型
南侧那个“跑道式”阳台,进深约1.5米,开间约7米,连通客厅和南次卧,构成一条洄游动线。

融创大河宸院“跑道式”阳台样板间实景
下面这个户型,突破性地设计了LDK一体化客餐厅体系。打破了传统的客厅规划布局,看似是将客餐厨三个空间贯通了,事实上却是更“人性化”的设计,形成多条洄游动线。

招商蛇口某项目约150㎡户型示意图
重庆香港置地衿湖翠林的户型,设计了客厅-阳台,书房-客餐厅的双洄游动线,让一家人在客厅的连接更大化。每一个家庭成员在这个公共的空间中相互交流,融合在一起。

重庆香港置地衿湖翠林约190㎡户型示意图
04
访客动线
访客动线主要涉及玄关、客厅、餐厅、客卫、客房这几个空间,和家人动线重合度比较高。因此,设计一定既要注意保护家人隐私,又要让客人感觉舒服。
通过功能空间整合、科学合理规划各功能板块,以生活场景代入,实现动线的优化和动静的分离,提升生活品质。

招商蛇口某项目140平户型
结语:
户型动线应根据房屋的结构、空间布局进行安排和设计,一个好的户型动线对人们的生活起到更加便利的作用,从而提高生活效率,而差的户型动线可能会对生活产生一定的不利影响。
本资料声明:
1.本文为建筑设计技术分析,仅供欣赏学习。
2.本资料为要约邀请,不视为要约,所有政府、政策信息均来源于官方披露信息,具体以实物、政府主管部门批准文件及买卖双方签订的商品房买卖合同约定为准。如有变化恕不另行通知。
3.因编辑需要,文字和图片无必然联系,仅供读者参考;
—— 作品展示、直播、访谈、招聘 ——
搜建筑·矩阵平台
合作、宣传、投稿
联系微信:soujianzhu006
推荐一个
专业的地产+建筑平台
每天都有新内容
扫描二维码关注

微信公众号“搜建筑”(ID:sjz9999)





