▲ 更多精品,关注“搜建筑”
元,开端,香港置地的D顶配产品;
庐,文人雅士对居所的雅称。
元庐,是香港置地对高知林立的光谷的致敬,
以超前多元的无界社区,谱绘焕新光谷生活界面的姿态。
01 “慢工出细活”
1889年,香港置地正式成立。
这家元老级的房企,迄今已有133年的历史,坚守与不断创新,这家百年房企走过133年的内在动力。
百年来,香港置地历经了大大小小的经济周期,别的房企在寻找城市核心,香港置地在打造城市核心。与其他开发企业相比,香港置地一直坚持着“非核心不投资”的拿地原则,不以量取胜,把重点放在“少”和“精”上。
香港置地所打造的项目,基本上都是处于城市核心的“招牌名片”。几十年如一日的深度经营,坚持品质,精雕细琢每一个项目,让“高端”和“品质”成为香港置地在人们心中的代名词。
◎ 香港置地项目版图
香港置地对待每一个城市一样,每进入一个区域,都必定为这片土地呈现封面级作品。承构建筑相伴香港置地十多年来,始终为其提供顶尖的设计支持,并共同打造了多个“城市封面”——约克郡、元舍、上景臺等项目,以及即将动工的成都青羊董家坝项目,都是承构建筑与香港置地合作之下打造的业界公认的区域优质大盘。
而元庐,则是双方继元舍之后在武汉携手打造的又一人居标杆。
◎ 意向鸟瞰效果图
02 “光谷封面”
承构建筑延续香港置地一贯的“打造城市封面”的目标,以营造“多元邻里场景”的定制化未来人居为整体规划理念,尊重和弘扬在地文化,坚持和践行长期作品革新,追求极致的产品品质;从不同人群需求角度,诠释中高端豪宅生活的水准,致力于将元庐打造成武汉光谷封面级住区城市形象。
元庐的立面设计灵感来自Foster+Partners执掌设计的伦敦超高豪宅项目 PRINCIPAL TOWER。无论是主起居空间的极高窗地比以及极低窗框比的开窗设计,还是为转角定制的弧形玻璃飘窗,都从室内层面为住户带来更优质的居住体验;不仅如此,设计师为提高外墙的耐久度及提升外观质感,不惜成本大量运用了浅香槟色铝板等昂贵材料,在为城市建立标志性形象的道路上更进一步。
◎ PRINCIPAL TOWER
◎ 香港置地·元庐意向效果图
本案延续香港置地对设计基因以及居住品质的不断追求精神,秉承创新、精品的设计理念对外立面进行打造。
以商业裙房为例,为了使立面品质达到最佳,我们为LOW-E中空玻璃采用了超白基片和SGP幕墙系统,并在除玻璃外的实墙部分采用了几乎全铝复合板材料,以保证最平整的效果和最少的接缝。这些措施在光谷片区史无前例。
◎ 示范区意向效果图
除了对R角和弧线部分的考究外,承构建筑在层间金属线条、入户门头以及商业裙房近人尺度的处理均为毫米级细节控制。
◎ 意向效果图
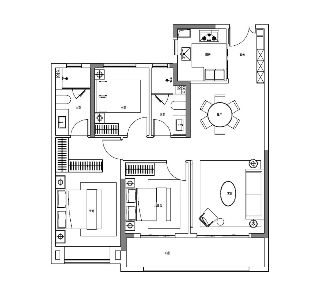
在户型方面,以最高不超过两梯四户的梯户比例保证居住品质,精巧的“离散式”核心筒设计让小户型拥有一梯两户的入户体验,大户型则拥有专梯入户的尊贵体验。
◎ 约115㎡户型图
宽厅设计与南向面宽为王的设计理念统领本案所有户型产品设计,引入IMAX级双开间景观阳台和端部弧形转角飘窗,厅房灵活可变,“多卧室”与“宽厅”形态可根据家庭结构进行自由切换。
◎ 约129㎡户型图
这些举动使本案顺应了生活建筑美学审美的时代趋势,也优化了建筑的品质细节,满足了住户对住所的人性化需求,回归居住的纯粹本质。
◎ 意向效果图
03 秉承初心,携手并进
至此,我们可以自信地说,元庐项目直接在美学体系上提升了武汉豪宅的标准,经得住时间的考验,也经得住市场的考量。无论从立面系统还是产品力的角度,都能从中看到我们与香港置地对城市、社区以及人的思考。我们期待元庐项目能成为光谷片区的“领头羊”,也期待它能成为武汉的豪宅新名片。
◎ 意向效果图
承构建筑也将继续秉承着“守正出奇,返朴存真”的设计初心,与香港置地一起,携手打造更出色的作品,为城市创造更好的居住空间。
设计总负责
丨设计指导丨
柴 晟
承构建筑董事长
首席设计师
丨设计主创丨
杨 新
承构建筑
高级设计总监
项目负责人
何运祥
承构建筑
合伙人/设计总监
刘 诚
承构建筑
资深主管建筑师
项目档案
项目名称丨武汉香港置地·元庐
项目位置丨武汉市江夏区高科园路武汉光谷(国际)外国语学校东南侧约180米
项目功能丨住宅、商业
建设体量丨20.43万㎡
业主单位丨武汉怡置星辉房地产开发有限公司
建筑设计丨承构建筑
设计总负责丨柴晟
设计主创丨杨新、何运祥、刘诚
设计团队丨邓卿、符丰靖、朱圣伦、黄俊元、郭华彬、欧阳鹏、周东辉、苏颖、王知青、兰昌威、宋嘉和
施工图设计丨成都基准方中建筑设计股份有限公司
景观设计丨上海朗道景观规划设计有限公司
室内设计丨上海牧笛室内设计工程有限公司
幕墙设计丨上海安岩设计咨询有限公司
撰文排版丨承构品牌部
▼ 更多精品·点击关注
本资料声明:
1.本文为建筑设计技术分析,仅供欣赏学习。
2.本资料为要约邀请,不视为要约,所有政府、政策信息均来源于官方披露信息,具体以实物、政府主管部门批准文件及买卖双方签订的商品房买卖合同约定为准。如有变化恕不另行通知。
3.因编辑需要,文字和图片无必然联系,仅供读者参考;
搜建筑·矩阵平台
作品展示、招聘发布、特色建材
合作、宣传、投稿
联系微信:soujianzhu006
推荐一个
专业的地产+建筑平台
每天都有新内容
扫描二维码关注

微信公众号“搜建筑”(ID:sjz9999)
本资料声明:
1.本文为建筑设计技术分析,仅供欣赏学习。
2.本资料为要约邀请,不视为要约,所有政府、政策信息均来源于官方披露信息,具体以实物、政府主管部门批准文件及买卖双方签订的商品房买卖合同约定为准。如有变化恕不另行通知。
3.因编辑需要,文字和图片无必然联系,仅供读者参考;
搜建筑·矩阵平台
作品展示、招聘发布、特色建材
合作、宣传、投稿
联系微信:soujianzhu006
推荐一个
专业的地产+建筑平台
每天都有新内容
扫描二维码关注

微信公众号“搜建筑”(ID:sjz9999)


