南通圆融嘉悦汇
Grand Joy Plaza
中国,南通
Nantong, China
“最好的建筑是这样的,我们深处在其中,却不知道自然在那里终了,艺术在那里开始。”
——林语堂
社区型商业综合体
是MINI MALL也是MINI PARK
_
项目地处南通市北高新区,长泰路与永兴大道交叉路口,紧邻在建地铁一号线永兴大道站。路网覆盖完善,地块位置非常优越,属于规划的核心地段。
目前地块周边以住宅地块为主,是典型的大型居住社区,已建的商业也是传统底商形式,分散且体验感差。在此情形下,社区型商业综合体的建成,可以满足周边社区居民大部分的生活需求。同时,社区居民的参与也会让商业综合体成为周边居民停留,交往,消费的主要生活场所。让建筑有机生长,并提供多样化的生活服务场景成为该建筑追求的使命。
项目总建筑面积约为3.8万平方米,在有限用地内,充分利用城市绿化带与屋顶花园的串联,将立体公园概念附加于商业功能中满足休闲购物、绿色生态、活力运动、亲子教育为一体,打造为周边社区的停留、休憩、交流的商业空间。
◎沿街效果实景
虚实结合 向上生长
_
对于商业mall最重要的一件事就是将人流从一层引导到顶层,本案以室内室外双流线引流。室外通过绿色的大台阶将人流引入每一层的休憩平台,直至屋顶花园。室内通过一组扶梯,两组直梯将人流带入。北侧有两组直梯作为货梯和厨余电梯。
立面上向上延伸的坡道和两个方盒子为实体,中间内退的玻璃为虚体,构成虚实结合,进退有致的主立面风格。形象入口倾斜的玻璃,与两片斜斜向上的墙体,形成强烈对比。
◎概念方案
无论是形象入口的倾斜向上的墙体,还是引人向上的坡道,立面上竖向排布的石材和玻璃杆件,都给人一种强烈的向上生长的力量。
功能串联 注入活力
_
项目想要打造一个向上生长的绿色社区商业,将人流从地面引入商场的各个楼层,再将人流从各个楼层引入到屋顶花园。将社区商业注入城市立体公园的公共功能。
◎Green Ramp 概念及模型
◎研究模型
通过绿色的大台阶进入商场各层,每层入口处都有一个灰色的室外空间,可以做为外摆休憩和儿童活动场所。
绿色共生 多元空间
_
全力打造的空中绿色花园,成为周边社区的停留、休憩、交流的空间。绿色主题跳跃穿插在商业空间中,由绿色通道串联,以空中花园为最终节点,形成消费者与绿色恰到好处的互动,增加逗留时间。
◎Green Garden & Green Sport 概念图
◎概念效果图
地面景观以运动为主题,融入绿色元素,打造购物休闲、绿色生态、活力运动、亲子教育为一体社区型商业,吸引周边居住区的家庭和热爱运动崇尚自然的新锐人群。
森林里的阳光 木色与天窗
_
将绿色的理念由立面引入室内设计中,中庭天窗的阳光有如洒进森林的斑驳光影,木色的吊顶装饰线条和立柱,好似森林里此起彼伏的树干。
森林里的阳光是变幻的,有小中庭里四散而下的大片阳光,也有大中庭里活泼跳跃的小天窗下,跳跃的光束。落在木色线条上的各色形状各异的光影,就想穿过森林的阳光。
技术图纸
_
◎总平面图
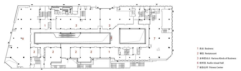
◎一层平面图
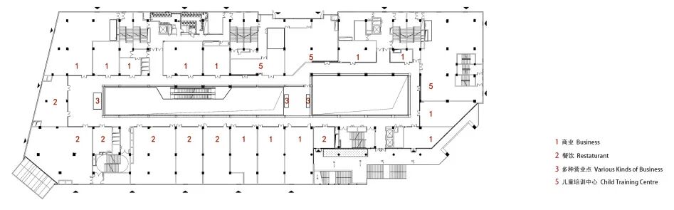
◎二层平面图
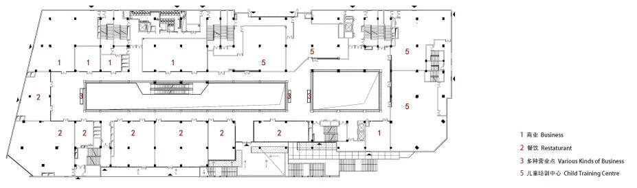
◎三层平面图
◎四层平面图
◎五层平面图
◎剖面图
工程档案
项目名称 | 南通圆融嘉悦汇
项目位置 | 江苏省南通市北高新区长泰路永兴大道口
业主单位 | 苏州圆融发展集团有限公司
业主团队 | 邢荣鹏 华兆芳 刘晓晨 刘伟 李艳红 沈琦忱 程传友 孙运龙 范靓凌 周玉涛 张锐
设计单位 | 上海日清建筑设计有限公司
设计总负责 | 熊星 吴一超
设计团队 | 贾晓琳 王绍光 江涛
施工图设计 | 南通市建筑设计研究院有限公司
幕墙设计 | 上海迪蒙幕墙工程技术有限公司
室内设计 | 中衡设计
景观设计 | 上海飞扬环境艺术设计有限公司
建筑面积 | 38000㎡
竣工时间 | 2021年12月
专业摄影 | 行知摄影
本资料声明:
1.本文为建筑设计技术分析,仅供欣赏学习。
2.本资料为要约邀请,不视为要约,所有政府、政策信息均来源于官方披露信息,具体以实物、政府主管部门批准文件及买卖双方签订的商品房买卖合同约定为准。如有变化恕不另行通知。
3.因编辑需要,文字和图片无必然联系,仅供读者参考;
搜建筑·矩阵平台
作品展示、招聘发布、特色建材
合作、宣传、投稿
联系微信:soujianzhu006
推荐一个
专业的地产+建筑平台
每天都有新内容
扫描二维码关注

微信公众号“搜建筑”(ID:sjz9999)


