
疫情期间,我们经历了和“家”最长的一段共处,“家”的问题也最直观的暴露出来。不少家庭发现,房子挺大,装修挺好,却仍不好住。不佳的居住环境甚至会造成家庭矛盾。疫情后,“如何改善居住环境,打造理想的家”成为了重要生活议题。
那么……“理想的家”是什么样的?什么房子才能实现改善需求?
带着疑问,我们在北京、上海、广州、成都、东莞、温州等城市,对16批客户进行深访,并完成近1000份全国范围的量访。

我们从生活模式入手,理解新生代的生活场景。
80、90后已逐渐成为改善类购房主力军,在家庭的圆满、物质生活的富足之后,他们开始追求精神世界的美好。相信生活需要仪式和体验,需要独立和自我,不应只是眼前的油盐酱醋。

家庭的起始-两夫妻形成了家庭,夫妇是家的核心。需要互相支持爱护,但也需要留给自己的时间,才能形成稳定的家庭基石。
家庭的成长-家庭有了孩子,实现了家的延续,父母需要承担抚养也需要给予陪伴,孩子们可以共同玩耍也能自主独立,是健康成长的关键。
家庭的支持-老人承担帮助小家成长的角色,但他们也追求丰富多彩的晚年生活,理应得到更多重视和关注。


生活的很大一部分,承载于“家”的空间中。共享空间如何安排,家庭成员如何居住、空间的功能性和体验性如何取舍,都密切影响着生活的状态。
我们通过入户访谈,深刻洞察新生代客户的底层需求

其中爸爸关注的空间尺度和仪式感,妈妈关注的厨房、卫浴等功能的便利性和体验性,孩子和老人关注的自主空间,是最具代表性的客户痛点。

现有四房改善户型无法解决以上客户痛点,家庭只能在各自的需求中进行取舍
动线不合理:老人房远离卫生间,家务为单向动线
功能缺失:玄关无展示、老人无阳台、主卧无书房
尺度不足:客厅尺度小,厨房视野局限
品质不足:次卧尺寸不同,卫浴衣帽配置不足

为何现有户型与需求会产生如此偏差,汇总调研结果,我们发现关键在于没有响应两大兼容需求。
1.空间界线兼容:办公、儿童、家政、阳台功能需要既独立又共享,
2.空间体验兼容:卫浴、收纳、餐厨、入户既要保证功能又要营造格调。
而卧寝作为保有自我的领地,对于独立、共享、功能、格调均有较高诉求。
只有解决了生活的兼容需求,才能实现平衡的家庭生活
过好生活,难以取舍,只能尽力兼容。

东西厢房各自独立,院子围合在其中,成为家庭中心,家人在游廊和檐下灰空间交往活动。
这种共享又独立的空间模式,一直是中国人理想家园的映射,更精准地匹配了新生代“空间兼容”的诉求

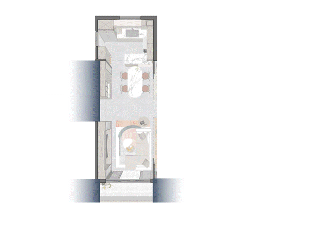
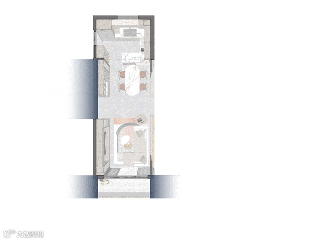
最具代表的135㎡初改善户型,首先落位了3T空间系统。


建立玄关对景并纳入公区,增加容纳多元活动的X空间,阳台延伸为带状三面宽
玄关和X空间融入公区,把零散空间整合,形成两倍的公区容量,带状阳台打开边界,塑造三倍的公区视野。所有功能都相互开敞,使公区空间流动起来。

将相同套内面积的传统四房户型与创新户型相对比。
传统户型公区各空间独立,连通性差,多为尽端式动线,空间效率低。
创新户型通过将零散空间整合打通,形成环绕整各公区的环形动线,提升效率的同时节约了大量的套内面积。

动线环绕岛台、开放书房、X空间、仪式玄关和客餐厅。空间由固定变为流动,家庭活动变得轻松高效,有更多时间和空间可以与家人共处。

传统户型公区由于空间独立,功能分散导致空间联动较少,小面宽客厅、阳台也使公区视野受限。
创新户型通过尽量将更多功能开敞融合,所有功能区视野完全无阻隔,形成家庭交互的全新生活场景,且公区尺度增加2倍,视野增加3倍。

开放厨房、家政柜、可开合书房,所有空间都有180°视野,做饭、洗衣、加班都能和家人产生交流互动。视线纵感和视野加强,带来超配感受。


儿童房借用客卫功能、老人房借用阳台和0.5卫、主卧借用0.5书房和衣帽间
每个卧室都通过向相邻空间借一步的动作,增加功能和尺度,所有家庭成员都可获得卧+卫+附属功能的套房。



传统户型老人房仅卧室功能,起夜难、无休闲空间,居住品质较差。
创新户型通过利用0.5空间,配置马桶和洗手池,解决起夜问题,联通三面宽阳台,给予独立休闲区,提升生活幸福感。

老人房借用带状阳台,形成和卧室面宽1:1尺度的休闲空间,可以满足老人种菜养花的需求,独处休闲时光让生活幸福加倍。


套房与公区交界处,设置0.5可变功能,打造可开可合的空间
收纳与空间分隔相结合,200厚的墙体转变成为0.2收纳体系
0.5可开可合的空间,容纳了更多的功能,双向空间兼容,更延伸了公区和卧室的尺度,打造出超想象的厅+房体验。收纳与空间分隔相结合,减少收纳对户内面积的占用,且可实现就近收纳,高效便捷。


男主人有独立书房、女主人有衣帽间。保有夫妻独立空间的同时,空间可开可合,双向融入客厅、主卧。在有限面积内大大增强尺度体验。


除了135㎡初改善户型,我们也进一步研究了185㎡终极改善客群。如果说135㎡户型代表了典型的初改善客户,空间设计追求极致平衡。那么185㎡的家庭,对于生活兼容是有显著自我特征的,户型设计处理的手法也是有差异的。敬请期待“合院空间系统”下篇,我们将详细解析185㎡户型的设计思路。
客户深访及调研:保利投资顾问有限公司
产品创新及设计:上海柏涛建筑设计有限公司
* 版权声明:本文为保利发展的研究成果,版权归保利发展所有,访问者可用于个人学习、研究,以及其他非商业性或非盈利性用途。如需转载必须经得POLY技术汇同意,对于未经得POLY技术汇同意转载全部/部分研究内容者,保利发展将保留追究法律责任的权利。
本资料声明:
1.本文为建筑设计技术分析,仅供欣赏学习。
2.本资料为要约邀请,不视为要约,所有政府、政策信息均来源于官方披露信息,具体以实物、政府主管部门批准文件及买卖双方签订的商品房买卖合同约定为准。如有变化恕不另行通知。
3.因编辑需要,文字和图片无必然联系,仅供读者参考;
搜建筑·矩阵平台
作品展示、招聘发布、特色建材
合作、宣传、投稿
联系微信:soujianzhu006
推荐一个
专业的地产+建筑平台
每天都有新内容
扫描二维码关注

微信公众号“搜建筑”(ID:sjz9999)










