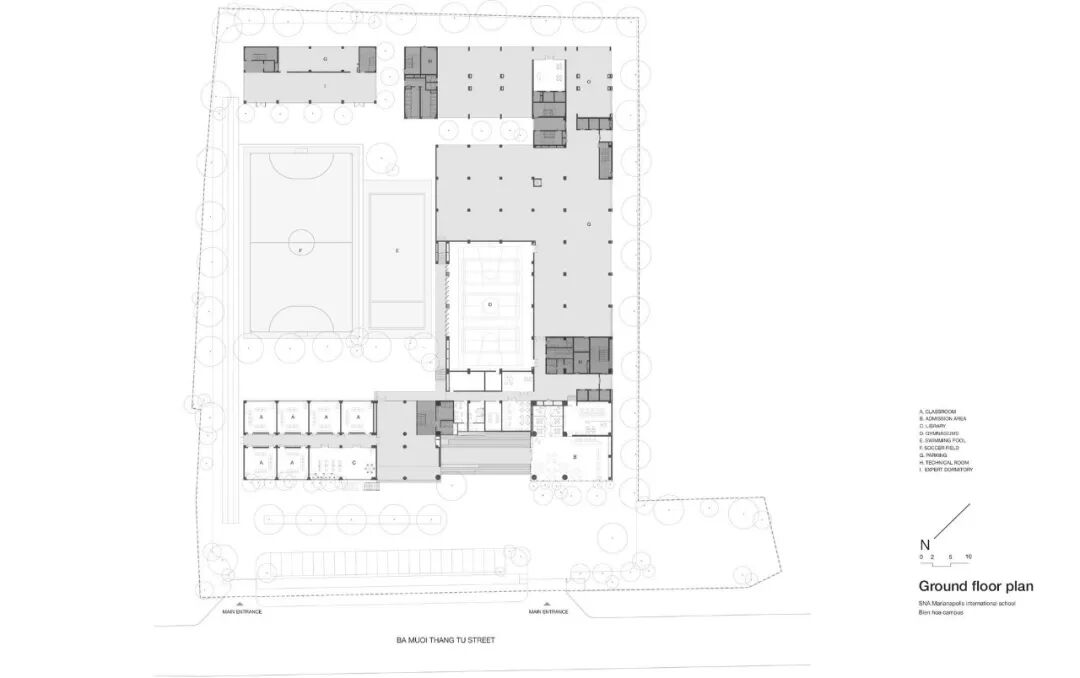
位于边和市中心的14800平方米的地块上,有一定的规划法,后退限制,以及建筑高度和密度。该设计可容纳1800名学生,充分满足了学习空间和其他活动的各种需求,如多功能空间、800座位的大厅、食堂、图书馆、宿舍、外国专家区等。
Located on a 14800 sqm plot of land in the heart of Bien Hoa city, with certain planning laws, setback limitations, as well as building height and density. The design, with a student capacity of 1,800, fully meets the various needs for learning spaces and other activities, such as multipurpose space, an 800-seat hall, canteen, library, dormitory, foreign expert area, etc.
建筑中的运动——我们从建筑的模块设计开始,这些模块与教室的最佳标准空间相连。我们计算了教室的总数,然后把它们一层一层地叠起来。它创造了一个封闭的四边组,提供了进入内部花园的视野,减少了周围建筑的影响。然后我们拆除了一部分,为运动场和游泳池腾出空间。将宽敞的大厅和多功能厅放置在合适的地方,便于进入。
Movement in architecture - We began by designing the building's modules, which were attached to the optimal standard space of the classrooms. We calculated the total number of classrooms, then layered them on top of one another. It creates a closed group of four sides that offer a view into the inner garden, reducing the impact of surrounding buildings. Then we removed a part to make room for the sports field and swimming pool. Place the vast hall and multifunctional rooms in a suitable place for easy access.
区块从低到高的移动创造了一个环绕内部区域的外壳,并从那里出现了绿色空间。这些区域需要学生方便地接触和亲近自然(阳光、凉风、湿气、阵雨......)。活动是创造环境的一个元素,并增强了所有地点和高度的学生的外部体验。
The movement of blocks from low to high creates a shell that surrounds the inner areas, and from there, green space emerges. These areas are required for students to have easy access to and be close to nature (sunny, cool breeze, moisture, showers...). Activity is an element that creates circumstances and enhances the outside experience for students in all locations and heights.
模块的创建优化了材料,加快了施工进程。外墙由2.5毫米的粉末涂层铁板制成,这些铁板被分成5个模块,经过计算,在工厂里建造,然后在现场竖立起来。为了空气流通和遮阳,外墙与内墙分离,作为技术系统的缓冲,其中包括空调、排水和工程。
The creation of modules optimizes the material and speeds up the construction process. The facade is made of 2.5mm powder-coated iron plates that are separated into 5 modules, calculated, and built in the factory before being erected on-site. For air circulation and sunshade, the facade is separated from the inner wall and acts as a buffer for the technical system, which includes air conditioning, drainage, and engineering.
大堂楼梯的跨度为24米,为学生创造了一个大的社交空间,家长也可以方便地接孩子。从竞技场的楼梯作为一个开放的连接到图书馆和剧院前面的大操场,允许整个空间相互交流,为学校建立必要的沟通和连接。
The lobby staircase's 24m spans create a large area beneath for students to socialize and parents to conveniently pick up their children. The stairs from the arena serve as an open link to the large playground in front of the library and theater, allowing the entire space to interact with one another, establishing the required communication and connection for the school.
SNA MARIANAPOLIS国际学校的BIEN HOA校区是由运动塑造和定义的。+互动水平提高。+创造一个舒缓的、支持性的环境来提高教与学。+鼓励对空间的好奇心,使其更容易靠近,花更多的时间在大自然中。这一切都归结为创造一个充满活力、相互联系和人性化的教学氛围。
The BIEN HOA CAMPUS of SNA MARIANAPOLIS INTERNATIONAL SCHOOL is shaped and defined by movement.+ The level of interaction has improved.+ Create a soothing, supportive environment that improves teaching and learning.+ Encourage curiosity in space, make it more accessible, and spend more time in nature.It all boils down to creating a dynamic, connected, and humane teaching atmosphere.
本资料声明:
1.本文为建筑设计技术分析,仅供欣赏学习。
2.本资料为要约邀请,不视为要约,所有政府、政策信息均来源于官方披露信息,具体以实物、政府主管部门批准文件及买卖双方签订的商品房买卖合同约定为准。如有变化恕不另行通知。
3.因编辑需要,文字和图片无必然联系,仅供读者参考;
合作、宣传、投稿
联系微信:soujianzhu006

推荐一个
的地产+建筑平台
每天都有新内容
扫描二维码关注

微信公众号“搜建筑”(ID:sjz9999)