▲ 更多精品,关注“搜建筑”
拼颜值、重体验,是当下网红售楼处的正确打开方式,去销售化示范区在当下越来越常见,通过模拟各种美好生活场景,打造沉浸式体验空间,让人们提前感受未来的生活场景。
售楼处的颜值越来越高,功能越来越多样化,这些创新,其实背后都是一个逻辑,所见即所得,把项目的优质配套和卖点,提前兑现,在客户越来越观望,越来越理性的市场下,销售力更强,也不会造成浪费,售楼处除了作为固定的销售场所,还有哪些新玩法?
01
立面设计原则
售楼处景点化
对于售楼处立面设计而言,应当进一步丰富建筑造型的相关设计理念,提高整个设计的精细度。近年来,随着房地产黄金时代结束,新的白银时代到来,控制建筑成本,协调好成本与各要素之间的关系无疑是设计中的重中之重。
① 新颖造型
成都奥园麓语ONE展示区更大化利用了公园景观资源,适当消隐建筑使其与公园融为一体,做到了建筑景观一体化,建筑边界模糊化。
建筑的两端起翘,仿佛白鹭展翅,整个建筑虚实交替,形态现代简约、舒展大气。不自觉让人悠然神往起“风定江澄境象间,水清波影倒云山。渔舟荡漾清光裹,白鹭惊飞杳霭间。”的闲适生活。


成都奥园麓语ONE实景图



旭辉新希望·锦官天樾
建筑立面抽象出武汉江水曲线的柔美,创造出富于流动感和韵律感的轮廓形体,建筑头部20°倾斜出挑,富有动感;
立面的弧形铝板,月牙形穿孔板及建筑尾部的3级退台造型,结合镜面水景,环境和阳光被温柔的反射进来,创造出一种连续、透明的感觉。


龙湖清能·天奕 来源:云翔设计
龙湖清能·天奕实景图 摄影:纯点建筑摄影
招商蛇口某项目售楼处形态取意水滴,通过售楼处和其他功能的叠加,创造更多新的场景,不仅仅是流量的导入,更关注和客户情感的融合:售楼处+图书馆,售楼处+咖啡馆,售楼处+艺术展览,售楼处+亲子乐园。从多种维度创造不同的场景,起到导客及与客群高频互动的作用。




招商蛇口某项目
杭州保利潮起云上府售楼处为方形与圆柱相互穿插咬合的玻璃体;圆柱体内部通过曲线楼梯螺旋上升,通达顶层;在螺旋中部则形成一个相对开敞的空间,与上空玻璃顶上下辉映。

② 有差异化形成记忆点
比如重庆华宇御临府售楼处的设计,在重庆龙兴悬崖之巅,远眺御临,极简设计,顺应地形。

重庆华宇御临府
建筑师选择将建筑置于高处的岩体之上,极具戏剧性的断崖式高差,巧妙的选择角度后,更大化利用景观资源,一望无际的视距,建筑犹如张开双翅的仙鹤傲立于仙岩之上。

重庆华宇御临府
浙江保利银杏小镇售楼处,通过“悬挑”、“悬浮”、“极简”的设计理念,使用空间桁架梁式的钢结构形式,利用超细斜撑结构促成超级悬挑结构。

浙江保利银杏小镇 来源:POLY技术汇

浙江保利银杏小镇 售楼处体块生成 来源:POLY技术汇
浙江保利银杏小镇 来源:POLY技术汇
金地峯汇系列某项目几个体块,组合而成,非常具有趣味性。



金地峯汇系列某项目立面设计
售楼处平面图 左右滑动查看更多


金地峯汇系列某项目
③ 售楼处立面材料
关于售楼处外立面材料,我们之前仔细分析过,感兴趣的可以去看一下:开发商应该“砸钱”的地方——越来越漂亮的售楼处!!
02
销售动线设计
打造独特空间体验
城市会客厅流线,周边设置城市公园、活力跑道、滑板公园等,能够激活片区的活力。
考虑车行到达流线,人行到达流线,结合场地错落的高差,实现全面展示效果。


布局示意图

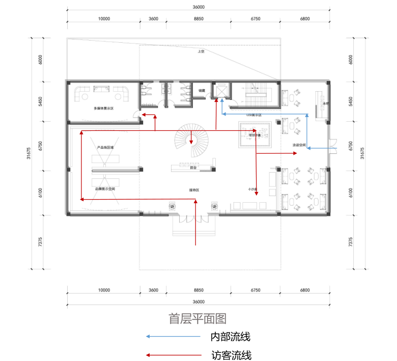
招商蛇口某项目动线示意图
招商蛇口某项目模块化平面空间尺度的研究,打造了流畅的访问动线。

招商蛇口某项目




下面这个招商蛇口某项目采用几个模块化平面空间,配以流畅的动线,带来更舒适的访问动线。

招商蛇口某项目


招商蛇口某项目动线示意图

招商蛇口某项目平面图
03
沉浸式主题与功能
兼顾“好玩”和“好用”
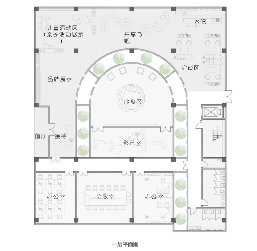
① 儿童游乐主题
由儿童需求激发的购买力,已经形成非常庞大的一个群体,用一座儿童乐园来呈现未来生活的蓝图,让客户对未来生活充满向往,以小见大。
比如中梁启宸不仅将示范区外部打造的如梦如幻,内部空间设计师更是打破既有城市空间的想象,捕捉世间最初的童趣,打造梦境空间。


中梁金科·启宸 实景图
北京中海望京府童趣探索中心设计团队运用场景化的设计手法,以充满童趣的“外星人”来到地球的故事,打造了一个充满科技魅力的儿童售楼中心。

北京中海望京府 图源:洛嘉儿童

北京中海望京府 图源:洛嘉儿童
旭辉银盛泰·博观熙岸童梦游乐体验馆,童梦游乐体验馆前期为博观熙岸项目售楼展示区,后期作为社区幼儿园使用,设计最初诉求在于既能实现销售与童梦的相结合,又会随着时间迁移实现空间不同时期功能的转变和延续,让“可持续性设计”更具现实意义。

旭辉银盛泰·博观熙岸
室内设计:MOD墨设建筑设计(上海)有限公司


旭辉银盛泰·博观熙岸
肇庆美的公园天下设计师将“游乐园”、“公园”的功能状态一并纳入,在开阔的部分营造一个以儿童游乐为主题的空间环境,而将商业使用的部分分区以小空间的状态出现。
设计:共生形态


肇庆美的公园天下
② 美食餐厅
把售楼部打造成美食空间,对客户同样有着强大的吸引力,享受美食的同时顺便看看房子,通过独特的用餐环境设计叠加软性销售语言,留住客户的脚步。
比如万科·樟宜翠湾在售楼空间内开设了CO-Life「花时」餐厅,融合了生活需求与人文自然,以“放慢脚步,花些时间触碰生活温度”为创办理念,打造了提供餐食、咖啡、家庭园艺、潮玩艺术的一站式灵感活力空间。

万科·樟宜翠湾
③ 图书馆
设计师将图书馆搬进售楼中心,可以变成社区配套的图书馆,融入人们更多的生活日常,满足人们根植于生活日常的更高精神诉求。
中投里城在漳州开发的某度假住宅项目,在营销中心里直接打造了一个大型阶梯图书馆,提供海量书籍。大人们忙碌的时候,孩子可以陷在书架上的圆形空间中专注阅读。

中投里城某项目 图源:则灵艺术
④ 美学馆,文艺空间
现在单一功能的售楼处已经逐渐过时了,很多售楼处都把名字改为了生活馆、体验馆、美学馆等等,通过复合功能的呈现,引导客户对未来社区生活的向往。
具有美学艺术功能的售楼处层出不穷,这种美不仅仅为大家带来视觉上的愉悦,也制造出了一种全新的体验,甚至可以上升到精神层面,给人以心灵的震撼和观念的颠覆。
比如唐山中海 · 九樾美学生活馆:


唐山中海 · 九樾美学生活馆 摄影:直译建筑
结语:
如今售楼处,各大房企做得非常丰富多彩,并且还在不断尝试不断迭代中。
究其原因,售楼处是一个承上启下的区域,能够提升项目高度及客户认知度从而促进销售的目的。
本资料声明:
1.本文为建筑设计技术分析,仅供欣赏学习。
2.本资料为要约邀请,不视为要约,所有政府、政策信息均来源于官方披露信息,具体以实物、政府主管部门批准文件及买卖双方签订的商品房买卖合同约定为准。如有变化恕不另行通知。
3.因编辑需要,文字和图片无必然联系,仅供读者参考;
搜建筑·矩阵平台
—— 作品展示、直播、访谈、招聘 ——
合作、宣传、投稿
联系微信:soujianzhu006
推荐一个
专业的地产+建筑平台
每天都有新内容
扫描二维码关注

微信公众号“搜建筑”(ID:sjz9999)
2022年·新产品方向
《 品牌地产 | 精品楼盘活动 》










