▲ 更多精品,关注“搜建筑”

新的学生宿舍馆和现有的两个宿舍一起形成了一个公共广场,是奥西耶克校园入口序列的一部分,这是一个发展中的学生城市。广泛的计划和明确的设计指南导致纵向体积尺寸可与那些著名的战舰波将金。
The new Student Residence Pavilion, together with the two existing dormitories, forms a public square that is a part of the entrance sequence to the Osijek campus, a developing student city. The extensive program and unambiguous design guidelines resulted in a longitudinal volume - dimensions comparable to those of the famous battleship Potemkin.


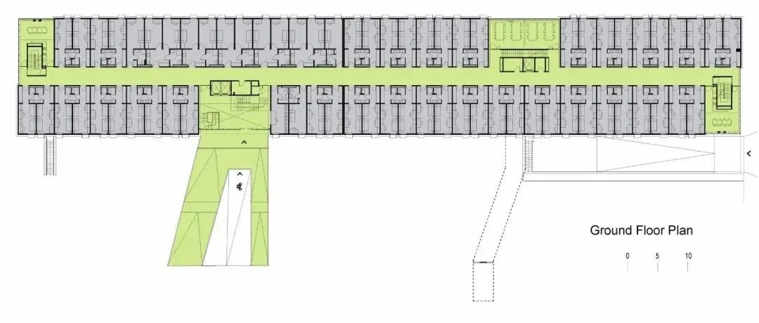
新展馆的巨大规模与周围建筑的规模和校园的景色相协调。提出的概念是基于将学生馆的区域划分为公共空间(公共)和独立房间(私人)的功能,将学生馆的主体分解为四个较小的空间,并通过人行桥将其与现有的宿舍连接起来。
The new pavilion's substantial size was harmonized with the scale of the surrounding buildings and the vistas from the campus. The proposed concept is based on the functional differentiation of the student pavilion's areas into communal spaces (public) and individual rooms (private) by breaking the corpus of the pavilion into four smaller ones and connecting it with the existing dormitories with a pedestrian bridge.


学生房间的体量之间形成的裂缝被宿舍的公共区域所填满——餐厅、厨房、客厅和教室,光线通过这些区域照射到走廊,将其分解成空间序列,为室内带来生机。
The cracks that formed between the volumes containing student rooms are filled with the communal areas of the dormitory – dining rooms, kitchens, living rooms, and classrooms, through which light reaches the hallway, breaking it into spatial sequences that bring life to the interior.


这些区域被包裹在一个带有集成太阳能电池的玻璃外壳中,可以看到校园的外部景观,同时从外部观察时突出内部动态。太阳能集热器以及雨水和灰水蓄水箱是设计的固有元素,它们默默地为展馆提供电能和水,增加了展馆的能源效率和可持续性。
These areas are encased in a glass envelope with integrated solar cells, which allows for outward views of the campus while simultaneously highlighting the internal dynamics when viewed from the outside. Solar collectors as well as a rain water and grey water retention tanks are inherent elements of the design and provide electrical energy and water to the pavilion unobtrusively, adding to the pavilion's energy-efficiency and sustainability.


新的学生馆提供了404个房间,796张床和600个自行车停车位。残疾学生得到了特别的考虑,他们可以接触到所有新的和现有建筑的内容。由于使用了环保材料和可再生能源,学生馆是一座节能建筑,能源评级为A+。
The new student pavilion provides 796 beds in 404 rooms and 600 bicycle parking spaces. Special consideration was given to students with disabilities, who have access to all of the new and existing buildings' contents. The student pavilion is an energy-efficient building with an energy rating of A+, thanks to the use of ecologically friendly materials and renewable energy sources.


立面由节能通风的纤维水泥镶板制成。太阳能发电厂已集成在建筑物的玻璃外墙内,可提供电力需求。整个建筑都安装了一个配水系统,用于收集雨水和灰水,经过过滤后用于冲厕和灌溉周围的绿地。
The facade is made of energy-efficient ventilated fiber-cement paneling. A solar power plant has been integrated inside of the building's glass facades, which provides the need for electricity. A water distribution system has been installed throughout the building to gather rainwater and greywater, which is filtered and used for toilet flushing and irrigation of surrounding green areas.


在现有停车场上方安装了额外的太阳能集热器,作为家庭热水制备能源系统的补充,提供了大约40%的家庭热水总需求。内置照明由现代节能灯泡和LED光源提供。学生馆的垃圾被分类在垃圾桶里,准备在垃圾压缩机中收集。
Additional solar collectors have been installed above the existing parking lot as a supplement to the energy system for domestic hot water preparation, providing around 40% of the overall needs for domestic hot water. Built-in lighting is provided by modern energy-efficient bulbs with LED light sources. Waste from the student pavilion is sorted in waste bins and prepared for collection in a waste compactor.












区位图

平面图




立面图


爆炸分析图

剖面图

住房主要问题

建筑师:NFO
地点:克罗地亚
面积:16965平方米
年份:2022
本资料声明:
1.本文为建筑设计技术分析,仅供欣赏学习。
2.本资料为要约邀请,不视为要约,所有政府、政策信息均来源于官方披露信息,具体以实物、政府主管部门批准文件及买卖双方签订的商品房买卖合同约定为准。如有变化恕不另行通知。
3.因编辑需要,文字和图片无必然联系,仅供读者参考;
搜建筑·矩阵平台
作品展示、招聘发布、更多相关
合作、宣传、投稿
联系微信:soujianzhu006
推荐一个
专业的地产+建筑平台
每天都有新内容
扫描二维码关注

微信公众号“搜建筑”(ID:sjz9999)


