/ 古典主义风格的新居住体验 /
区位规模/ 基地的正面回馈
LOCATION SCALE
项目位于天津市东丽区,地处京津发展要道,可达古文化街、鼓楼、陆家嘴金融中心等核心商圈。名仕系列人群向上的态势,国际化、精英感,以希望之光的形式加以诠释,光即希望,名仕即未来。
基地北邻北辰区小淀板块,东南侧为东丽华明的环内环外板块,西侧与市内六区的河北区接壤。周边主干道纵横交错,交通便利。京津塘+宁静+津蓟三条高速从板块内横穿而过。项目北侧即为天津地铁6号线,轨道交通十分便利。
名仕4.0 采用新古典主义风格,增加了哥特元素,形成了独特的公建化的立面形式。主体强调竖向线条,突出建筑修长高耸的体量感。顶部通过壁柱的高低变化强调塔冠。基座、门头部分精致而现代的细节打造,既保留名仕经典的拱形细节,同时加以一定程度的创新,形成4.0特有的细节标识。
⊙ 效果图
设计思路/ 光影流淌演绎浪漫情怀
DESIGN IDEAS
建筑师将古典与现代相结合,以序列古典的拱门造型演绎浪漫情怀,以现代简洁的玻璃幕墙重释典雅质感。虚实变化的建筑立面,轻盈的步道连廊,在光影的变换下营造出淡雅,静谧的院落氛围。将传统的元素及功能巧妙地结合于“光之塔”的艺术美学之中,力图打造出充满人文情怀的建筑展示空间。
比例尺度上沿用古典主义建筑的中轴对称、三段式手法,立面上序列整齐的壁柱,尊贵而典雅,每一处细节彰显着精致与匠心。大面玻璃幕墙与水面连接,建立了外景与室内之间的对话,营造舒适和谐的氛围。
建筑细节/ 光之塔一种向上的力量
ARCHITECTURAL DETAILS
融合当代美学精神,质感匹配高级材质,以雕琢细节和享受舒适为核心,献礼成功路上的新富阶层。建筑立面在段落比例上采用中轴对称形式,两个黄金分割三角形,两顶点相交限定三个体块角点。虚实的对比穿插,突出中间光塔体量。
厚重的石材与纯净的玻璃之间用金属造型框衔接,形成层次分明的关系。厚重与轻盈的结合,虚与实的对比,体块之前的穿插,建筑纯净而又富有变化。
光塔内部,石材与坚韧的金属碰撞出空间尊贵典雅的气质。四角金属立柱向上延续扭转出内部造型,其伸展的张力给人传达出一种向上的力量,给人希望。进而体现光之塔的意义,升华了主题,体现建筑的人文共生的思想。
20米通高的“光塔”,体现尊贵华丽感,整齐韵律的壁柱,精致细节的打造彰显其独特气质,两侧对称且序列整齐的壁柱,营造出空间上的序列感,建筑体量上虚实结合的构成关系,庄重不压抑,典雅不浮华,营造了空间上的仪式感,走进光塔,给人一种亲切的归属感。
⊙ 光塔成长记
场所营造/ 共生关系下的无限可能
PLACE CONSTRUCTION
示范区利用北侧商业广场,打造休闲玩乐系统,是吸引地缘客户遛娃、散步的最佳场所,实现了售楼处品质调性及生活场景化的融合。景观围合与外围绿化屏蔽外界面,形成内部尊贵感。打造极致的横轴与尊享的短轴,营造最佳的场所感受。
归家体验一气呵成,开放互动的商业街区,场地边界营造视觉焦点与IP爆点。仪式尊贵的前场体验,浪漫格调的生活花园,创造出空间上韵律感,给人以引导情绪起伏的空间体验感受。
⊙ 归家流线
走进内场,随着步移景异内心渐渐趋于平静,可稍作休憩,抑或品茶会友,抑或对弈闲谈,也不失为一处惬意的业主邻里交流场所。
漫步在“光之连廊”,尽享光影之中勾勒出的一幅静谧画卷,衬托着主体建筑的高雅与尊贵。
⊙ 连廊照片©崔宏强
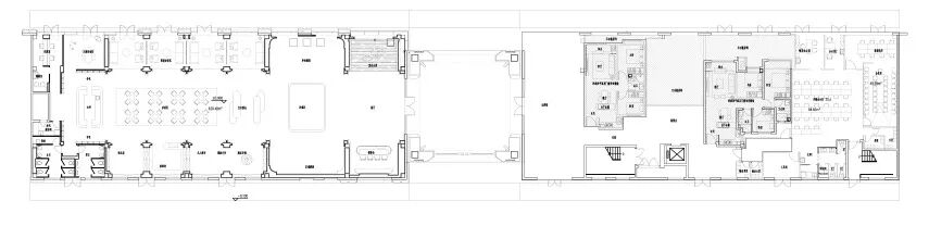
一层平面图
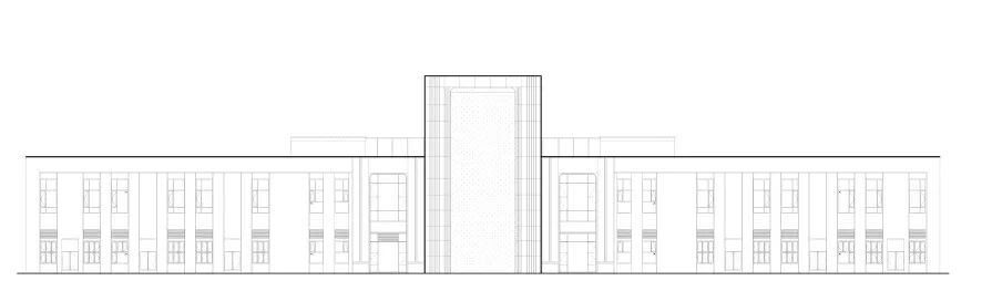
北立面图
南立面图
穹顶平面图
穹顶立面图
施工小记
设计师在现场驻场参看,保证施工细节的精细度,对出现问题及时跟踪解决,使建筑最终能完美的呈现。
施工中出现大面铝板不平整,调整分缝保证平整度,尺寸上进行了减小调整,最终完美呈现。铝板和石材交接位置处在现场进行了比对优化,原方案中石材与铝板交接处存在一定的锐角与直角关系,视觉上给人带来锋利感受,优化方案中采用弧度曲线优化角度关系,使空间柔和更加和谐。
⊙ 施工现场
项目名称:天津金地融信万悦城
项目地址:天津市东丽区
建成时间:2021年11月(示范区建成,大区在建)
项目规模:示范区8510㎡ 大区167920㎡
主要材料:石材 铝板 涂料
业主单位:金地集团 融信集团
建筑设计:水石设计
设计部门:建筑设计一部
景观设计:广州观己景观设计有限公司
照片摄影:三景影像
图文编排:水石品牌
版权所有©水石设计
本资料声明:
1.本文为建筑设计技术分析,仅供欣赏学习。
2.本资料为要约邀请,不视为要约,所有政府、政策信息均来源于官方披露信息,具体以实物、政府主管部门批准文件及买卖双方签订的商品房买卖合同约定为准。如有变化恕不另行通知。
3.因编辑需要,文字和图片无必然联系,仅供读者参考;
—— 作品展示、直播、访谈、招聘 ——
搜建筑·矩阵平台
合作、宣传、投稿
联系微信:soujianzhu006
推荐一个
专业的地产+建筑平台
每天都有新内容
扫描二维码关注

微信公众号“搜建筑”(ID:sjz9999)


