位于布鲁塞尔南部边缘的一座20世纪70年代废弃的大型办公大楼,现在被改造成乌克勒市充满活力的新市政厅。这座市政厅由archipelago设计,将为450名公务员提供工作空间,并通过开放一个郁郁葱葱的绿色公共花园将建筑与社区重新连接起来。
A large disused office building from the 1970s, located at the southern edge of Brussels, is now transformed into a vibrant new town hall for the municipality of Uccle. Designed by archipelago, this town hall will offer workspace for 450 public servants and reconnect the building to the neighborhood by opening up a lush green public garden.
乌克勒市于2014年从工业机械企业Fabricom手中收购了旧总部大楼,并开始了翻新竞争程序。archipelago赢得了比赛,并于2019年开始施工。三年后,我们自豪地提出了一个高度创新的项目,旨在对其社会和生态环境产生积极的影响。
The municipality of Uccle acquired the old headquarters from Fabricom, an industrial machines company, in 2014 and started a competition procedure for the renovation of the building. The competition was won by the archipelago and construction works started in 2019. Three years later we are proud to present a highly innovative project which aims for a positive impact on both its social and ecological environment.
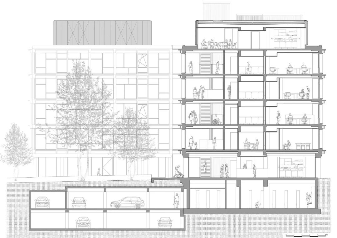
向城市开放。一个市政厅需要对社区有吸引力。我们的第一个干预措施是将建筑周围的私人绿化区重新定义为一个公共花园。我们将主入口从Gatti de Gamond街移到Stalle街,这样公共花园就成为主入口区的一部分。为了鼓励公务员和市民之间的互动,我们在大楼的入口处创建了一个大型的 "市民区",它与大楼的每一层以及市政厅的所有服务部门相连。
Open to the city. A town hall needs to be inviting for the community. Our first intervention was to redefine the private green area around the building as a public garden. We moved the main entrance from the Rue Gatti de Gamond to the Rue Stalle, so that the public garden becomes part of the main entrance zone. To encourage interaction between civil servants and citizens, we created a large ‘citizen area’ at the entrance of the building, which is connected to each floor of the building and to all the services of the town hall.
大厅、会议空间和屋顶的公共会议室都可以独立于市政厅的日常活动。灵活的空间。我们设计了模块化的工作空间,可以满足不断变化的行政部门不断发展的需求。为了进一步满足工作环境的需求,我们将大厅和通道改造成自发的互动和非正式会议的场所。
The lobby, meeting spaces, and the public conference rooms on the roof can each function independently from the daily activities in the town hall. Flexible spaces. We have designed modular workspaces that can meet the evolving needs of an ever-changing administration. To further support a dynamic work environment, we have transformed the halls and passageways into places for spontaneous interaction and informal meetings.
这些地方在视觉上与周围的公共花园相连,并获得充足的自然采光。工作空间的室内设计、家具甚至标识都是由archipelago整体设计的。一个清晰的流通方案确保游客和工作人员可以在一楼和公共区域互动,但保持不同的流动贯穿整个建筑。
These places are visually connected to the surrounding public garden and receive ample natural daylight. The interior design of the workspaces, as well as the furniture and even the signage, are designed as a whole by archipelago. A clear circulation scheme ensures that visitors and staff can interact on the ground floor and in public areas, but keeps the different flows separated throughout the building.
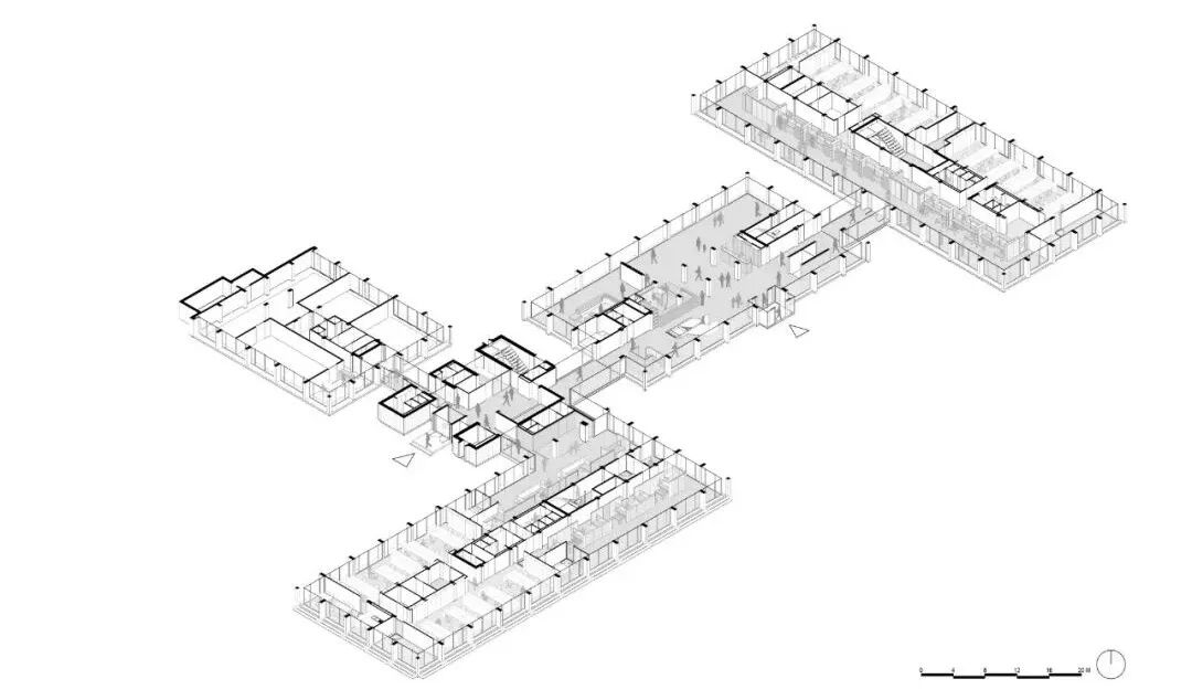
循环建筑。从设计过程的一开始,我们就把这个改造项目看成是社会向循环经济发展的更大变化的一部分。我们首先对现有的建筑和可以再利用的元素进行了广泛的研究。我们还仔细分析了外墙的能量性能,以优化混凝土的外部元素的再利用。
Circular building. From the start of the design process, we have looked at this renovation project as part of a larger change in society towards a circular economy. We first made an extensive study of the existing building and the elements that can be reused. We also carefully analyzed the energetic performance of the façade to optimally reuse the external elements in concrete.
干预是微妙的,同时创造了一个现代的建筑。建筑结构的严谨表达被保留下来。不同的窗户图案在楼层之间建立了一种联系,并提供了一种更轻松的立面解读。在供暖和制冷方面,我们与布鲁塞尔的公共配水商Vivaqua合作开发了一个试点项目,该项目使用RioTherma:从废水中提取的能源,最佳利用现有能源流和现场的特定当地条件。
The architectural interventions are subtle and respectful while creating a contemporary identity. The rigorous expression of the building’s structure is preserved. Different window patterns create a link between the floor levels and offer a lighter reading of the façade. For heating and cooling, we have developed with Vivaqua, the public distributor of water in Brussels, a pilot project that uses riothermia: energy derived from wastewater, optimally utilizing existing energy flows and the specific local conditions of the site.
本资料声明:
1.本文为建筑设计技术分析,仅供欣赏学习。
2.本资料为要约邀请,不视为要约,所有政府、政策信息均来源于官方披露信息,具体以实物、政府主管部门批准文件及买卖双方签订的商品房买卖合同约定为准。如有变化恕不另行通知。
3.因编辑需要,文字和图片无必然联系,仅供读者参考;
合作、宣传、投稿
联系微信:soujianzhu006

推荐专业
地产建筑平台
每天都有新内容
扫描二维码关注

微信公众号“搜建筑”(ID:sjz9999)