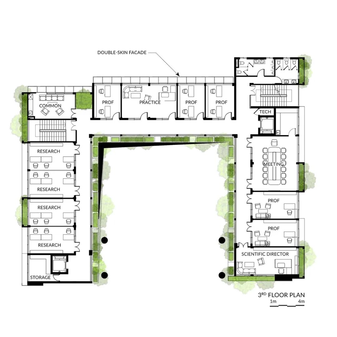
Renovated from the ground of Nguyen Van Huyen primary school, The Vietnam Institute for Advanced Study in Mathematics (VIASM) occupies an area of 2.127sqm, of which the construction area is 1800 sqm. The site is designed to house infrastructures for the National Program for the Development of Mathematics (2010-2030); with customised space to host international, cross-discipline exchanges.
The building is well-formed, coherent in its architectural language due to the application of asymmetrical patterns in all of its views, paying tribute to the mathematical symbols. The original U-shape is kept intact, yet transformed into a tighter block by creating a bridge connecting the top level. All functional areas are connected to the corridor which leads to an open inner courtyard, creating a harmonious flow of movement without making the building any less airy.
本资料声明:
1.本文为建筑设计技术分析,仅供欣赏学习。
2.本资料为要约邀请,不视为要约,所有政府、政策信息均来源于官方披露信息,具体以实物、政府主管部门批准文件及买卖双方签订的商品房买卖合同约定为准。如有变化恕不另行通知。
3.因编辑需要,文字和图片无必然联系,仅供读者参考;
搜建筑·矩阵平台
作品展示、招聘发布、更多相关
合作、宣传、投稿
联系微信:soujianzhu006
推荐一个
的地产+建筑平台
每天都有新内容
扫描二维码关注

微信公众号“搜建筑”(ID:sjz9999)


