我们的概念是基于三座雕塑般坚固的独立塔楼,在多瑙河上形成一个重要的高层建筑群。
Our concept is based on three sculpturally strong individual towers forming a significant highrise ensemble on the Danube Canal.
交错的层次创造了部分与周围建筑物相关的凸起和凹陷。这种雕塑般的配方在各个方面创造了不同的外部和内部空间,以及在城市中独特而独特的存在。
The staggered levels create projections and recesses that are partly related to the surrounding buildings. This sculptural formulation creates differentiated exterior and interior spaces on all sides as well as a distinct and unique presence in the city.
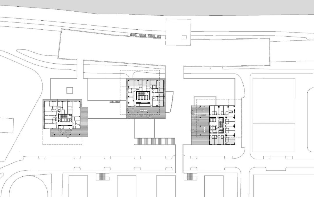
单个建筑由一个2层的基础结构连接,其中包含幼儿园、商店、餐厅和办公室。差异化的室外空间,如中心广场、花园和独立建筑不同层次的社区露台,为不同的休闲活动提供了空间,并促进居民之间的接触和交流。
The individual buildings are connected by a 2 story base structure that contains a kindergarten, stores, restaurant, and offices. Differentiated outdoor spaces like the central square, the gardens, and the community terraces on the different levels of the individual buildings offer space for diverse leisure activities and promote encounters and communication among residents.
创造一个强大的身份,升级和振兴环境,并提供新的公共空间是我们设计的前提。
Creating a strong Identity, upgrading and revitalizing the surroundings, and providing new public spaces were the premises of our design.
建筑师:Henke Schreieck Architects
本资料声明:
1.本文为建筑设计技术分析,仅供欣赏学习。
2.本资料为要约邀请,不视为要约,所有政府、政策信息均来源于官方披露信息,具体以实物、政府主管部门批准文件及买卖双方签订的商品房买卖合同约定为准。如有变化恕不另行通知。
3.因编辑需要,文字和图片无必然联系,仅供读者参考;
合作、宣传、投稿
联系微信:soujianzhu006

推荐一个
专业的地产+建筑平台
每天都有新内容
扫描二维码关注

微信公众号“搜建筑”(ID:sjz9999)