地处黄浦滨江大规模城市更新计划的核心地带,北外滩来福士为上海虹口区带来了充满活力的文化与艺术氛围,也是一处极具现代感的旅游目的地。这座现代化的综合社区横跨四个街区,包含两座办公塔楼,两者通过高 6 层的商业中心相连,并且可以直通TOD交通枢纽。
At the center of a large-scale revitalization of the Huangpu River waterfront, Raffles City The Bund brings a vibrant destination for culture, art, technology, and tourism to Shanghai’s popular Hongkou District. This modern mixed-use community stretches across four city blocks, with two office towers united by a six-level retail center that connects to a multimodal transportation hub.
在双塔的51层各设有一个5000平方米的屋顶花园,绿意盎然,且拥有望向黄浦江、浦东及外滩天际线的壮丽视野。商业中心与公共花园也将经常举办各类表演及文化活动,吸引来自世界各地的游客到访。
Atop the retail center is an expansive public garden with lush green space and striking views of the Huangpu River and the Pudong and Bund skylines. The retail center and public gardens will host a wide range of performances and cultural events that attract visitors from around the world.
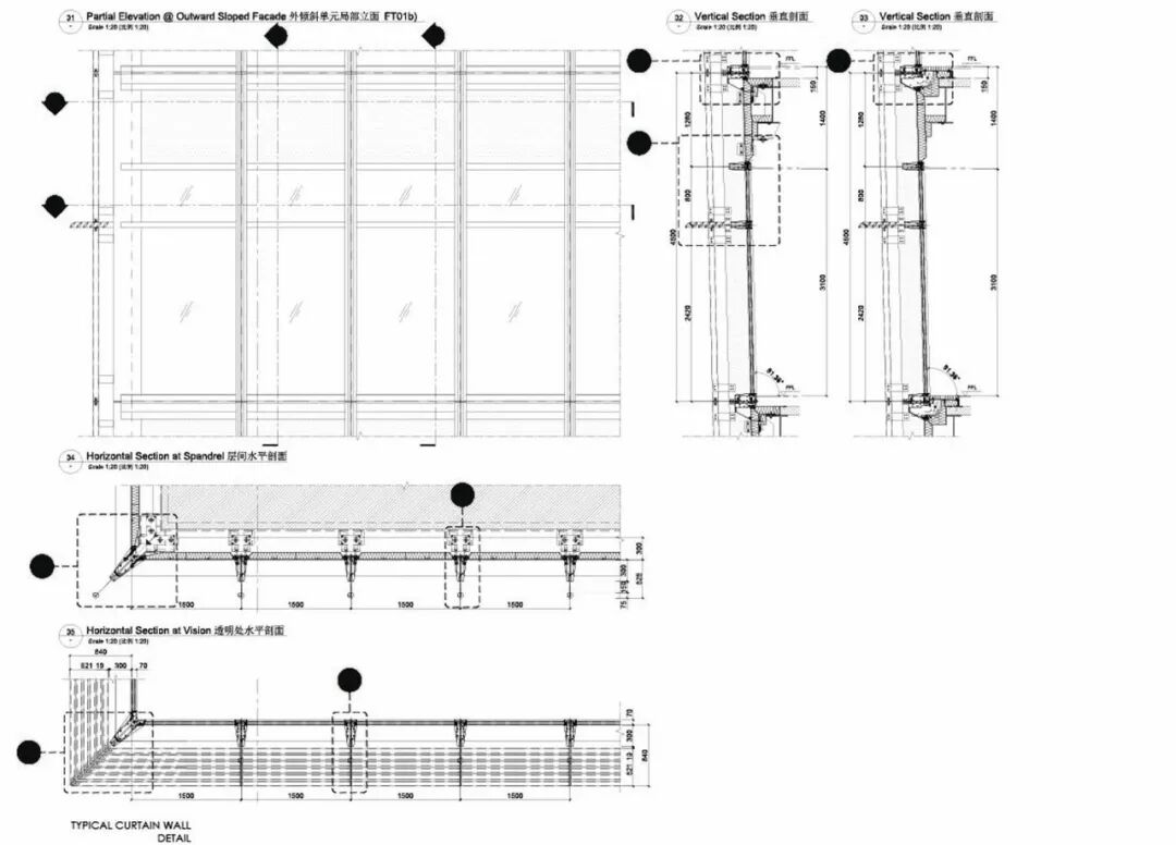
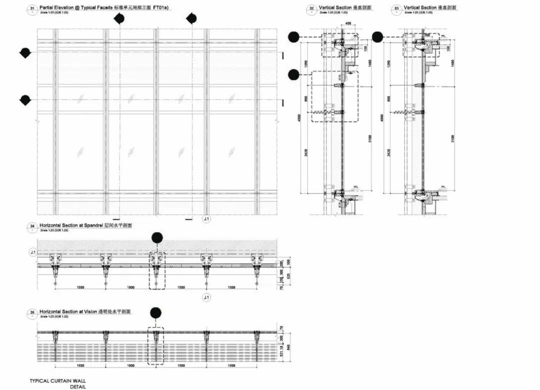
项目由标志性的双塔以及商业裙楼组成,总建筑面积约42万平方米,双塔高263米,为迄今为止上海已建成的很高双子塔。塔楼造型极具标志性,还能将外滩与浦东的优美风景尽收眼底。每座塔楼不仅拥有高档办公空间,还配套有屋顶花园、高级餐饮等一系列现代化设施。
A thriving destination by day or night. Two signature towers stretch fifty stories into the skyline — landmark silhouettes that offer panoramic views of the Bund and the Pudong vistas. Home to premium office space, each tower features rooftop gardens, fine dining, and a world of modern amenities.
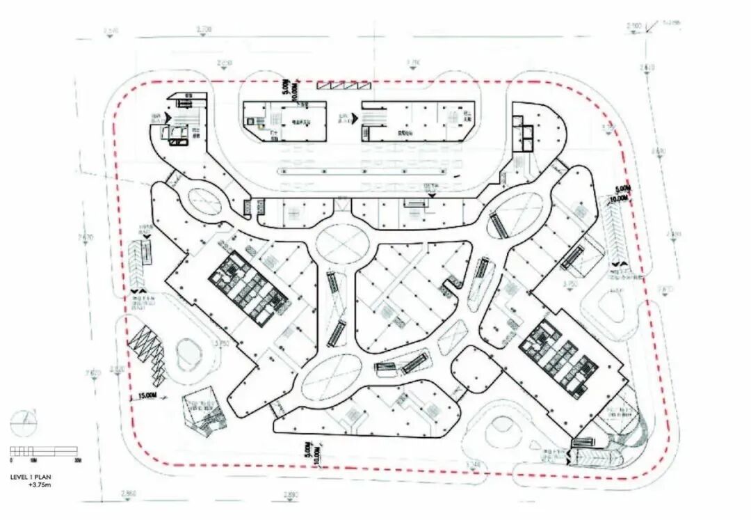
其商业裙房为沪上最大的商场之一,与拥有高效灵活的办公空间的双子塔共同构成功能完备的综合体包括世界级的购物中心、餐厅、溜冰场、电影院和IMAX影院;绿意盎然的公共屋顶花园汇入通达的交通流线,熙熙攘攘的购物胜地成为了周边社区和市民汇集的中心。停车场位于较低的三层,有1600个停车位。
The sweeping retail center below is the largest in the area, welcoming visitors through a light-filled atrium to world-class shopping, restaurants, an ice-skating rink, cinema, and IMAX theater. Parking is provided in a 1,600-space garage on the lower three levels.
四通八达的公共交通系统覆盖了地铁与巴士线路,并与两座塔楼无缝链接。商业中心里,洒满阳光的中庭将主要的地铁线路、公交车站与公共屋顶花园串联起来。高效的地下交通网络缓解了区域内停车紧张的问题,也为人们提供了多样化出行的可能。
Seamless connectivity to public transportation. Public transportation, extending in all directions, is easily accessible with seamless connections to the towers by rail and bus. A sun-filled atrium in the retail center unites a major subway and bus station with access to the public rooftop gardens.An efficient underground transportation network alleviates the shortage of regional parking resources and provides further access to the site via car.
▲ 东立面图
项目团队:佩里克拉克及合伙人建筑师事务所(Pelli Clarke & Partners)
高级设计主管:Cesar Pelli (FAIA, JIA, RIBA);Fred Clarke (FAIA, JIA, RIBA)
设计师团队:Benjamin Flaute, Tammy Chuang, Wenqing Zhang, Roya Seyedsadry, Jennifer Gallaher, Rustum Mehta, Alexander Smith
本资料声明:
1.本文为建筑设计技术分析,仅供欣赏学习。
2.本资料为要约邀请,不视为要约,所有政府、政策信息均来源于官方披露信息,具体以实物、政府主管部门批准文件及买卖双方签订的商品房买卖合同约定为准。如有变化恕不另行通知。
3.因编辑需要,文字和图片无必然联系,仅供读者参考;
合作、宣传、投稿
联系微信:soujianzhu006

推荐一个
专业的地产+建筑平台
每天都有新内容
扫描二维码关注

微信公众号“搜建筑”(ID:sjz9999)