▲ 更多精品,关注“搜建筑”
说明:以下答案为试做,并非标答,仅供参考
1、一注场地作图——对答案(点击我查看)
5、二注大设计——对答案(点击我查看)
二注大设计——对答案
2022年2月,继一注改革后,二注也改革,注册建筑师考试均只剩一门作图题!从2023年起执行新大纲,2022年也是旧大纲最后一年。
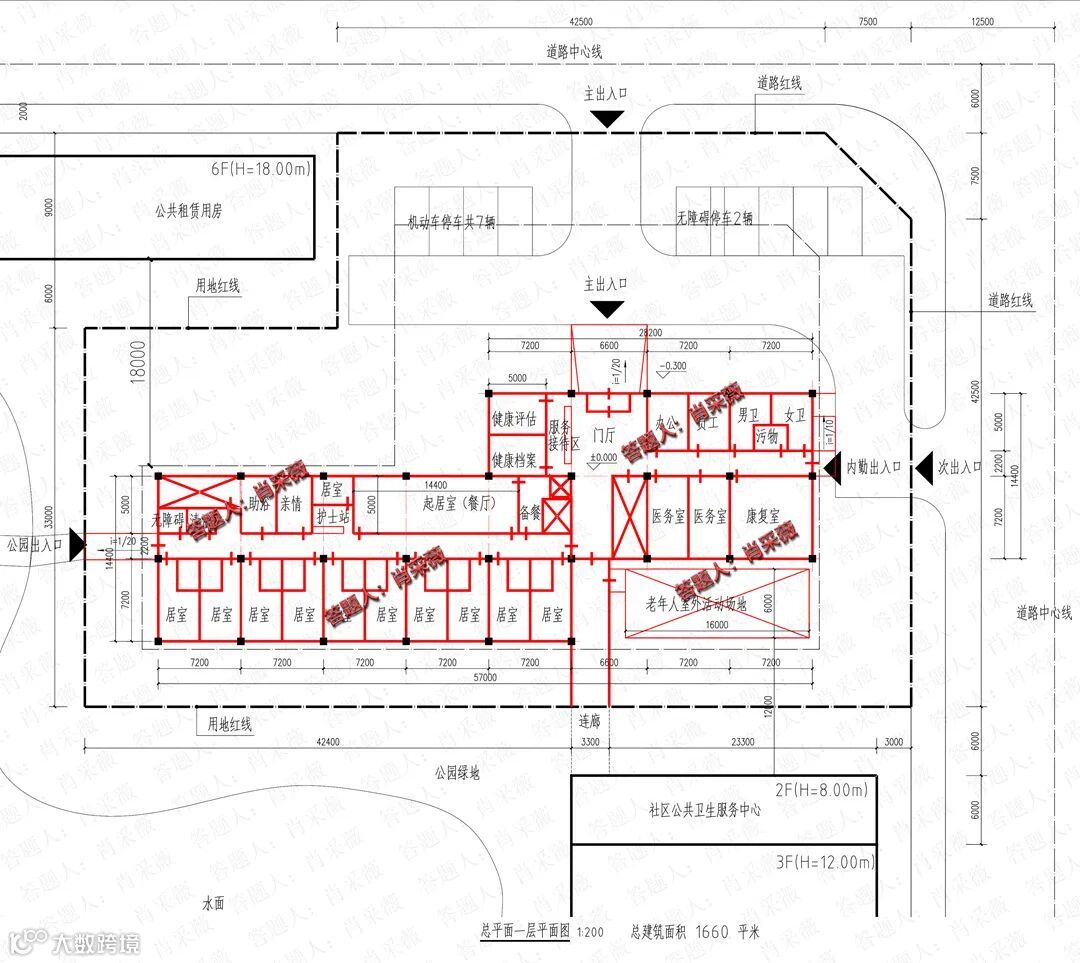
而今年的二注题目,似乎也是在为了改革做准备,题目难度有所增加,任务描述特别多,各种要求事无巨细,制图要求也更严格,比如需要标注主要房间的开间进深尺寸等。并且第一次出现了规范填空,感觉是想要将更多的内容融入仅剩的一门作图题中。
根据规范要求填空:老年人使用的建筑内走廊净宽不应小于(1.8)m,确有困难时不应小于(1.4)m;护理型床位居室的门净宽不应小于(1.1)m;老年人建筑楼梯踏步最小宽度(0.320)m,最大高度(0.130)m;平坡出入口地面坡度不应大于( 5 )%
填空题的答案,来源于老年人照料设施建筑设计标准(JGJ450-2018)第5.6.2条,第5.6.3条,第5.7.3条,以及民用建筑设计统一标注(GB50352-2019)第6.8.10条。
在平时工作中和以前的考试中,都没有出现过考这种具体的数值,大家都是需要用的时候,才会去查规范,不会提前背下来。这一次以填空题的形式来考核,打了大家一个措手不及,根据反馈完全做对的同学并不多。
根据这个趋势,以后的作图复习过程中,还需要随时留意和背诵各种规范的具体条文,无形之中又增加了复习备考的工作量。所以即使作图题的数量变成了一门,考试的整体难度可能也不会下降太多。
第一题:

第二题:

第三题:

注册考试交流
扫描二维码 加好友联系

学习更多注册考试内容
▼ 点击关注
最后向各位考友推荐
一注考试精品课程
点击下方图片可观看
搜建筑·矩阵平台
作品展示、招聘发布、特色建材
合作、宣传、投稿
联系微信:soujianzhu006
推荐一个
专业的地产+建筑平台
每天都有新内容
扫描二维码关注

微信公众号“搜建筑”(ID:sjz9999)



