中国高速城市化带来对学校的需求暴增。近十年来,新校园的建设席卷全国。随着一批校园的建成、使用,快速建造所带来的种种问题也逐渐暴露:严苛的设计规范和传统的模式下,呈现僵化的行列式布局和单调的空间形态;建造周期短,预算有限导致建筑缺乏品质感。
本项目遵循新型教育理念,强调启发与交流,引入开放链接型校园的概念,力求突破线性的、枯燥乏味的秩序化校园空间,在满足体制内基本功能的基础上,创造出多层次的开放链接型校园空间,激发学生创造力与求知欲,鼓励互动与交流。
同时,本项目对校园的文化性方面做了积极的探索。建筑师关注地域与传统文化,通过与空间类型、空间组织、层次、细节等相关的设计策略,来回应场地、气候及地域文化中特有的集体记忆,营造富有文化性、场所感的情景式校园。更通过精细化设计,保证高品质的建造。
项目概况:
基地面积:52755㎡
总建筑面积:46663㎡
容积率:0.68
建筑密度:22.85%
建筑限高:24 m
01
背景 / 策略
Background / Strategy
基地所处的沪宁新城地处无锡西北门户,位于无锡一体两翼的中心,沪宁城市发展轴线与锡澄宜产业发展轴线的交汇点。目标为发展成为以现代综合交通枢纽为依托,现代产业发展和旅游集散,居住为一体的交通枢纽商业商务中心和区域旅游集散的第一门户。
▲基地区域位置示意
基地位于无锡市惠山区前洲街道/城铁惠山站区区域。东邻洛洲路、南抵车站路、西接曙光路、北临前进路。用地面积为52755㎡。在基地的东南方向为已建成的沪宁城铁惠山站,规划中的地铁轨道交通线从附近通过。

▲基地周边示意
基地西南侧规划有万寿河湿地公园,具有较好的景观资源。在公园东北角,紧邻基地西侧,有一块公共设施用地,规划中有一个社区文化中心。
▲总平面图
基地周边地块均为居住用地,其中基地北侧地块为商住用地。周边地块的居住区未来会成为规划学校的主要服务对象。基地左侧地块为预留的二期用地,面积为75076㎡,规划建设30班初中、18班国际高中。
▲校园鸟瞰
作为无锡门户区的新校园,项目希望能对新型校园做出有意义的探索,实践,让校园空间成为达成新教育愿景的载体,成为区域高品质校园的标杆,同时也是对未来教育模式的赋能与探索。
▲校园内景
项目希望探讨的命题:
如何利用开放、可变的校园来适应新型教学模式?
如何用创新的建筑形式来回应传统文脉?
如何保证高品质建造的完成度?
▲校园内景
设计策略:
· 打破旧的常规校园单一的空间功能划分、排布,营造提供多种可能性的,多层次开放、链接的校园空间;
· 营造有场所感的情景式校园,将传统的文脉、学园的文化氛围赋予校园,增强空间的场所感和感染力;
· 通过精细化的细部设计,保证高格调、高完成度的表达,从而呈现高品质的校园空间。
▲校园内景
02
链接 / 立体 · 多路径
Link / 3Dimension· Multipath
根据场地环境形成运动区、教学区、公共区三大功能组团。根据功能体块,形成两大规划轴线。依托校园轴线,将校园进行整体串联,打造集约型校园。
▲体块/路径生成示意
设计采用集约、复合的布局模式,整体布置清晰高效。校园主入口位于东侧。场地西侧布置常教学用房,北侧为宿舍和食堂。南部布置运动场,中部东侧紧靠运动场布置体育馆和综合楼。
▲体块/路径生细化示意
完成主要体量空间布局后,深化建筑单体布置,增加连廊和合班教室,形成院落空间,搭建开放链接型校园空间的框架。
▲连廊与建筑
由干受设计规范的限制,现有校园设计无法完全打破传统的“连廊加教室”式的兵营模式。
▲多路径空间
本案引入开放链接型校园的理念。空间包含非封闭式的多功能校园空间,以满足新型教育的需求:学生交流、社团活动、个性化教学等一系列灵活多样的校园活动,促进学生主动式和多样化学习。
▲核心空间/南北主轴
设计扩大主要沿教学楼外缘布置的二层室外连廊,形成活动平台,把各教学楼、学生宿舍、食堂/综合楼、体育馆等进行串联,中间又以斜插的走道连接,形成多路径开放空间。
▲建筑间的庭院/小广场
丰富、开放、立体、多路径的校园公共核心空间成为南北主轴。校园公共室外空间如羽毛球场、小庭院、小广场、大台阶、风雨操场等散布于主轴两侧,营造多样的室外活动场地。
▲丰富的连廊空间
架空走廊采用平整的条形吊顶,形成视觉上连续平整的顶部,增强了架空空间的整体感与流畅感。连续的顶盖也在无锡湿润多雨的气候中,保证了全天候的使用。
03
链接 / 内外 · 一体化
Link / Inside and Outside · Integration
设计将开放链接型校园空间的理念贯穿室内、室外。形成室内外一体的多层次链接型空间。
▲室内链接型公共空间形成示意图
开放链接型校园空间可以是门厅空间、平台空间、共享中庭空间;也可以与交通空间相结合,以拓宽的走廊、连廊等形式存在。
▲教学入口门厅
作为主要教学空间的教学楼,设计中注重空间的多样性和灵活性。拓宽的走廊、连廊结合垂直交通(台阶)形成中庭。空间类型尽可能丰富,以对应不同场景的需求。
▲教学楼中庭
通高的中庭、门厅和周围不同高度的回廊、前厅结合,增加层次感。教室外直线形的走道间用斜插的走廊连接,增加空间的流动性和丰富性,激发交流互动。
▲综合楼多功能台阶
教学楼中庭里,放大的台阶、回廊的木格栅、屋面采光天窗等设计元素的加入,增加了建筑空间的多样性、趣味性,促进了楼层间的互动并激活周边功能区域,获得了功能的多样性、灵活性。
04
文化性 / 传统 · 文脉
Culture / Tradition · Context
在新型的教育理念下,校园文化的营造具有重要的意义,包括物质环境的内容和括精神环境的内容。物理空间对于形成一个完善的、富有人文精神和场所精神的校园,有着重要的意义。
▲建筑造型
本设计以用现代技术、设计理念来诠释传统建筑、学院建筑为切入点,营造充满人文气息,富于文化性的校园。
▲建筑造型
设计力求创造性地继承传统,而不是简单的模仿。延续传统文脉,同时在适应现代技术、材料,以及使用要求的基础上创新与发展,是一个一直在实践中探索的课题。
▲立面细部
对传统建筑的现代表达是多元而充满差异化的。本设计以对传统建筑形式的现代呈现为抓手,将传统建筑的坡屋顶抽象、概括,结合功能,将建筑造型、立面收纳和使用功能做一体化设计。
▲立面细部
并且,建筑师将这种表达精细化,通过对建筑细部的设计,用新技术、新材料来表现建筑所追求的形式特征。
▲细部设计/坡屋顶
同时,建筑师将无锡所处的大的地域建筑的特点,作为文脉和地域的表达特征。建筑造型设计追求轻、薄、透的效果,以此回应场地、气候及地域建筑文化中特有的集体记忆。
▲建筑群的整体形象
另外,设计将传统学院建筑常用的红砖材料,作为主要的外立面元素,来赋予校园学院建筑的文化特质。
▲镂空砖/虚与实的过度
为达到高品质建造的目标,建筑师把细部设计作为空间设计的重要部分,通过精细化设计来规避材料和施工可能出现的质量问题。
▲U型材收边
比如,用可控的工业化型材-U型材收边,来限定不可控的材料,让普通的建筑材料有高格调、高完成度的表达,从而呈现高品质的校园空间。
05
技术图纸
Technical Drawings
▲总平面图
▲一层平面图
▲二层平面图
▲三层平面图
▲四层平面图
▲1-3#楼东立面图
▲6#楼立面图
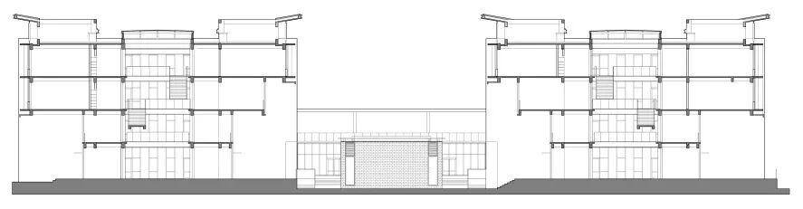
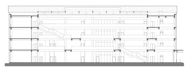
▲1#楼剖面图
▲1&2#楼剖面图
▲6#楼剖面图
- END -
项目名称:
项目地点:
建成时间:
设计单位:
设计团队
施工图:
结构团队:
设备团队:
景观团队:
施工单位:
建筑摄影:
无锡市匡园双语学校
江苏省 无锡市 惠山区
2021年6月
上海联创设计集团股份有限公司
创新设计中心 UDG中国 大家建筑工作室
上海联创 都市综合设计研究院 建筑五部
上海联创 结构三部
上海联创 机电一部
上海联创 景观设计部 创作一室/园建室
华虹建筑安装工程集团有限公司
江苏天威虎建筑装饰有限公司
江苏楷正建设有限公司
MLEE建筑摄影工作室
本资料声明:
1.本文为建筑设计技术分析,仅供欣赏学习。
2.本资料为要约邀请,不视为要约,所有政府、政策信息均来源于官方披露信息,具体以实物、政府主管部门批准文件及买卖双方签订的商品房买卖合同约定为准。如有变化恕不另行通知。
3.因编辑需要,文字和图片无必然联系,仅供读者参考;
搜建筑·矩阵平台
作品展示、招聘发布、更多相关
合作、宣传、投稿
联系微信:soujianzhu006
推荐一个
的地产+建筑平台
每天都有新内容
扫描二维码关注

微信公众号“搜建筑”(ID:sjz9999)
阅读原文:“UDG联创设计”更多精品


