▲ 更多精品,关注“搜建筑”
榕树下的学堂 / 江边学校
SEED周琦工作室

除了一片空地外,留给建筑师的还有一棵古榕树。
如何在“高容高密”的现实因素和严格的规范限制下,充分尊重并拥抱这位”原住民“,重塑围绕这棵古老大树而形成的场所,我们希望通过江边学校这个项目给出自己的答案。

▲ 建设中的江边学校,拍摄于2021年5月 © SEED
▲ 整体鸟瞰效果图

▲ 新建校园与城市更新肌理关系 © SEED

项目地点位于坪山街道江岭社区江边片区,建筑用地面积24,700m²,总建筑面积为76,934m²。项目用地被高层居住小区环绕,南侧为主要道路比亚迪路。办学规模为54班九年一贯学校。

▲ 体量生成分析 © SEED
我们把校园分成了东西纵向的“学习区+运动区”,通过下部“综合底盘”和上部“书山学堂”两部分的组合策略,来应对高密度教学空间需求。
综合底盘

▲ 综合底盘轴测示意图 © SEED
底盘之上是包含师生日常教学、交流和办公空间的教学组团,由两组U型建筑和一个连接体组成,布置在底盘上部的西侧。东区裙楼为250m田径场和其下方的风雨操场以及室内体育馆,高层的教师宿舍则布置在了场地东南角,这样做的目的是避免与周边的高层住宅扎堆,相互挤压,同时保障南北朝向均能获得足够的视距和开阔的视野。

▲ 结合地形和功能空间塑造的基座地面 © SEED
底盘之下则整合了大型公共空间,包含了各种文体活动房间、餐厅、报告厅和架空活动场地等功能。
书山学堂

▲ 多层活动平台连接体 © SEED
由多层退台组成的“书山学堂”作为校园中最活跃的焦点,营造出自然轻松的活动氛围,塑造了学校独特的建筑形象,形成一个探索和发现的舞台。

▲ 户外活动平台 © SEED
我们希望这些平台是各年级学生都能方便到达的活动场地,这里的视线可以与操场和教室互相渗透,师生们可以十分便利地进行观察、交流、运动。这些场地的使用方式可以随着学生想法的变化而变化,让空间的可能性给予学生释放创造力的土壤。

第一次现场勘察时,场地已经完成拆除,唯独留下了一棵榕树。这也给了我们一个契机,在这片即将建设高密度校园的场地,保留一个独特的留白空间。

▲ 原场地内保留的榕树 © SEED
这棵榕树的树龄约120年,是旧村留下的印记。我们希望这棵古树能长久矗立在新校园中,与学生们建立有趣的连接,无论是物理上的、时间上的还是精神上的,作为自然与城市记忆的一部分,陪伴他们成长,成为校园时代的记忆锚点。

▲ 教学楼环绕的榕树广场 © SEED
所以我们让教学楼围绕这棵榕树退让,围合成一个半开放的榕树广场。榕树将校园主入口和校前广场联系起来,成为进入校园后第一个空间节点。
在设计过程中,“场景”(scenario)是我们关注的重点,这是一种通过建筑提供空间框架,包含使用者在内的一种氛围。在这里,树冠限定了场景的“边界”,树冠、阴影和人的活动构成了场景的氛围和其中发生的事件。
可以想象这样一个画面:“放学时分,家长们在校门外等待着,穿过校门可以看到在树下玩耍或集结的孩子,阳光透过树冠,斑驳地洒落在孩子们的脸上,风一吹,叶子也会落下参与进来。” 这只是未来无数个使用场景中的一种可能,人与自然在这里如此生动的交流,让大家对这个空间的故事容量有了更多期待。

▲ 连接街道与榕树广场的校园入口 © SEED
另外这还带来了一个机会:学生们可以站在环绕的外走廊和平台上,通过不同的高度和角度去观察这棵古老的大树,去感受它与空间的关系,去理解它如何获得阳光,怎样面对风雨。这也是教育的一部分。

▲ 围绕着榕树不同高度的活动平台 © SEED

九年一贯制学校的学生年龄跨度很大,体格和心智上的差异使不同年级的学生容易产生冲突,因此学习组团和活动空间的分区是功能布局的重点。

▲ 组团与连接平台概念 © SEED
我们将小学组团和初中组团分为南北两个独立分区,各自围合形成中庭,又通过公共教学空间所组成的 “连接体”将两个组团连接起来。如此,小学和初中有相对明确的场所归属感,又可以在公共视野的关注下有所交流。

▲ 组团剖面 © SEED

面向城市
最南侧教学楼对应的外部环境,既有城市主要道路比亚迪路,也有越过道路后开阔的视野,因此这里的外侧走廊被设计成层层退台的立体空间,以减弱车辆噪音对教室的影响。同时形成错落的延展露台和空中庭院,也让在平台上发生的活动成为鲜活的城市景观。

▲ 面向城市的立体退台活动空间 © SEED
开放的前场
大部分中小学校园都会沿学校用地建设围栏来明确内外分界,而我们希望设计一个更加开放,对城市生活更加友好的前场。

▲ 南入口广场 © SEED
在场地东南角,结合校园入口和后勤综合楼的前场,将校园的边界后退至建筑本身,取消设置围墙。开放出的场地与城市绿化带一起形成了开阔的街角广场,可供学生、家长和市民休憩和交流,也能缓解上学放学高峰期校门口的拥挤问题,在校园与城市边界建立了友好的空间关系。

一棵树对于一个项目来说也许微不足道,但在设计过程中我们把它放在了一个相当重要的位置,因为在校园这个特定情境里,这不只是一棵普通的古树,更是大自然和时间的馈赠,它将在孩子们心中埋下一颗敬畏自然的种子,实现环境育人的目的。
相信未来的设计一定会到达这样一个阶段:在更新过程中,更加注重大众记忆场所的重塑,各个相关方都愿意尽最大努力去保护那些承载着城市记忆的建筑或树木,保留人与自然的互动、新与旧的交织,让建筑与自然共生,让城市记忆得以延续。
技术图纸
-

▲ 总平面图 © SEED

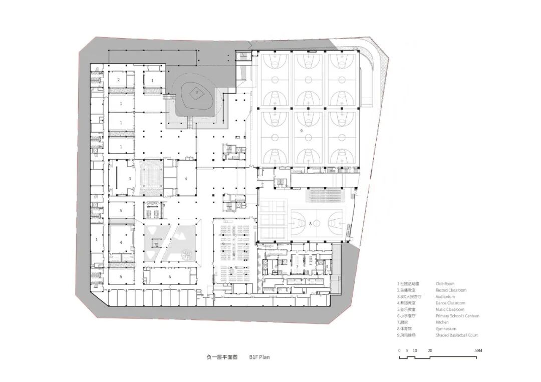
▲ 负一层平面图 © SEED

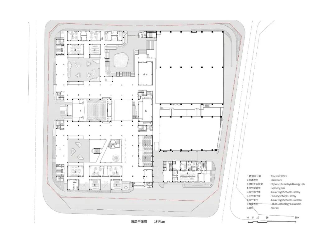
▲ 首层平面图 © SEED

▲ 二层平面图 © SEED

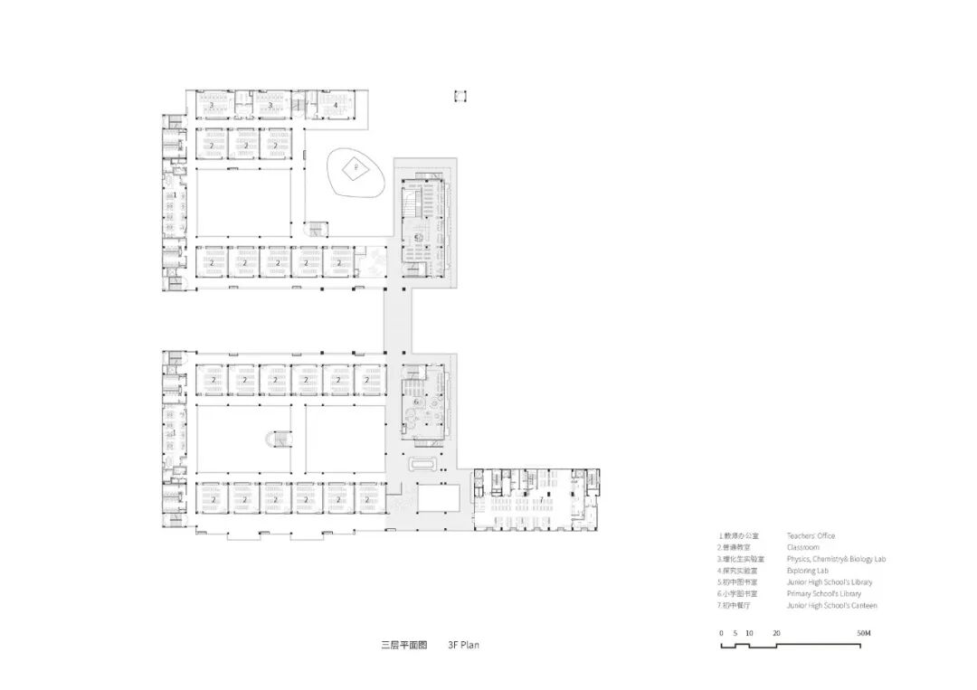
▲ 三层平面图 © SEED

▲ 四层平面图 © SEED

▲ 五层平面图 © SEED

▲ 六层平面图 © SEED

▲ 南北向剖面图 © SEED

▲ 东西向剖面图 © SEED

▲ 教学楼活动走廊详图 © SEED
项目信息
-
项目名称丨江边学校
项目地点丨深圳市坪山区
用地面积丨24,700㎡
建筑面积丨76,934㎡
业 主丨深圳市坪山区建筑工务署
代 建丨万科企业股份有限公司 深圳市万科城市建设管理有限公司
设计总包丨深圳市天华建筑设计有限公司
建筑方案丨 SEED席得设计:周琦、尹楠、范若琦、刘健、杨燊、徐柏林、黄志锋、刘全疆、黄庆玲、苏华超、赵鑫、钟金宝、崔淼林
建筑施工图丨深圳市天华建筑设计有限公司
本资料声明:
1.本文为建筑设计技术分析,仅供欣赏学习。
2.本资料为要约邀请,不视为要约,所有政府、政策信息均来源于官方披露信息,具体以实物、政府主管部门批准文件及买卖双方签订的商品房买卖合同约定为准。如有变化恕不另行通知。
3.因编辑需要,文字和图片无必然联系,仅供读者参考;
搜建筑·矩阵平台
作品展示、招聘发布、更多相关
合作、宣传、投稿
联系微信:soujianzhu006
推荐一个
专业的地产+建筑平台
每天都有新内容
扫描二维码关注

微信公众号“搜建筑”(ID:sjz9999)


