▲ 更多精品,关注“搜建筑”
市场在变化,户型设计也在变化。
160㎡面积段户型:布局+趋势
市场流行的——紧凑三房户型(89-110㎡)
上期我们给大家分享了
万科创新户型:140㎡面积段(点击我阅读)
万科创新大平层:180㎡面积段——10个户型(点击我阅读)
不得不说,万科作为行业标杆,亦是对家庭日常生活有很深刻理解,更是一直在尝试更高阶的居住形态。今天搜建筑整理了万科几个160㎡面积段户型,看看有没有惊艳到你!
1
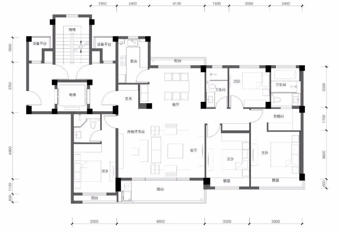
苏州万科玉玲珑,建筑面积约165㎡,四房两厅三卫,超大南向采光面。开放式公区,由餐厨空间和以沙发休闲空间两个交互中心组成,6.3米横厅,1.8米进深阳台、开放式厨房+岛台设计、双动线归家、南向双套房、5个飘窗的设计。

苏州万科玉玲珑外立面效果图
苏州万科玉玲珑外立面效果图
2
苏州万科锦上和风华苑,建筑面积约165㎡,四房两厅三卫,,总长约17米的南向开间、约6.3米的大气横厅、南北全飘窗设计,为居者提供了环幕级视野。
双套房、环形动线设计。主卧套房:步入式衣帽间、270°转角飘窗、星空SPA卫浴、双浴区等气派设计,倍感尊崇。

苏州万科锦上和风华苑约165㎡户型图
3
南京万科星耀都荟花园,160㎡四房两厅两卫,四开间朝南,南向两个卧室带飘窗,主卧套间设计。设计师们更是赋予其更多情感的主题,多功能横厅、南向双阳台、社交厨房,跳脱出传统物理功能的禁锢,家,也自此成为更多可能的【X空间】。

南京万科星耀都荟花园约160㎡户型图
万科·星耀都荟花园 效果图示意
4

上海万科天空之城约160㎡户型
岛台的设计,不仅是增强功能性,更增添了几分休闲意趣,可以边备餐边与家人、孩子和客人说话,也可以坐在吧台椅上边喝咖啡边工作。关注经典人居
主次卧三间全部朝南,配有大面宽飘窗;主卧套房设计,独立衣帽间,主卧还有270°转角飘窗,270度全面幅采光。

上海万科天空之城约160㎡样板间实景

上海万科天空之城约160㎡样板间实景
5
石家庄万科正定文化村,建面约160㎡宽厅洋房为四室两厅两卫,四个卧室有序布局于房间四角,有效保障各个卧室的私密性,是典型的“四叶草”设计,设计约13.6米南向超长三面宽,带来IMAX级景观视野。

石家庄万科正定文化村约160㎡户型图
相较于市场上具备约60㎡大宽厅的户型大多在200㎡以上,正定文化村建面约160㎡洋房作品设计约60㎡大宽厅更显难得。宽厅、餐厅、厨房组成超大洄游空间,满足对生活的所有想象。关注经典人居

阳台采用超大落地窗,约6.8米大开间,即保证了采光效果,又为居者增添了一处多功能的活动空间。主卧套房高颜值衣帽区、双台盆卫生间,270°转角飘窗。

石家庄万科正定文化村 效果示意图
6
嘉兴万科隐秀湖畔,建面约168㎡的户型,4房2厅3卫的空间格局,南向面宽约16.1米,五开间朝南、双套房、大宽厅,合理的面宽进深比例,保证了每个空间的尺度,居住感都相当舒适。
“大宽厅”:餐厅、客厅、厨房的动线融为一体,直接连通面宽约8.9米的跑道式阳台,成为家庭生活的核心场域,能够实现多重功能。
7
兰州万科城·山望,建筑面积约165㎡户型,整个公区面宽约6.8m,进深将近约9m,面积达到约53㎡,开放、可变的复合厅位于中央,卧室、书房、卫生间等功能分区位于四周,消灭走道的面积浪费,做到标准的全生命周期户型,很好地平衡两代或三代人的生活空间......

兰州万科城·山望约165㎡户型图
8
西安万科沣华锦鸣,约165㎡户型,2梯2户,电梯直接入户,进入私密的独立电梯厅,满满的仪式感。户型足足做到了南北8面采光,大尺度亲近自然。两个卧室、餐厅、客厅四开间全部朝南,横向面宽拉大,总体接近约15.2米,进深大大缩短,进一步提高空间利用率。7.8米横厅享受多种场景;25㎡套房主卧室,将主人生活空间一分为四:观景南向大飘窗、睡眠休憩区、衣帽更衣室、高配卫生间。关注经典人居

西安万科沣华锦鸣约165㎡户型图
9
西安中国铁建·万科翡翠国际约160㎡户型,三室两厅两卫设计,三向采光(南北通透+西向大阳台+南向大飘窗),双阳台,主次卧分离,独立玄关。

西安中国铁建·万科翡翠国际约160㎡户型图
10
无锡万科翡翠东方,建筑面积约168㎡户型,融合客、餐厅区域,提高面积占比,宽绰尺度可划分出不同的功能区,构建会客、娱乐、聚餐、休闲、社交于一体的家庭活动中心,实现多元场景聚合,打造陪伴式家庭,延长家人逗留时间,促进彼此交流。

无锡万科翡翠东方约168㎡户型图
全功能型主卧套房,从尺度与人性化设计中撷取灵感,对空间进行精细化升级,在原有的三段式卫浴空间增设独立浴缸,打造步入式衣帽间、双270°L型转角景观飘窗....
11
杭州万科河语光年府,建筑面积约165方相当阔绰,四室两厅三卫,超大客餐厅,厨房外面还可以延伸出一个西厨,三房朝南双套房设计,沿河楼幢的西边套,窗外就是运河。

杭州万科河语光年府约165户型

杭州万科河语光年府效果示意图
12
石家庄万科紫台,建面约168㎡的3+1可变大宽厅的标杆产品,强收纳与礼仪感兼具的入户玄关,共享社交厨房,约7.3mIMAX多元客厅,满足更丰富的生活场景想象。

石家庄万科紫台约168㎡户型图
13
兰州万科璞悦澜岸,约165㎡四室两厅两卫,餐客厅开间达约7.2米,一体式餐客厅面积达到了约35㎡,联动同宽7.2米南向观景阳台;干湿分离卫生间;完整套房式主卧室,配备独立衣帽梳妆空间、南向飘窗、全明主卫,居住舒适高。

兰州万科璞悦澜岸约165㎡户型图
14
杭州地铁万科·未来天空之城,建筑面积约168㎡洋房户型,四房两厅两卫,整体约17米大面宽,五开间南格局(含开放式书房),独立玄关+独立电梯厅设计,超大独立玄关厅,实现入户电梯与家的自然过渡,尊重户内的私密性与隐蔽性。关注经典人居

杭州地铁万科·未来天空之城约168㎡洋房户型图
约6.5米大面宽客厅与阳台相衔接,空间非常阔绰;双套房设计,保障家庭成员的生活私密性;主卧套房设计,观景飘窗、走入式衣帽间、独立卫浴一应俱全,卫浴四件套带浴缸,享受性高。
15
福州万科城市之光,建面约165㎡,4室2厅3卫,四开间朝南,大面宽布局,开放式厨房,八人大圆桌餐厅,此外,还搭配了宽阳台。

福州万科城市之光约165㎡户型图
16
长沙轨道万科悦府,建面约168㎡大平层户型,大面宽LDKB一体化布局,三卫生间+双套房设计,私密性无敌,主卧带独立卫浴+独立衣帽间+梳妆台,空间震撼!

长沙轨道万科悦府约168㎡户型图
17
济南雪山万科城,建面约165㎡户型,南向四面宽设计,不仅扩宽了居者的观景视野,更能与室外景色近距离接触。在165㎡大宽厅里,济南人可以聊家常、话城市,觥筹交错间是志得意满,杯酒换盏之际谈笑有鸿儒,往来无白丁,这就是济南塔尖圈层想要的大宽厅。
165㎡户型南北通透,在空间的巧妙布局下,每一处休息区域得到空间优化,主卧位置隐秘,位于整个户型的里面。其他次卧都非常方正,面积利用非常高效。

济南雪山万科城约165㎡户型图
18
万科人居迭代产品花园大平层——成都万科江上云洲,建筑面积约168㎡花园大平层,上下错层设计,户户采光无遮挡,约270°瞰景视野,约4m进深、建面约30㎡空中花园,多室与花园互通动线布局。大套房主卧,全套房设计,让每位家人都成为生活的主人。

成都万科江上云洲 约168㎡户型图
万科·江上云洲销售展示单位实景图
万科·江上云洲销售展示单位实景图
万科·江上云洲销售展示单位实景图
万科·江上云洲销售展示单位实景图

万科·江上云洲概念图

万科·江上云洲概念图
19
江阴万科时代都会,约169㎡户型,宽奢的面积尺寸,设计了一席体验感非凡的超大南向双阳台。四室灵动空间,主卧套房式设计+南向飘窗,空间将自己所能想象到的美好尽数投注于此。


江阴万科时代都会约165㎡ 样板间实景图
20
常州万科国宾道建筑面积约165㎡户型,四开间朝南,南北通透,大横厅,双开间阳台,结合万科超大的窗墙比,采光、通风相当出色。

常州万科国宾道约165㎡户型图
此外,整个空间规划上,豪华双套房设计,主卧更是配以超大衣帽间,空间感、奢华感尽情享受。还有,大户型匹配的一梯一户,独立门厅,玄关设计,更彰显了顶级塔尖人士的尊贵身份。
21

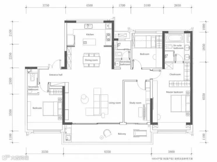
成都轨道城市万科美的·高线公园约166㎡户型

22

结语:
楼市里有句话叫“行不行,看户型”,户型相当于整个住宅系统的心脏,一个户型的好坏直接影响居住舒适度的高低。好的户型也总是能俘获购房者的芳心,相信每一个户型的背后,都藏着万科为业主的万千思考和细心周到的关怀。

本资料声明:
1.本文为建筑设计技术分析,仅供欣赏学习。
2.本资料为要约邀请,不视为要约,所有政府、政策信息均来源于官方披露信息,具体以实物、政府主管部门批准文件及买卖双方签订的商品房买卖合同约定为准。如有变化恕不另行通知。
3.因编辑需要,文字和图片无必然联系,仅供读者参考;
搜建筑·矩阵平台
作品展示、招聘发布、特色建材
合作、宣传、投稿
联系微信:soujianzhu006
推荐专业平台
只推送新的、精品楼盘
扫描二维码关注

微信公众号:经典人居 (ID:jingdianrenju)

搜建筑:www.soujianzhu.cn
↓↓↓ 搜建筑网站,下载精品户型dwg文件


