人的一生有两种东西不会忘记,那就是母亲的面孔和城市的面貌。


从2015年至今国家开始大力支持租赁住房市场。2016年年底,建筑市场从上到下开始提出“房子是用来住的”理念。由此各地密集出台楼市调控政策,并大力发展租赁住房市场,九部委发文在广州等12个城市试点。广州率先打出“租售同权”理念,紧接着深圳、武汉等50多个城市出台发展租赁住房政策。
本项目由上海临港产业区公共租赁房建设运营管理有限公司建设运营,项目建设积极响应国家政策号召,致力打造成上海市租赁住房标杆项目。
项目位于上海浦东新区,距离浦东机场27公里,距离港城主城区滴水湖11公里,临近上海绕城高速和沪芦高速交通便利。周边产业园区、工业园环绕,距离临港万达广场仅500米,教育商业等配套资源丰富。住区内分为13栋建筑,其中1-8号楼为租赁住宅,9-13号楼为社区配套用房。社区可为1350多户提供租赁住宿。
根据《上海市租赁住房规划建设导则》中条例,租赁住房倡导开放式街区设计理念,鼓励开放式设计,并通过不同的建筑形态组合来提升空间品质,鼓励围合式布局,需合理利用场地设置邻里交往活动空间。
在规划形态方面,我们摈弃了传统兵营式排布形式,将八栋住宅建筑围合排布,在基地中形成俩个大的中心组团花园,并通过中心景观轴线将其连接。这样的对称式布局既与中国传统建筑布局有相似之处,又通过围合的建筑形成了社区的边界,提高了社区的辨识度,让人们有想要长久的居住在这里生活交往的愿景。
现今小户型集约式租赁住房更多的面向年轻使用者,这就要求租赁住房的建筑规划不仅需要满足基本社会需求,更需要提供新颖有趣的社区模式。我们想要创造出一个全新的“公园型青年社区”,它既可以是一个静谧的、舒适的创意生活空间,也可以是一个有话题的、网红感的最潮社交圣地。
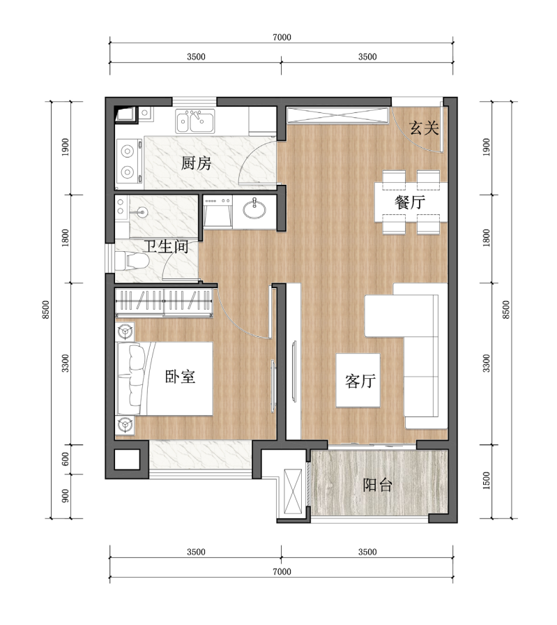
社区主要面向周边产业园区的年轻员工,产品主要以一居室户型为主,套内使用面积控制在30~60㎡。在集约的标准单元内,我们需要提供可预制、易变化、多功能的空间设计。
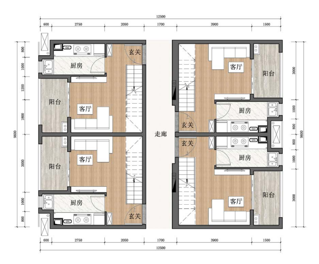
传统的租赁住宅产品普遍存在户型北向与西向日照差、通风不好的问题,为此我们创新引入了“X型”的两层错叠的户型组合形式,并将此户型集中放置在在东西朝向的楼栋中,使建筑日照和通风问题得到大大改善。“X型”的布局形式使双层的两户只使用一条公共走廊,减少了公共使用面积,大幅提升了项目得房率。
在户型内容设计上我们希望可以在一室的小户型中满足年轻人对生活中仪式感的需求。独立玄关、封闭明厨、干湿分离卫生间、独立卧室这些功能空间的合理布局,使得日常生活、朋友聚会读书观影等活动都能以舒适的方式展开。
由于项目住宅由开发商自持运营,立面设计需要模数统一、成本可控,并且还要做到高辨识度和具有标识感。我们提供了三种立面方案,在多方对比后选取了造型简约,以灰色弹性涂料和米白色真石漆为主的第三方案。
立面框架按照有据可循的参数化,合理进行分割,竖向造型杆件交叉排布,错落有致的立面分割,使建筑整体看上去既精致美观又具有合理性,透露着参数化的美学。
整个室内设计沿用了一个建筑的设计风格,线条流畅,造型简约。
公区部分的设计从天花高低起伏的格栅到墙面错落不规则的石材铺贴,都增加了整个空间的灵动性及趣味性。此外我们还在整个公区做了很多小细节来提亮整个空间,像非机动车区域的小导视,还有我们信报箱和墙面的线条灯的结合,以及相应的这些人性化的摆台。
户内整个空间以原木色和白色为主,局部我们用了色彩去点亮,使得整个空间更活泼。空间上进行有效的利用,像A户型墙面的层板以及B户型的楼梯下侧的柜体,增加室内的收纳空间。材料运用上也是充分考虑了项目自持这一特性,运用了一些更利久,更利维护的材料。
在上海租赁住房已经逐渐成为年轻人首选的首个住宅,我们希望租赁住房不再仅仅只是一个“临时”的居住场所。我们更应该在这些小小的一居室中加入更多的“仪式感”和“生活气息”,让他真正成为当代年轻人的“第一个家”。
业主单位:上海临港产业区公共租赁房建设运营管理有限公司
本资料声明:
1.本文为建筑设计技术分析,仅供欣赏学习。
2.本资料为要约邀请,不视为要约,所有政府、政策信息均来源于官方披露信息,具体以实物、政府主管部门批准文件及买卖双方签订的商品房买卖合同约定为准。如有变化恕不另行通知。
3.因编辑需要,文字和图片无必然联系,仅供读者参考;
宣传、投稿
联系微信:soujianzhu006

推荐一个
专业的地产+建筑平台
每天都有新内容
扫描二维码关注

微信公众号“搜建筑”(ID:sjz9999)