从船头到船尾,DFDS的新总部散发着可持续性、灵活性和公司价值观。员工们现在已经登上了DFDS在哥本哈根北港的新总部。PLH Arkitekter公司在码头边上定制了一个充满绿色解决方案的建筑。这个航运巨头的新基地也支持以活动为重点的工作。
From bow to stern, DFDS’ new headquarters exudes sustainability, flexibility, and company values. Employees have now boarded DFDS' new headquarters in Copenhagen's Northern Harbor. Placed alongside the quay, PLH Arkitekter has customized a building loaded with green solutions. The shipping giant's new base also supports activity-focused work.
根据早晨的雾霾剪影,哥本哈根港内的DFDS标志性的奥斯陆渡轮可能看起来像是被孪生的。但是,随着太阳光线的出现,一个细长而有特色的建筑出现在渡轮附近的码头旁。凭借其修长的外形、起伏的动作和大面积的玻璃部分,DFDS的总部与它周围的海洋环境相得益彰。
Based on the foggy morning silhouettes, it might look as though DFDS’ iconic Oslo ferry in the Copenhagen harbor has been twinned. But as the sun’s rays emerge, a slender and characteristic building appears alongside the ferry’s neighboring quay. With its elongated shape, undulating movements, and large glass sections, DFDS' headquarters stand out in respectful cohesion with its maritime surroundings.
我们采取了一切措施来实现雄心勃勃的绿色目标,这将使我们获得丹麦绿色建筑委员会的DGNB金奖认证。丹麦DGNB是一个欧洲的认证系统,适合丹麦的情况,使建筑的可持续性可以衡量。
Every measure has been taken to achieve ambitious green goals, which will result in a gold DGNB certification from Green Building Council Denmark. DGNB Denmark is a European certification system, adapted for Danish conditions, to make sustainability in buildings measurable.
“很高兴与DFDS合作,制定并实现如此高的可持续发展目标。PLH Arkitekter的首席执行官兼合伙人Søren Mølbak说:“我们从其他项目中吸取了专业知识和丰富的经验,确保我们创建了一个独特的、面向未来的总部,提供一些最佳的可持续解决方案、优秀的室内气候和现代社会考虑。”
“It has been a pleasure to work together with DFDS to set and meet such high sustainability goals. We have drawn on our expertise and extensive experience from other projects, making sure we create a unique, futureproof headquarters that offers some of the best sustainable solutions, excellent indoor climate, and modern social considerations,” says Søren Mølbak, CEO and partner in PLH Arkitekter.
建筑的特色是纤细的混凝土结构和轻质的立面,这有助于减少二氧化碳的排放。能源消耗也减少了,地板和地毯也经过了特别挑选,以便循环利用。
Among the building’s defining aspects are the slim concrete construction and lightweight facade, which have helped reduce CO2 emissions. Energy consumption has also been reduced, and floors and carpets have also been specially selected so as to allow for recycling.
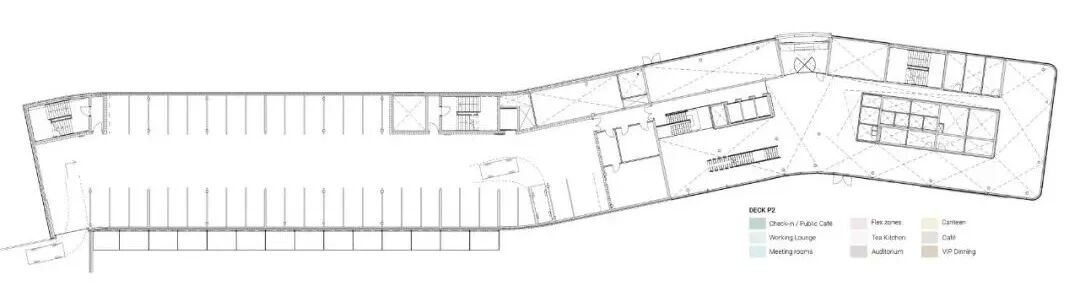
有着坚实的海上根基。对于PLH Arkitekter来说,设计约15500平方米的总部大楼至关重要,它特别满足了DFDS的需求。sn øren Mølbak解释说:“可以说,我们抛弃了传统的办公建筑方法,设计了一个基于DFDS的海事标识的建筑。
灵感来自于一艘船的结构,我们在底部放置了停车场,接着是后面楼层的办公室,最后是公共区域,如食堂、礼堂和会议室在顶部。因此,沿着建筑向上的旅程不断地通向新的、令人兴奋的目的地。”
With firm maritime roots. It has been crucial for PLH Arkitekter to design the headquarters’ approximately 15,500 sqm so that it specifically meets DFDS' wants and needs, Søren Mølbak explains: “We have, so to speak, thrown the traditional approach to office construction overboard and designed a building based on DFDS’ maritime identity. With inspiration taken from a ship’s structure, we have placed parking at the bottom, followed by offices on succeeding floors, and finally common areas such as the canteen, auditorium and meeting rooms at the top. Thus, the journey up through the building constantly leads to new, exciting destinations.”
公共区域和办公空间都经过精心设计,以最大限度地利用独特的环境。通过大型隔音窗,员工和游客可以看到DFDS的奥斯陆轮渡进进出出,而Øresund的新鲜海洋空气和惊人的景色可以从两个屋顶露台欣赏。
Common areas and office spaces are all carefully located to get the most out of the unique surroundings. Through large soundproof windows, employees and visitors can watch DFDS’ Oslo ferry as it sails in and out, while Øresund's fresh ocean air and breathtaking views can be enjoyed from the two roof terraces.
为未来的工作环境指明了方向。指定的区域和分配的办公桌已经成为过去的事情。取而代之的是,一个动态的工作环境已经建立起来,围绕着自由的座位和不同的家具区域,可以根据工作任务来选择和不选择。从船头到船尾,PLH的室内设计团队确保总部反映DFDS的身份,将公司的标志性颜色转移到建筑的基本组成部分,如地毯和咖啡区。
Sets the course for the working environment of the future. Designated areas with allocated desks are a thing of the past. Instead, a dynamic work environment has been built up around free seating and differently furnished zones that can be selected and deselected depending on the work tasks. From bow to stern, PLH's interior design team has made sure that the HQ reflects the DFDS identity by transferring the company’s signature colors to the building's basic components such as carpets and café areas.
本资料声明:
1.本文为建筑设计技术分析,仅供欣赏学习。
2.本资料为要约邀请,不视为要约,所有政府、政策信息均来源于官方披露信息,具体以实物、政府主管部门批准文件及买卖双方签订的商品房买卖合同约定为准。如有变化恕不另行通知。
3.因编辑需要,文字和图片无必然联系,仅供读者参考;
合作、宣传、投稿
联系微信:soujianzhu006

推荐专业
地产建筑平台
每天都有新内容
扫描二维码关注

微信公众号“搜建筑”(ID:sjz9999)