规划策略:差异化回应周边资源

△ 区位图
项目用地面积18844m²,容积率2.6,绿地率30%,总计344个住户单元,与国内动辄几十、上百万平方米的楼盘相比,算是一个小规模住宅区。当时市场主流规划布局原则:以轴线串接花园,强调轴线对称,中心大花园,楼王居中。此原则同样适用于本地块,但因为本项目用地偏小,基地四周外部环境迥异,东侧和北侧紧邻主干道,噪音大,西侧邻水有景观,所以我们认为,如果能在此规划布局基础上以差异化的策略回应周边资源,项目的整体价值仍然有提升空间。
△ 总体规划模型

△ 规划生成图
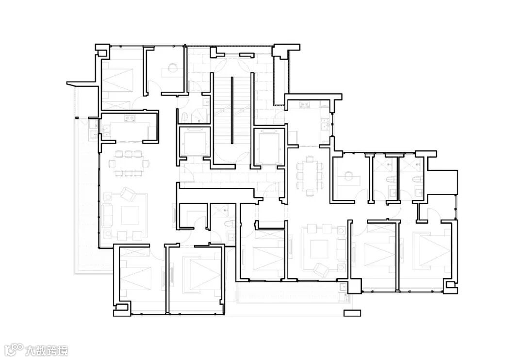
户型策略:面宽与资源的精准化匹配


△ 户型对比


△ 4#和5#145m²四开间和145m²边厅户型平面


立面设计策略:追求平面和立面语言
逻辑的一致性
△ 建筑立面实景照
△ 主楼立面生成图

△ 立面剖面示意图

△ 概念研究模型


立面实现策略:用窗墙体系实现幕墙效果
效果图如何高质量的实景呈现,需要建筑师在造价、规范等现实问题和立面理想效果间做平衡。




△ 窗系统的隐框开启扇细节


△ 飘窗1节点设计
在飘窗外立面节点处理上,飘窗上下两部分均采用窗系统,通过简洁的变截面铝型材,实现上下窗扇的平顺交接。节省材料用量的同时,既不会影响立面效果,也能保证气密性和水密性,提高门窗的整体保温效果。
△ 飘窗2节点设计

在百叶与窗交接节点构造处理中,我们希望让百叶尽量与窗系统齐平。最后通过开模定制的型材收边,并用隐框方式固定百叶,既解决门窗与百叶交接的问题,又实现效果上完整平实的幕墙效果。

△ 百叶与窗交接处节点设计

示范区策略:边角料商业裙房
变身销售展示中心

而我们认为,问题的关键不在于原有空间条件,还是在于设计能否跳脱传统的商业裙房范式,能否将不利因素化解转化。

△ 概念生成图
2.因为工期需要,此区域不能设地下室,所以在结构上与主体高层住宅脱离,形成不规则轮廓。
3.接着延续高层住宅的片墙和玻璃盒子的建筑语言,层层退后的墙体逐渐向两侧延伸,隔离消极场所因素,界定建筑自身的功能空间。
4.水平向玻璃盒子的穿插,与石墙面形成虚实对比,兼顾未来商铺物业用房和售楼处都需要的展示面。
5.样板房的空间以一个白色彩釉玻璃盒子叠加在一层体量之上,作为售楼处时兼具广告灯箱功能,未来销售结束后拆除简单易行。


△ 离缝石材幕墙节点
△ 底层玻璃盒子节点
△ 二层玻璃盒子

公共空间策略:三不管地带的一体化设计

住宅区公共空间包括入户门厅、公共配套等,较为常见的处理方式是以门厅作为室内外空间的界限,并通过路径和空间来营造归家仪式感。随着对居住环境品质的更高需求,底层架空的设计逐渐流行起来。架空后的底层平面自然形成半室外空间用于邻里交往、景观营造、社区活动等多样化功能,一定程度上解放了用地范围内的土地资源,也革除了建筑内外空间界限。

但在实际项目操作过程中,常因底层架空的归属边界不清晰,导致成为建筑、室内、景观三不管的盲区。因此在这个项目中,我们牵头整合了室内和景观的设计思路,建筑保证空间的连续性,地面造景交由景观延伸,吊顶设备由室内统一设置,最后图纸整合,实现一体化的高完成度空间。健身房、书房、公共厨房、亲子乐园等一系列归心配套功能在此实现。


局部抬高室外景观地势,利于空间层次的划分和收放。由室外的步道、绿化、水系和活动交往场所等开放活力的空间,过渡至较为私密安静的室内门厅空间,由景观渗透的公共空间既丰富住户的体验感,也与庭院的设计有所联系和呼应。


△ 底层架空空间
景观策略:化整为零,通而不透

中轴对称、空间围合、一览无余的中心大花园是住宅园区典型的景观通用手法。但限于本项目场地狭小,平铺直叙的设计方式只会显得空间更逼仄。所以我们提出花园要去中心化,化整为零。与建筑理念相通,通过平面曲折和高差起伏,曲径通幽和通而不透,多层次、精致的设计形态,产生视觉上的转换效果。



最后景观设计单位以书法的笔触为灵感完成了一个非常现代构成感的设计,通过一个连续的非线性折顶,勾勒出住户的生活和社交轨迹,并串接了若干个尺度宜人的小花园。

后期控制策略:深化设计,查漏补缺

从2016年开始设计,到2019年底的交付,涌璘府整个设计建造过程历时4整年,但在高周转背景下,实际的方案、扩初、施工图的设计周期只有5个月,为了赶节点,图纸的深度及广度都远远不足。所以在后续几年的建造过程中我们一直持续深化设计,在材料选择、节点处理、细节控制上进一步研究。尤其是最后半年,我们和业主一起完成了现场问题的查漏补缺。设计工作始终伴随营造全过程,是我们一直坚持的工作模式,后期服务不仅仅是服务,更是应对解决各种疑难杂症,保证项目的完成度和品质感。

8.1 阳台节点

△ 阳台平面大样
设计时控制阳台挑梁高度,保证阳台吊顶完成面和阳台门框等高。

△ 阳台吊顶的精细化处理
△ 彩釉栏板节点
综合考虑到实用性和外观效果,两户阳台之间的分户隔断,我们下半部分采用实墙,上半部分采用彩釉玻璃,住户实用性和私密性兼备,也保证了阳台界面的连续性。
△ 实体栏板与玻璃结合的分户方式

△ 室内栏板节点

天然石材是高端住宅的主要外墙材料,与大量的玻璃共同构成更有识别性的立面形象。


△ 4,5#楼 南立面材质分析

△ 多种比对石材和蓝眼睛石材

经过多轮现场实体样板比对,我们选择了暖灰色的石材。并以两个不同的模数,进行了错缝划分,竖向拼接,强化垂直感。
△ 离缝石材幕墙节点



在不突破限高的基础上,通过顶层设置构架,以折板的语言将外立面幕墙延伸到设备层,将电梯机房隐藏到了立面的背后。
△ 高层楼顶电梯房
结语

其次,做住宅设计需要“接地气”,开发商不是最终用户,因此我们需要面向大众,贴近生活,只有尊重终端用户的意见,才有可能赢得市场。324套大户型,8个月清盘,作为2017年杭州唯一均价超5万+的“光年盘”,涌璘府成了当年的杭州楼市大赢家。虽然市场销售状况取决于多方因素,但这其中,好的设计一定有相应的价值溢出。对于建筑师而言,房子卖得好,总归是一件令人愉悦的事,也会因此获得业主更好的信任。

同时,在经历这个项目的全过程后,我们深刻认识到好业主的重要性,以及在设计过程中和业主之间信息互动的重要性。不同的业主、不同的诉求,用不同的策略来灵活应对,在充分尊重诉求的前提下赢得业主的信任,在信任的基础上才会有平等的对话权和引导权,分歧碰撞往往会催生出更好的产品。

△ 单体模型
诚然在国内大背景下,资本和市场的价值取向、家庭生活方式的固化、人员构成的稳定性等确实让住宅在规划及建筑本体设计创新上阻力重重,但个人认为在住宅设计中建筑师还是有责任保持一定的创新意识,逐步引导健康的生活方式和居住文化。
因为,对于一个建筑来说,所谓设计的创作空间可能远远不止一个层面,包括了从前期概念、规划布局、空间结构、到立面形态、材料构造、技术实施等,针对项目不同的条件,总有机会寻找到合适的爆发点,在限定中寻求自由。住宅产品力的迭代,一定还是需要创新力来推动实现。
2020年3月于杭州
撰文/主创:孟凡浩
景观设计:IPD澳洲艺普得
幕墙设计:浙江中南幕墙科技股份有限公司
建筑面积:77078㎡
业主:融创东南区域集团
摄影:陈曦、李伟、黄金荣、周凯、王骁、光影

孟凡浩
本资料声明:
1.本文为建筑设计技术分析,仅供欣赏学习。
2.本资料为要约邀请,不视为要约,所有政府、政策信息均来源于官方披露信息,具体以实物、政府主管部门批准文件及买卖双方签订的商品房买卖合同约定为准。如有变化恕不另行通知。
3.因编辑需要,文字和图片无必然联系,仅供读者参考;
搜建筑·矩阵平台
作品展示、招聘发布、特色建材
合作、宣传、投稿
联系微信:soujianzhu006
推荐一个
专业的地产+建筑平台
每天都有新内容
扫描二维码关注

微信公众号“搜建筑”(ID:sjz9999)


