▲ 更多精品,关注“搜建筑”
市场在向品质住宅转型,产品设计更加注重居住体验。
产品始终都是房地产开发企业赖以生存和发展的根本,也是所有企业最为核心的市场竞争力。
说到底本质最终还是产品。
在广州有一家房企用行动告诉我们,在对的时间做对的事情十分重要,尤其在后疫情时代,人们对当下的生活产生了更多思考。住宅可能不再是考虑平面内无限尺度“以大为美”的扩张,回归到对家庭活动空间、阳光对流、分区私密、景观追求上。
所以它在户型的研发上,实现了一层一户,且没有一味地扩大面积,把面积控制在200㎡以下,将产品不断完善、创新、升级,提高用户体验,拓宽了对大平层户型的想象力。

▲效果图
说到大平层,它相较于普通平层来说,面积更大,既是优势同时也是设计难点,不能简单地进行拼凑,要对空间具有更强的把握,否则很可能导致空间功能划分不合理,所以在进行平面布局时要进行反复的推敲。
“高层、一层一户、大面宽、全景观”的大平层受到了塔尖人群的强烈追捧,如上海汤臣一品、绿城黄浦湾、北京融创壹号、缦合北京、深圳湾壹号、深圳华侨城天鹅湖无一不是身处繁华都市的豪宅。
而我们本次要说的产品区位非常特殊,即是身处繁华都市,又处在山河环抱中,很难想象一个城市中心的示范区可以私藏这一片天地。

▲示范区实景图
而他的产品基本囊括了这些标杆项目的所有优点:
• 建面约140-190㎡一层一户,超比300㎡+的墅级享受;
• 一层一户设计,打造一层一世界 ;
• 独梯独户,私享阳光电梯厅;
• 四角巨幕270°环幕视野,IMAX级的感官体验;
• 建面约46㎡无柱端厅,实现多元场景;
• 多套房设计,建面约49㎡的奢华主卧套房;
• 靠山、望城、临水,别具一格的“无价风景画”;
......
对于这个特殊的项目,有上海柏涛建筑设计有限公司(Shanghai PTArchitects)陈希、日本津岛晓生设计事务所(TDSTUDIO)津岛晓生、近境制作空间设计咨询(上海)有限公司唐忠汉、上海无间建筑设计有限公司吴滨、加特林(重庆)景观规划设计有限公司灌输了他们的理念,下面我们来仔细看看这些创新与升级。
真正的大平层,一定是将生活的场景带入到建筑大尺度以及多维空间中融合。
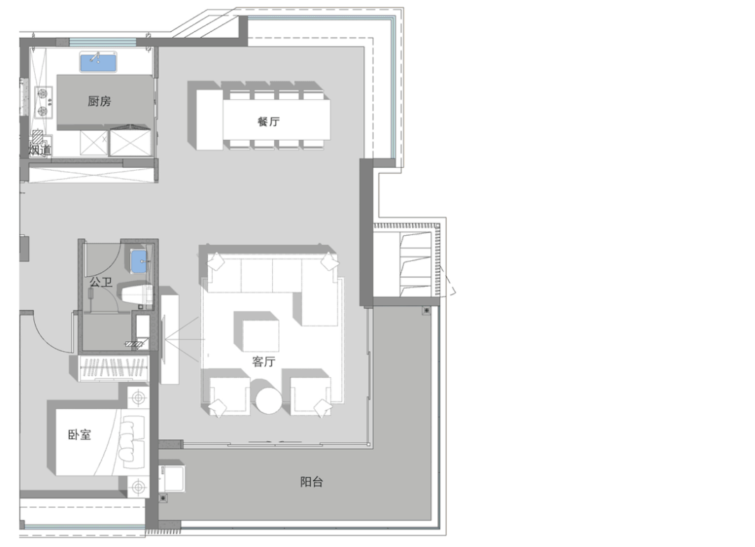
这次户型(建面约140㎡—190㎡)从功能、尺度、空间延展、精细化设计等方面上都具备可进化性,设计了多重承载性的可变生活空间。
今天我们就以建面约190㎡为例解析一下。
这个产品建面约190㎡的尺寸平层匹配了城市象征的相同设计,我相信,全国也找不出几个。
因为设计通过专业考量,重视场地特有的景观与后疫情时代的背景,平衡了户型与四角天幕、6+面宽等等设计元素,打造出将生活的场景融合到建筑大尺度以及多维空间中的真正大平层,体现出大平层的标准不止于大。
1、一层一户设计,打造一层一世界
印象中市场上一层一户大多是300㎡以上的超级平层,比如纽约中央公园的One57、汤臣一品、深圳湾一号……都是一层一户设计。

▲建面约190㎡户型私梯入户—方案示意图(最终以报批为准)
本次项目同样采用一层一户设计,尽享私密 ,可以说当下市场上几乎没有在200平以内做到一梯一户的,真正实现了200平以内的独梯独户,做到了一层一世界,实现了360°无遮挡采光。
这样的梯户比,关乎里子,也关乎面子。
2、私梯入户,享全明阳光电梯厅
说到一层一户一定会想到私梯入户,但是并不是所有的私梯入户都做到阳光电梯厅,(因为阳光电梯厅有一定的设计难度和需要的背景),即使日清设计的南湖天著536㎡空中庭院的电梯厅都无法做全明设计。
本项目打造建面约21㎡的专属电梯入户,让业主拥有超强的私密性和归属感。值得一提的是,每户门前的电梯厅均有窗户,让电梯厅告别昏暗闭塞,享受全明的归家之路,赠予主人一种归家的安全感和尊贵感。

▲阳光电梯厅效果图
另外电梯入户厅还可作为外界与室内的缓冲区,起到收纳、清洁的作用,在疫情反复的当下,真正能做到“无接触”式归家,让室内更安全。
3、建面约46㎡阳光端厅+270°L型转角阔景阳台
端厅几乎是大平层豪宅的身份证。
建面约28.4㎡的客厅+建面约17.6㎡的餐厅,形成无柱端厅,集待客、娱乐、休闲于一体,还可以容纳精神层面的多种享受场景,或是改造一处成为游戏区、健身区、收藏区,或是偶尔打造成一座私人音乐厅,或是全家人一起举办各类party……百变端厅,制造强烈的空间互动感。
客餐厅一体化的设计,对于分区的界定,不再仅仅局限既定的格局性,而是打破了两个区域的界限,让家居空间的设计有了更多可能。

▲建面约190㎡户型端厅示意图
此外在格局上,还将厨房与餐客厅分离,如此一来,建面约46㎡的端厅+建面约16㎡转角超大阳台+约6.5m转角大飘窗,形成LDB一体对流,让居住的舒适感随着大尺度和清新空气、和煦阳光被无限放大。

▲客厅效果图
端厅+270°转角阳台设计,将阳台-客厅-餐厅共处一个开放空间,围绕人们的日常变化及所处空间的叙事性来作为延展,探讨生活中更多可能性的存在。
这样的多元场景,保证了空间和视觉的和谐统一。
4、四角巨幕270°转角采光:四个L型转角景观面设计
市面上常见的飘窗,几乎都是一字型飘窗:单面的采光面、单一的设计方式、较小的容纳空间,比起转角飘窗逊色不少。
因为做一个270°转角飘窗在建筑上就需要花费很大的力气去实施,更别说做多个,比如永威上和琚的610㎡户型仅仅只做了阳光四角设计,并没有做出真正的270°转角飘窗。
但是这个产品做到了,而且还做了四个270°转角设计,这在全国市面上屈指可数。还进一步创新,将窗地比做到了约0.46-0.54,要知道普通住宅的窗地比约为0.21-0.23,这样直接把标准提到一个新的高度。

▲建面约190㎡四角巨幕示意图
他们是怎么做到的呢?
那就是在客厅、餐厅、卧室、浴室都设计了L型270°的转角玻璃窗,采用无柱大玻璃,这样精细的设计细节去保证景观面,形成四角巨幕震撼景观面,直接实现了四倍视野。
L型阳台和L型飘窗,景观视野就无需多讲了,再结合空间的功能化,在未来能够落位更多的生活场景,如家政功能、休闲功能皆可满足。

▲四角巨幕景观面效果图
其实市场上这么做飘窗规划的其实不太常见,倒不是有多难,但是只有尽可能这么去做才能带给业主从未有过且又真正需要的生活场景。
5、南向约20米六面宽景观面,全屋360°景观面
为什么追求多开间、大面宽?看看这个户型南向的景观面就懂了,这是目前示范区的拍摄角度,也和之后户型与帽峰山的距离相近,可以看到环山而建景观的震撼,大面宽带来的不只是采光、通风,还有一块巨幕的山景资源。

▲建面约190㎡南向景观面示意图

▲示范区实景图
本次产品,在同等面积下,做到了六面宽景观面+约13m转角阳台,拥有南向约20m超长采光面,引邀更多的阳光入席,使得室外空间在视觉感官上得到了延伸,将自然景观一直延展到了室内。
采光面升级拉大,在通透明亮的巨幅落地窗前,24小时光阴流过,移步换景。
6、奢华多套房设计,打造出一个高度聚合又能彼此独立的家庭化空间
除了足够宽敞的公共活动空间,卧室设计的功能性也很强。首先多套房设计,也是当下国内标杆大平层项目的特点。
重点来说一下主卧套房,改造后可以达到建面约49㎡的奢华主卧套房;建面约8.3㎡集收纳、换衣甚至化妆于一体的衣帽间,可以满足各种想象;建面约8.5㎡的独立四功能分区主卫,干湿分离厕所、双台盆设计、淋浴与浴缸双区分,满足不同的洗浴需求。
主卧还可以拓展空间可添设茶台或者观山阅读区,还可增加收藏柜,更是集雍容大气与艺术细节于一体,让居住品质得到真正的提升。

▲建面约190㎡主卧套房示意图

▲主卧效果图
约21.9㎡主卧+约10.3㎡的套卧可以同时兼顾两代家庭成员的需求,精心放大主人生活空间的同时也保证了居住的隐私和尊崇感。
本次产品比肩一线豪宅,除主卧外,还有一个儿童套房或老人套房,让每个家庭成员都能大限度地享受空间场域。
在大平层产品同质化的时代,每一项创新,都是引领时代进化的伟大脚步。
户型设计是一个开发商的底线,再怎么用心都不为过。
然而,它的惊喜还没结束。
建面约190㎡产品南、北、东、西四面均为270°转角黄金视野,呈现出四倍的视野面,入户视野无堵,南望帽峰山、北望流沙河公园,站在这里,项目内部的园林景观、外部的绿山美景尽收眼底。

▲山景图
360°环幕景观视野,家中直瞰山景,让室内的居家空间与室外的特色山地景观形成非常完好地融合。这样在同一平面上,空间尺度得到延展,以此实现居住实用性。
在外左右世界,在内左右视界,把山景装到家里,也不过如此。
如此优秀的企业想必大家一定很好奇,那就是越秀地产,项目是越秀地产*湖北联投*知识城集团联手打造的越秀联投知识城·居山涧。
我们可以看到,以这些元素为基点,越秀地产正在开启一个产品力快速迭代的周期。
结语:
通过产品升级完成对人居理想的进化,从空间物理层面到达生活理想层面的居住品质升级。
在品质发展的必经之路上,面对存量市场时代的到来和消费者理念的转变,回归“产品”成为行业共识。
1、本文为建筑设计技术分析,仅供欣赏学习;
2、本资料为要约邀请,不视为要约,所有政府、政策信息均来源于官方披露信息,具体以实物、政府主管部门批准文件及买卖双方签订的商品房买卖合同约定为准。如有变化恕不另行通知;
3、因编辑需要,文字和图片无必然联系,仅供读者参考; 本资料制作时间为2022年06月。
推荐一个
专业的地产+建筑平台
每天都有新内容
扫描二维码关注

微信公众号“搜建筑”(ID:sjz9999)
合作、宣传、投稿
请加小编微信:soujianzhu006

