▲ 更多精品,关注“搜建筑”
延文化脉络,构建生活美学
柘壹设计
南船北马、九省通衢
/
历经千年历史岁月雕琢的江苏淮安,依水而生,因水而盛。在这片多情而传奇的土地上,涓涓流淌的运河承载着亘古悠长的壮丽史诗,多彩的文化记忆与生活图景,在一代代的相传歌颂中,连绵不绝,生生不息。
“作为一座千年古都,淮安所承载的文脉记忆,是历史的,也是当下的。而之于设计,一方面,我们希望借以文化的根骨去融入在地;另一方面,站在城市未来人居的高度上,我们所关注的,是在美学营造之外,对新与旧、传统与现代的突破及赋新,对一种多元生活形态的包容与创造。”柘壹设计创始人王承超说道。
余秋雨在《文化苦旅》曾写道:“我心底的山水并不完全是自然山水,而是一种人文山水。这是中国历史文化的悠久魅力和它对我的长期熏染造成的,要摆脱也摆脱不了。”
自古以来,京杭运河滋生孕育下的水文化,作为淮安在地的人文精神符号,渗透于历世历代人们的心中。而今时光流转,如何探寻历史与当下的联结?在艺术解构的崭新语境中,“水”成为了作为空间叙事的轴心。从简洁雅致的水滴雕塑,到水光潋滟的晶莹灯饰,设计师化形为韵,一座城市的人文底蕴,在艺术的语言与审美的想象中活灵活现。
设计的本真,是引导人与空间的对话,是生活与空间的契合。正如王承超所言:“空间精神的一半,是在艺术形式层面的赋予,而另一半则是在美学之外,对真实生活内核的诠释。更确切地说,所谓的空间设计,实则是在规划生活、实现生活。”
阅读洽谈、咖啡烘培、静坐观赏......不同空间形态、动线节奏、功能场景的营造,在场域秩序的串联间,铺叙着节奏的诗意,导演着生活的韵律。
游走至空间的另一侧,是一处趣味十足的亲子游乐区。“在这里,我们将重点落于寓教于乐。不同类型的书籍、手绘的卡通插画、可爱的卡通玩偶,皆呼应着儿童的兴趣关注点,引导着人们在日常的家庭互动间,遇见生活的美好。”
正所谓一花一草,一景一物,缀于心,人们的感知,总是被自然与物件中的细微之美所牵连。当剥离掉宏大的设计框架,肆意生长的翠绿枝叶、花纹陶土小碗、踩着云朵的艺术人偶,便成为了诠释生活的具象注脚,它们的存在,关乎艺术的质感,更关乎内在隐含的生活趣意。
身处钢筋水泥的当代都市,对生活的想象总是充盈着无限的可能,空间的营造亦然。对于设计师来说,空间的意义不止于其本身,它与人们的精神活动紧密相连,承载着多元而丰富的体验与感知,进而让想象得以继续。
于是,在设计师的笔下,这里有灵动的光影与自然,有丰盈生活情调的艺术香薰,还有社交、阅读、休憩等可以自由切换的多种使用模式,其中的每一幕、每一处角落,皆定格为对生活的无限畅想。
“空间情境的演绎既是一种意图的营造,又是对生活的合理表达。在这其间,无论色彩与材质,抑或功能与美学,均借着一种仪式感的设定,最终指向于真实的生活。”
一座城市的印记与灵魂,蕴藏在过往的历史记忆中,又与当下的生活图景相呼应。在中海地产·淮安·九樾,在地运河的水文化与多元有机的社区生活场景,透过设计师的赋新与再造,达成一种艺术化的交织与共鸣。也因此,步入这里,便走进了一场宏大而细腻的空间叙事,有生动而独特的城市风情,也有对未来美好生活的崭新憧憬。

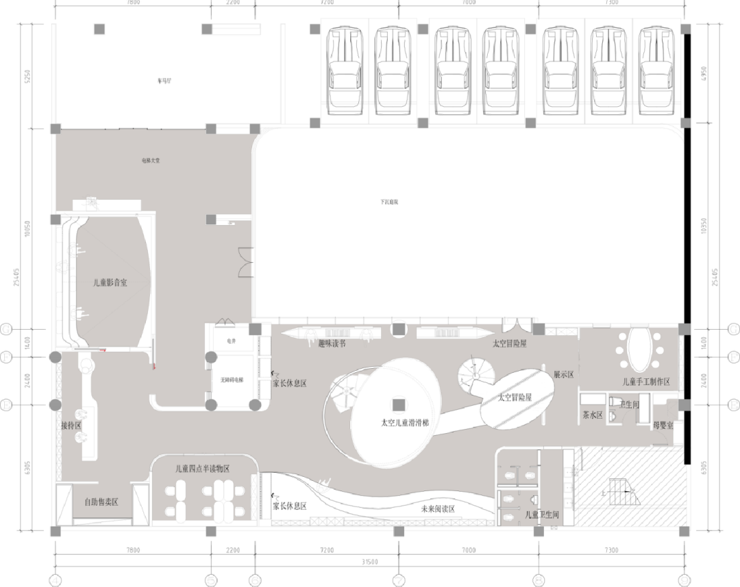
▲ 负一层平面图

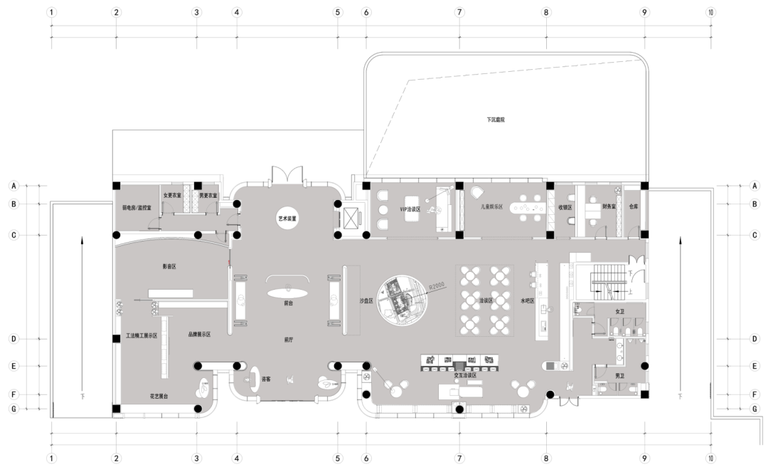
▲ 1层平面图

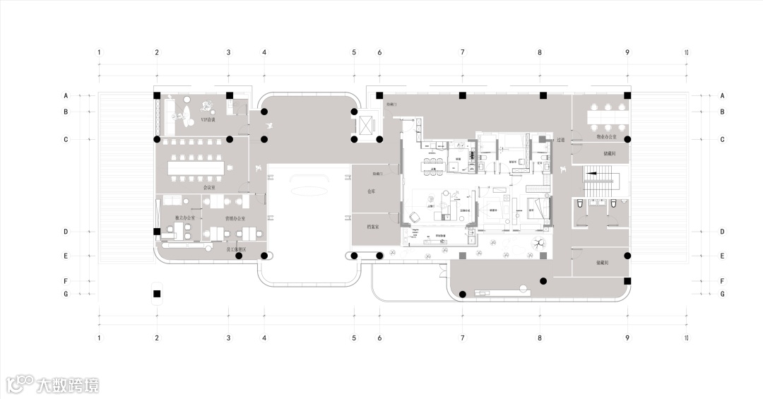
▲ 2层平面图
项目信息
ABOUT THE PROJECT
——
项目名称 | 淮安中海九樾售楼处
项目位置 | 中国、淮安
业主信息 | 中海地产(淮安)有限公司
设计面积 | 1760m²
设计时间 | 2021.09
完成时间 | 2021.12
硬装设计 | 深圳柘壹设计
软装设计 | 深圳柘壹设计
建筑设计 | 上海联创集团
灯具品牌 | 西顿照明
施工单位 | 瑞鑫杰建设
项目摄影 | 史云峰
视频拍摄 | 蔺立峰
特别鸣谢 | 中海宏洋集团规划设计部:魏刚、李继东、老钻红、郭洋磊;中海宏洋地产公司设计管理部:陶建平、王育、刘明星
柘壹设计创立于深圳,根植于地产、商业、办公、住宅等领域,坚持以用户为中心的产品视角,对产品背后真实的生活需求追问到底,为客户提供售楼处、样板房、精装标准研发、架空层会所、商业办公、私人住宅等硬装、软装及灯光设计一体化解决方案。
做美学之外的设计,是柘壹设计的核心主张。作为深谙产品策略和甲乙方思维的新型创意服务机构,汇集了来自知名地产公司和著名设计机构任职背景的优秀设计团队,致力于突破单一的美学思维定式,发掘项目的独特灵魂和内核,成为超越流行风潮的空间营造者和生活引导者。在设计中,我们横向评估、纵深推导,围绕研究、设计、验证的三维一体逻辑,在复杂叙事之中洞见生活本真,超预期满足客户的价值诉求。
源于地产,更懂地产
作为中国当代建筑室内设计师,他拥有在知名地产商担任全国室内负责人、在知名乙方设计公司担任设计总监的多元背景,擅长以兼顾甲、乙方需求的解题思路,从全局管控、细节优化的系统策略出发,以设计不断实现产品力的赋新以及场景体验的进阶。同时,长期游学海外的丰富经历,使他构建起一种先锋而立体的艺术世界观,进而更透彻地洞察不同产品核心,发掘精神趣味,延展商业价值。其作品呈现出国际化的时代品质和不拘一格的审美调性,涵容当代设计的精度,升华文化精神的尺度。
本资料声明:
1.本文为建筑设计技术分析,仅供欣赏学习。
2.本资料为要约邀请,不视为要约,所有政府、政策信息均来源于官方披露信息,具体以实物、政府主管部门批准文件及买卖双方签订的商品房买卖合同约定为准。如有变化恕不另行通知。
3.因编辑需要,文字和图片无必然联系,仅供读者参考;
推荐一个
专业的地产+建筑平台
每天都有新内容
扫描二维码关注

微信公众号“搜建筑”(ID:sjz9999)
合作、宣传、投稿
联系微信:soujianzhu006
阅读原文:“柘壹设计”更多精品


