科图设计致力于大健康产业一体化设计多年,随着团队的扩容,我们开启了双办公区工作模式。在新办公区设计过程中,我们探索后疫情时代创新型办公的可能性,跳出既定的视野与设计圈层,将公司倡导的企业文化“高效&快乐”融合进空间设计中,模糊工作与休闲的明晰边界,尝试寻找一种弹性空间状态来包容不同功能需求,同时叠合科技与健康生态的多元场景,营造时代转型需求「有温度的绿色办公生态圈」。
踏入电梯厅的那一刻,温润的木质盒子形成包裹,迎面粗糙的白色石材背景灵感来源自中式园林的照壁,暖色线性灯光引导形成归家之仪式感。电动门缓缓打开,简洁克制的几何空间映入眼帘,设计师以分割精确的比例线条,贯穿视觉元素,不同材料的碰撞形成戏剧般的效果。坚硬的、柔软的、透明的、温润的,在光的跳跃中慢慢融合。整面透明的水晶砖在光线的穿透下波光粼粼,犹如晴天荡漾的湖面,时光静好。
前厅悬挂的艺术创作,由多位科图建筑师亲手绘制而成。以纯粹沉稳的黑色为画面基底,中性、中立的白色线条自成态度的发散、重组与聚合,线条与线条之间建立起紧密的几何联系,让画面看似自由零散,实则有序,给人留下充满探索感和神秘感的独特印象。犹如建筑师工作过程中,面临着千头万绪的不确定性与复杂多变的可能性,我们需要不断探索与发现找出最适合项目的解析方式。
咖啡区是承担接待以及公司分享的场所,功能的多样性赋予其多重身份,几何的分割结合不同材质形成结构的框架,以体块成为空间审美品质的铺垫。人们在设计空间中感受到的设计,终将归于时代留痕,价值生长。
平时这里作为员工的茶水、休息、就餐区域,同时也兼顾了临时接待、开放式的洽谈讨论功能。员工的生日会、节日活动、主题沙龙都在这里举行。这里就像人体的心脏功能,链接了各个区域和部门,家庭会客厅般的空间效果,将大家有机的联合在一起。
为了达到商业咖啡BAR的氛围,设计师安排了随处可见的杂志书籍,绿意盎然的空间点缀,柔缓舒适的背景音乐,鼻尖萦绕的静谧香氛,阳光通过窗帘的过滤,舒缓的洒向地面,绿叶在微风中轻轻摇曳,自然的气息充盈在空间中肆意流淌。就连科图设计的吉祥物猫咪图图,也在追逐着光影,岁月静好。
书架上悬挂的章印艺术创作,也是由科图小伙伴亲手制作而成。五颜六色,大小不一的掌印在有序的栅格中汇聚,凝练而精致,传达出公司关注每一位员工的成长,接纳不同个性与思维,鼓励不同的创意与发声。与廊道中的照片墙遥相呼应,烘托出公司开放、有趣、鼓励互动的文化氛围,打造一个能激发更大协作意识和创造力的舒适空间。
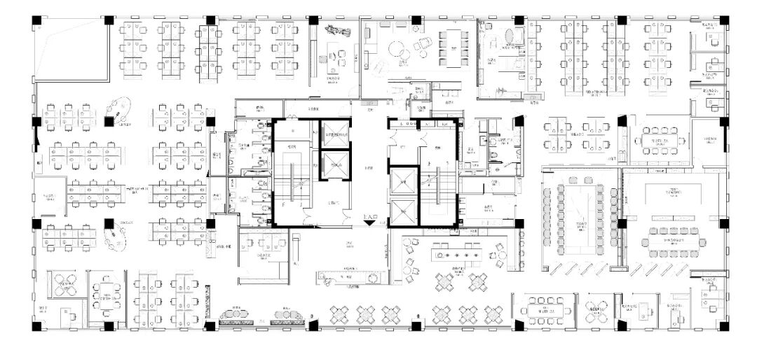
会议室以多个“ 玻璃盒子 ”方式植入到整个空间,动态透明的玻璃区隔,使原来空旷而均质的空间,因界限与功能的模糊化,衍生出复合错落的空间秩序。
方正的空间限制了想象,但也被设计师赋予新灵感。设计以“ 游走 ”的空间形式串联,承序游园之感,让光线和植物在空间中渗透。整个公共办公区形成一种流动的空间格局,给人以“ 无边界 ”回归本质的空间体验。
黑白灰与木质的比例和光线在矩形体块上形成的韵律感,让空间充满着吸引力。依据功能区域划分而形成的路线,是空间表达的明线;依据视觉引导的
动线,则是心理与行动牵引的暗线,大至建筑空间,小到元素的转折,都是为这一策略服务。
摒除传统的顶面照明方式,只保留空间的氛围照明,而选择更为友好的桌面智能灯光系统,既是为了给员工营造更好的办公体验,同时也为了达到节能绿色的可持续目标。一切都是点到为止,简洁克制。
“ 生活体验厅 ”是本项目独特的一个设计之处,设计师希望通过“ 场景化 ”的设计,传达科图对健康住宅的探索精神,暗含通过新技术新模式探寻
人类未来的健康生活方式。产品体验厅是一个独立的空间,采用大面积柔和的肌理质感材料,传达出质朴简洁的观念。独特的入户洁污分区设计,体现了对于后疫情背景下生活的新型方式。
全屋智能化控制的先进理念,杜绝了传统接触式的操作方式,语言成为空间主要的控制方式。分类细致的灯光模式,结合不同功能的使用场景,满足疫情时代居家办公的各种场景要求。空间可以是温馨的,也可以是明亮的,可以是会议模式,也可以是会客模式。参观者在这个沉浸式的空间中可以感受到宁静与平和,科技与健康,也可以感受到科图设计对于健康领域的关注度和前瞻性。
为让办公空间打造成一个可以呼吸的绿色空间,空间设计时重点考虑了员工的“归属感”和“互动性”。同时,整体空间以简约的形态传达“环保、可持续”的绿色理念。混凝土立柱保留天然的质地,与天然辅料相互结合,环保且给人以稳重之感。搭配多品类、层次丰富的绿植:金镶玉竹、小叶金桔、吊钟、马醉木、绿萝、肾蕨、狐尾天门冬、鸟巢蕨、鹅掌财、天竺桂、马拉巴栗、昆士兰伞木……每一颗都是景观组同事精挑细选。让空间营造出 “轻松与严谨”、“柔和宁静”,且又绿意浓浓的氛围感。
图图和小橘原本是流浪猫,被公司收养后,成为团宠。在半年时间里茁壮成长,每一个角落都有着它们自由的身影,为小伙伴们创造了不少的欢乐与轻松,恰如其分地缓解了紧张的办公氛围。
不管是空间的营造,还是萌宠的喂养,以及绿植的选育,一切都是设计师们精心的安排。希望绿色的空间能帮助小伙伴们快速进入属于自己的办公状态,而当劳累时,可以起身浇花,除草、逗猫、喂鱼……不管繁杂的工作如何变化,绿色空间都能恰如其分地让思绪轻松流淌,帮助团队有机地不断向上成长。
科图设计是实现“新时代大健康优质生活”这一理念的重要参与者和引领者
在提供医疗、养老、医养结合、康养旅居等大健康产业领域的整合设计服务的这条路上,科图设计坚持初心,并不断地探索与进取,在未来也将继续保持极致追求的热情,为医康养消费需求创造出更多、更好的产品。位于成都的科图设计总部办公新址,将以充满阳光,健康活力的形式伴随团队走得更深、更远。
服务内容:室内设计、软装设计、标识设计、艺术品设计
本资料声明:
1.本文为建筑设计技术分析,仅供欣赏学习。
2.本资料为要约邀请,不视为要约,所有政府、政策信息均来源于官方披露信息,具体以实物、政府主管部门批准文件及买卖双方签订的商品房买卖合同约定为准。如有变化恕不另行通知。
3.因编辑需要,文字和图片无必然联系,仅供读者参考;
合作、宣传、投稿
联系微信:soujianzhu006

推荐一个
专业的地产+建筑平台
每天都有新内容
扫描二维码关注

微信公众号“搜建筑”(ID:sjz9999)
阅读原文:“科图设计”更多精品