▲ 更多精品,关注“搜建筑”
推荐关注来源微信:困建筑

▲金隅•紫京云筑|地下车库效果图
说明:本文仅针对拿地及方案阶段地库设计
01-一言不合就要排地库

曾经的拿地:总图+指标+0-5W
如今的拿地:全套文本+大概率0
02-阶段需求

色块框好,不然有人看不懂
重点重点重点PS:
现阶段建议给自己合理预留部分面积(多排至少100-150个车位),毕竟,到落地阶段,会因设备用房及人防损失部分车位,到时候你说车位不够,需要加面积,会出事

2.地库层高层数
关于层高,现在每个甲方都有自己内部的标准,基本都在3.6M-3.9M,目的是控制2.2M的车位净高,这个最后在PPT上注明,层数的原则是能做一层不做二层,若有二层,应结合人防规划。(人防放到负二)


3.车位数/单车位指标
按当地规范计算出需配的车位,并明确是否可以部分放置在地上,以减小地下室面积。
单车位指标现阶段不管你图面排下来有多低,建议报告上不要低于35㎡/辆,不然后期你可能控制不住。(给自己的优化留点余地,有的地块不规则另说,更高)

03-上手
背靠背:2.4*5.05M(宽裕点都按5.3更好)
PS:对品质要求较高的项目,可选用2.5Mx5.5M与2.6Mx5.6M的大尺寸车位,当地有特殊规定按当地标准执行,现阶段不考虑微型车位子母车位
2.车道
没有特殊需求。均按5.5M

3.出入口
见下表
基本上你的车位数超过500辆,建议设置3个出入口,一大两小,大口双向车道≥7M,小口单车道≥5M(甲方有标准按它的来)



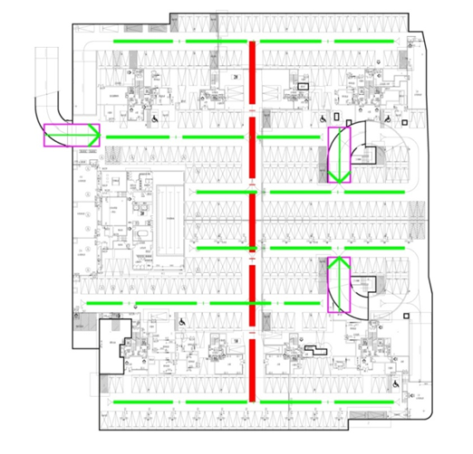
这个阶段讲究快速平铺,看看有没有大问题,排布原则:
01.地下室车辆停靠方向应垂直于建筑面,并尽可能不转变方向

02.避免单面停车
03.尽量减少尽端停车(尽端车位不大于6-8辆)
04.适当设置竖向贯通车道

05.汽车坡道入库后应能快速到达主流线,尽可能控制在3个柱跨范围内

4.总图调整
有时候差个几百MM就可以多一排,果断去微调总图楼间距。
间距公式:5300+5500+5050(5300)*2+5500+.....+5050(5300)*2+5500+5300

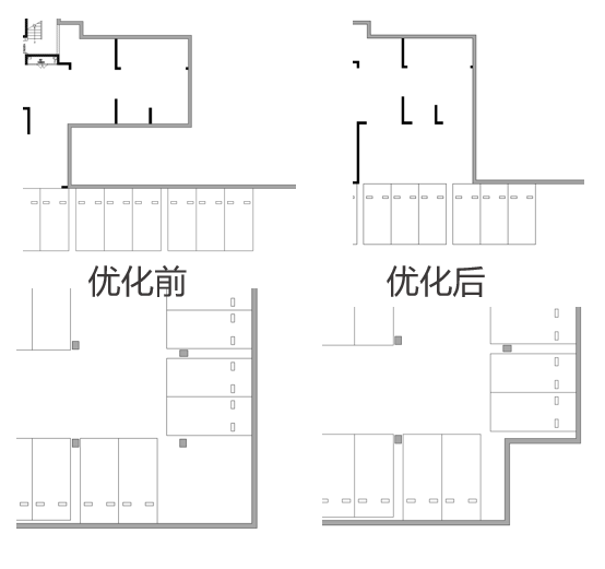
5.收拾图面
大体布完了,根据车位排布情况,进行地库轮廓的规整,对人防进行范围框定,设备用房都放主楼投影下,画个矩形,标设备即可,面积不管,证明你考虑就行。

人防布置:底层原则
06.测算阶段没事别上机械车位
07.标注,导图
深化一下,放进PPT里,完成!改?不存在的

注:本文所引用案例图片版权归其来源网站所有
本资料声明:
1.本文为建筑设计技术分析,仅供欣赏学习。
2.本资料为要约邀请,不视为要约,所有政府、政策信息均来源于官方披露信息,具体以实物、政府主管部门批准文件及买卖双方签订的商品房买卖合同约定为准。如有变化恕不另行通知。
3.因编辑需要,文字和图片无必然联系,仅供读者参考;
推荐一个
专业的地产+建筑平台
每天都有新内容
扫描二维码关注

微信公众号“搜建筑”(ID:sjz9999)
合作、宣传、投稿
联系微信:soujianzhu006


