▲ 俯瞰建筑与滨水广场 摄影 ©榫卯建筑摄影 SFAP
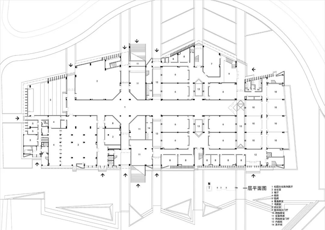
江西建设职业技术学院图书信息综合楼总建筑面积31266平方米,是包含图书馆、行政楼、风雨操场、网络教室、餐厅等多功能的校园综合体。基地位于校园核心区域,处在校园中心景观轴线之上,南侧为校园中心景观湖,北侧为山体公园。
Library and Information Complex building, with a total construction area of 31,266 square meters, is a multi-functional campus complex including a library, administration building, wind and rain playground, network classroom, restaurant, and other functions. This building is located in the core area of the campus, above the central landscape axis, with the central landscape lake in the south and the mountain park in the north.
▲ 建筑东北向鸟瞰 摄影 ©榫卯建筑摄影 SFAP
▲ 高低起伏的折顶,将几大功能体块组合成一个整体 摄影 ©榫卯建筑摄影 SFAP
用地十分紧张且不规则,建筑则需容纳图书馆、办公、风雨操场等多种功能,人员流线复杂,这是本项目最大的挑战。如何弱化大体量的建筑对于南侧中心湖与北侧山体公园的空间阻断和隔离,来保持校园南北景观的延续和视线的贯通,也是亟需解决的问题。
Challenge. Planning land is very short and irregular, the building needs to include a variety of functions such as a library, office, wind and rain playground, etc., complex design streamline, which is the biggest challenge of the project. How to weaken the spatial blocking and isolation between the central lake in the south and the mountain park in the north by the massive building, so as to maintain the continuation of the north-south landscape of the campus and the connection of sight is also an urgent problem to be solved.
▲ 南向透视图,行政楼正对南大门 摄影 ©榫卯建筑摄影 SFAP
设计借鉴传统“冷巷”的智慧,引入五个南北向的夹缝天井,将建筑体量化整为零,划分为六个条状建筑,不同的条块对应不同的功能。纵向院落也将南北向景观和视线联系起来,使建筑成为南北校园空间对话的重要媒介。同时不同功能块通过相互之间的天井院落促进自然通风采光,摒弃空调,实现低造价下的被动式环保理念。
Strategy. Five north-south crevices are introduced, the form of which comes from the traditional "cold alley". So the building is divided into six strips, with different strips corresponding to different functions. The vertical courtyard also connects the north-south landscape and sight lines, making the building an important medium for the north and south campus. At the same time, different functional blocks promote natural ventilation and lighting through the courtyard between each other. So as to achieve no use of air conditioning, low cost of passive environmental protection.
▲ 景观步行道北望综合楼 摄影 ©榫卯建筑摄影 SFAP
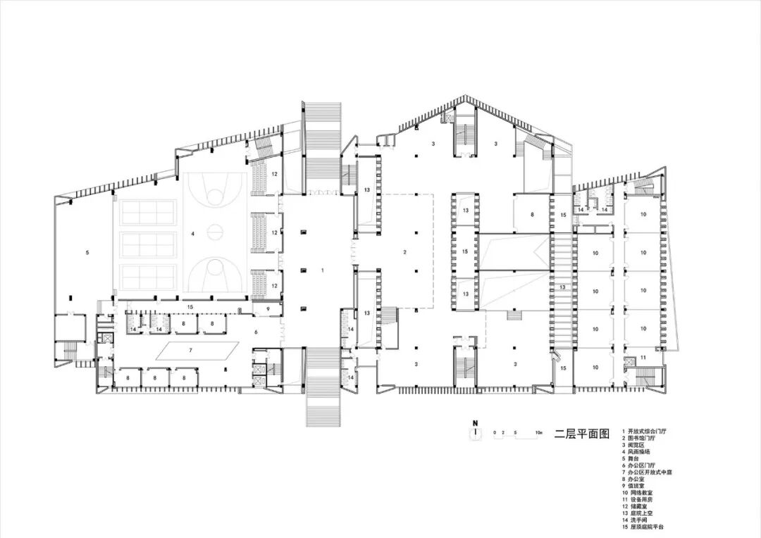
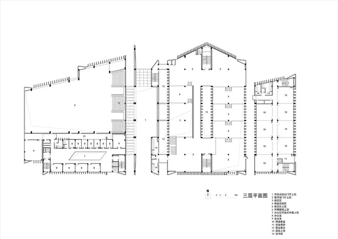
为解决图书馆、行政楼、风雨球场三大功能块的交通和动静分区问题,建筑师在三者之间设置了一个中心共享交通体,通过这个开放式综合门厅进行分流来解决复杂流线的问题,同时将“动”的风雨球场和“静”的图书馆严格分隔开,避免相互之间的噪音干扰。
In order to solve the traffic and activity zoning problems of the library, administration building, and wind and rain playground, a central area is set up between them. The problem of complex circulation is solved by diversion through this open integrated area. At the same time, the "moving" wind and rain stadium and the "quiet" library are strictly separated to avoid noise interference between each other.
▲ 天井院落促进自然通风采光 摄影 ©榫卯建筑摄影 SFAP
▲ 开放式综合门厅将南北视线贯通 摄影 ©榫卯建筑摄影 SFAP
纵向条块在南侧保持齐平,北侧平面根据路型进行斜切和转折的变化,屋顶则通过高低起伏的折顶将几大功能体块组合成一个整体,南北立面再覆以间距、进深不等的混凝土竖向百叶,强调建筑的整体性和标志性。
The façade. The longitudinal volumes of the building remain aligned on the south side, while the north side cuts and turns according to the form of the road. And the roof combines several large functional blocks into a hole through the roof of ups and downs. The north and south facades are then covered with concrete vertical louvers of varying spacing and depth to emphasize the integrity and landmark of the building.
▲ 从综合门厅南望景观湖 摄影 ©榫卯建筑摄影 SFAP
▲ 东南侧夜景鸟瞰 摄影 ©榫卯建筑摄影 SFAP
设计单位:华南理工大学建筑设计研究院有限公司 陶郅工作室
本资料声明:
1.本文为建筑设计技术分析,仅供欣赏学习。
2.本资料为要约邀请,不视为要约,所有政府、政策信息均来源于官方披露信息,具体以实物、政府主管部门批准文件及买卖双方签订的商品房买卖合同约定为准。如有变化恕不另行通知。
3.因编辑需要,文字和图片无必然联系,仅供读者参考;
推荐一个
专业的地产+建筑平台
每天都有新内容
扫描二维码关注

微信公众号“搜建筑”(ID:sjz9999)
合作、宣传、投稿
联系微信:soujianzhu006