▲ 更多精品,关注“搜建筑”
上海外国语大学附属杭州学校
Dplus 大正设计

▲基地位置
上海外国语大学附属杭州学校是一所包括从幼儿园到高中的15年一贯制学校,位于杭州市富阳区富春江南岸。其中幼儿园总建筑面积9796平方米,共18班,可容纳400名儿童。在校园整体规划设计的初期,幼儿园被布置在校园南侧,位置相对独立利于管理。

1. 形态概念
幼儿园的山墙面是来自城市南部访客的第一印象,造就了活泼的学校形象,为保持室内外语汇的一致性,三角形山墙面形态也就成为了室内的设计元素。

▲大厅

▲大厅

▲二层电梯厅
2. 空间概念
室内设计除了在造型上采用与立面语汇一致的三角形山墙元素,在材质的选择上使用了温暖明亮的木材,伴以高低错落星星点点的吊灯,让孩子们仿佛置身大山的森林中观看点点星光。
木饰面的连贯栏杆扶手,形成了有机的路径体系,鼓励着孩子们在空间里探索穿梭。实体栏杆上一个个大不一,高低错落的小洞,使得在保证孩子们安全的前提下,与不同高差的对视变成可能。

▲图书室

▲图书室

▲图书室

▲烹饪教室

▲烹饪教室
3. 色彩分析
在色彩的选择上,相比于色彩明艳的幼儿园设计,我们选择了饱和度更低,也更为中性,自然的色彩,营造出静谧舒适的空间感受,也避免了孩子和老师们的视疲劳。

▲乐高教室

▲乐高教室

▲美术教室

▲木工教室

▲坡顶活动室

▲坡顶活动室

▲标准教室

▲标准教室

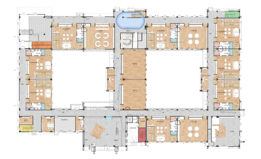
▲幼儿园一层平面图

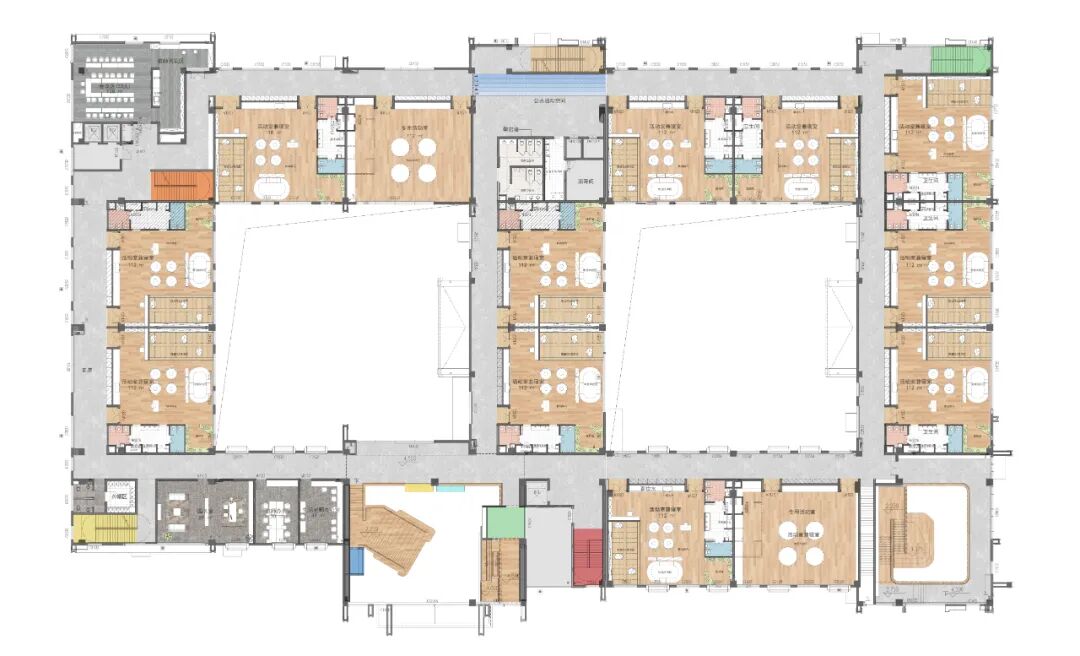
▲幼儿园二层平面图
4. 辅助空间
在园长办公室等办公和交通空间中,沿用了自然明亮的材质基调,同时以不同的铺地界定空间,增加了空间的通透性和逻辑性。

▲园长办公室

▲走道&休息区
5. 景观设计

▲幼儿园一层平面图

▲幼儿园景观设计

▲幼儿园景观设计

▲幼儿园景观设计
施工现场

▲施工现场照片

▲施工现场照片

▲施工现场照片

▲施工现场照片
设计团队
Design Team

李 硕
大正建筑(Dplus studio)主持建筑师
项目概况:
项目业主:杭州青鸟飞翔教育科技有限公司
主持建筑师:李硕
室内设计总监:贾永耀
景观设计总监:姜泳东
施工图负责人:巫志海
设计团队:罗悦洋、蔡安妮、卢家云、李峥嵘、李敏
建设地点:杭州市富阳区富春湾新城
设计时间:2020.05
完成时间:2022.04
设计面积:9796.45㎡
招生规模:18班400人
本资料声明:
1.本文为建筑设计技术分析,仅供欣赏学习。
2.本资料为要约邀请,不视为要约,所有政府、政策信息均来源于官方披露信息,具体以实物、政府主管部门批准文件及买卖双方签订的商品房买卖合同约定为准。如有变化恕不另行通知。
3.因编辑需要,文字和图片无必然联系,仅供读者参考;
推荐一个
专业的地产+建筑平台
每天都有新内容
扫描二维码关注

微信公众号“搜建筑”(ID:sjz9999)
合作、宣传、投稿
联系微信:soujianzhu006
阅读原文:“大正建筑”更多精品


