Park + Ride 挑战涉及不同规模的各种形式的过渡。这些超越了 Park + Ride 本身的空间,但确实需要在其中得到反映——提供一个身份。
The Park + Ride challenge involves various forms of transition, on different scales. These transcend the space of the Park + Ride in itself but do need to be reflected – afforded an identity – within it.
在各个站点的层面上,个人(汽车)与更集体的交通模式(电车、公共汽车和共享单车)之间的转换至关重要。从这个意义上说,Park + Ride建筑真正体现了让进出安特卫普市的交通流更可持续和更集体的努力。换句话说,这些建筑和配套设施可以被理解为“交通”环境;比如机场、火车站和地铁线路,在这些地方换乘的舒适性、易读性和安全性发挥着首要作用。
At the level of the various sites, the physical switchover between an individual (car) and the more collective traffic modes (tram, bus, and bike-share) are of crucial importance. In this sense, the Park + Ride building literally embodies the efforts to make the mobility streams that enter and exit the city of Antwerp more sustainable and collective. In other words, these buildings and the accompanying facilities can be understood as ‘transit’ environments; like airports, train stations, and metro lines, where the comfort, legibility, and safety of the transfer play a primary role.
这些都是确保这一转型成功的关键因素,并确保提高流动性的可持续性与城市网络内的旅行者、游客或居民的需求相一致。这一网络的细致交叉是Park + Ride 的核心规范。
These are the critical factors for ensuring that this transition is a success and that improving the sustainability of mobility is aligned with the needs of the traveler, visitor, or resident within the metropolitan network. The meticulous intersection of this network is the core specification for the Park + Ride facility.
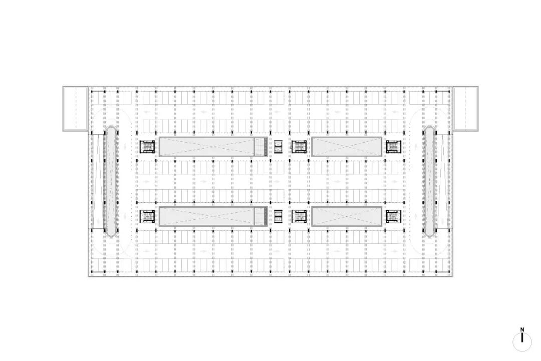
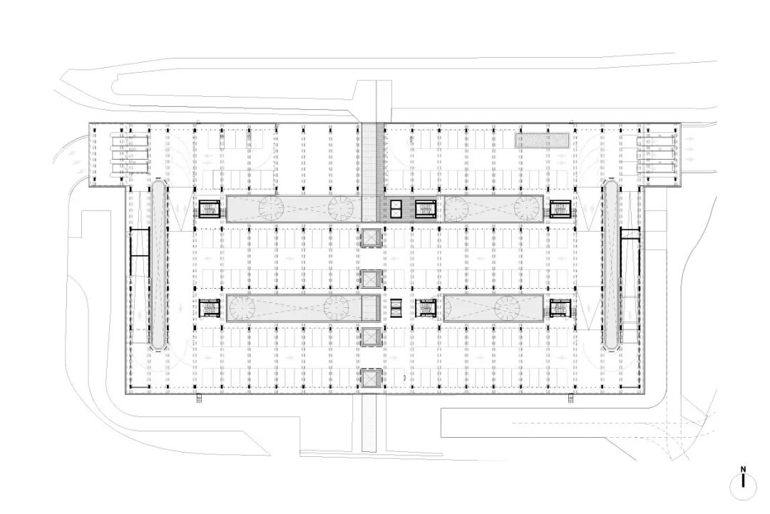
三个Park + Ride建筑将被建造:Luchtbal, linkerever和Merksem。这些项目分别提供了1800个、1500个和680个停车位,总预算为5600万欧元。
Three Park + Ride buildings will be constructed: Luchtbal, Linkeroever, and Merksem. These provide room for 1,800, 1,500, and 680 parking spaces respectively, and represent a combined budget of c. €56,000,000.
建筑的结构是由它们的结构和围合集体绿色外部空间的方式决定的。
The architecture of the buildings is dictated by their structure, and the way in which this encloses collective, green outside spaces.
没有外墙。取而代之的是,非常整洁的混合结构——混凝土柱和木梁(为了更可持续的材料使用)——被强调了。位于中心的天井将日光带入建筑物,并用于引导各种交通流。
There are no facades. Instead, the very neat, hybrid structure – with concrete columns and timber beams (for a more sustainable material use) – is emphasized. The centrally located patios bring daylight into the structures and serve to orientate the various traffic streams.
本资料声明:
1.本文为建筑设计技术分析,仅供欣赏学习。
2.本资料为要约邀请,不视为要约,所有政府、政策信息均来源于官方披露信息,具体以实物、政府主管部门批准文件及买卖双方签订的商品房买卖合同约定为准。如有变化恕不另行通知。
3.因编辑需要,文字和图片无必然联系,仅供读者参考;
搜建筑·矩阵平台
作品展示、招聘发布、特色建材
合作、宣传、投稿
联系微信:soujianzhu006
推荐一个
专业的地产+建筑平台
每天都有新内容
扫描二维码关注

微信公众号“搜建筑”(ID:sjz9999)


