▲ 更多解读,关注“图图规范”
今天图图规范整理了客梯、消防电梯、无障碍电梯、担架电梯的设计要点,希望对大家有所帮助。
客梯
电梯设置应符合下列规定:
1、电梯不应作为安全出口;
2、电梯台数和规格应经计算后确定并满足建筑的使用特点和要求;
3、高层公共建筑和高层宿舍建筑的电梯台数不宜少于2台,12层及12层以上的住宅建筑的电梯台数不应少于2台,并应符合现行国家标准《住宅设计规范》GB 50096的规定;
4、电梯的设置,单侧排列时不宜超过4台,双侧排列时不宜超过2排×4台;
5、高层建筑电梯分区服务时,每服务区的电梯单侧排列时不宜超过4台,双侧排列时不宜超过2排×4台;
6、电梯不应在转角处贴邻布置,且电梯井不宜被楼梯环绕设置;
7、七层及七层以上住宅电梯应在设有户门和公共走廊的每层设站。住宅电梯宜成组集中布置。
8、电梯井道和机房不宜与有安静要求的用房贴邻布置,否则应采取隔振、隔声措施;
9、电梯机房应有隔热、通风、防尘等措施,宜有自然采光,不得将机房顶板作水箱底板及在机房内直接穿越水管或蒸汽管;
10、专为老年人及残疾人使用的建筑,其乘客电梯应设置监控系统,梯门宜装可视窗,并应符合现行国家标准《无障碍设计规范》GB 50763的有关规定。
1、哪些情况必须设置电梯(部分列举)
住宅建筑
1)七层以及七层以上的住宅或住户入口层楼面距室外设计地面的高度超过16m以上的住宅必须设置电梯。
2) 底层作为商店或其他用房的六层及六层以下住宅,其住户入口层楼面距该建筑物的室外设计地面高度超过16m时;
3) 底层做架空层或贮存空间的六层及六层以下住宅,其住户入口层楼面距该建筑物的室外设计地面高度超过16m时;
4) 顶层为两层一套的跃层住宅时,跃层部分不计层数,其顶层住户入口层楼面距该建筑物室外设计地面的高度超过16m时。
办公建筑
四层及四层以上或楼面距室外设计地面高度超过12m的办公建筑应设电梯。
综合医院
1)二层医疗用房宜设电梯;三层及三层以上的医疗用房应设电梯,且不得少于2台;
2)供患者使用的电梯和污物梯,应采用病床梯;
3)医院住院部宜增设供医护人员专用的客梯、送餐和污物专用货梯;
4)电梯井道不应与有安静要求的用房贴邻。
商店
1)大型和中型商店的营业区宜设乘客电梯、自动扶梯、自动人行道;多层商店宜设置货梯或提升机;
2)分部库房、散仓应靠近营业厅内的相关销售区,并宜设置货运电梯。
宿舍
六层及六层以上宿舍或居室最高入口层楼面距室外设计地面的高度大于15m时,宜设置电梯;高度大于18m时,应设置电梯,并宜有一部电梯供担架平入。
老年人建筑
二层及以上楼层、地下室、半地下室设置老年人用房时应设电梯,电梯应为无障碍电梯,且至少1台能容纳担架。
疗养院
供疗养员使用的建筑超过两层应设置电梯,且不宜少于2台,其中1台宜为医用电梯。电梯井道不得与疗养室和有安静要求的用房贴邻。
文化馆
文化馆建筑五层以上(含五层)设有群众活动用房的应设置电梯。
档案馆
四层及四层以上的对外服务用房、档案业务和技术用房应设电梯。两层或两层以上的档案库应设垂直运输设备。
2、电梯的候梯厅
1) 候梯厅深度不应小于多台电梯中最大轿箱的深度,且不应小于1.50m。
2) 电梯候梯厅的深度应符合下表的规定。

注:B为轿厢深度,Bmax为电梯群中最大轿厢深度。
图图规范解读:
1、住宅电梯数量
1)设置一部电梯的情况
① 七层以及七层以上的住宅或住户入口层楼面距室外设计地面的高度超过16m以上的住宅必须设置电梯。


② 十二层及十二层以上的住宅每单元只设置一部电梯时,从第十二层起应设置与相邻住宅单元联通的联系廊。联系廊可隔层设置,上下联系廊之间的间隔不应超过五层。联系廊的净宽不应小于1.10m,局部净高不应低于2.00m。
③ 十二层及十二层以上的住宅由二个及二个以上的住宅单元组成。且其中有一个或一个以上住宅单元未设置可容纳担架的电梯时,应从第十二层起设置与可容纳担架的电梯联通的联系廊。联系廊可隔层设置,上下联系廊之间的间隔不应超过五层。联系廊的净宽不应小于1.10m,局部净高不应低于2.00m。
2)设置两部及以上电梯的情况
① 十二层及十二层以上的住宅,每栋楼设置电梯不应少于两台,其中应设置一台可容纳担架的电梯;
② 建筑高度大于33m的住宅建筑,应设置消防电梯。

2、客梯设置注意事项
公共使用的电梯,其候梯厅应在公共空间。此空间在电梯使用期间不得私自占用,以便定期检修和紧急救援人员顺畅到达。
3、前室能否设置普通电梯
关于“前室能否设置普通电梯”这点,一直存在较大的争议,图图规范之前已经研究分析过,点击回看:前室能否设置普通电梯?权威解释来了!!
消防电梯
消防电梯设置在建筑的耐火封闭结构内,具有前室和备用电源,在正常情况下为普通乘客使用,在建筑发生火灾时其附加的保护、控制和信号等功能能专供消防员使用的电梯。
消防电梯是在建筑物发生火灾时供消防人员进行灭火与救援使用且具有一定功能的电梯。因此,消防电梯具有较高的防火要求,其防火设计十分重要。
普通电梯均不具备消防功能,发生火灾时禁止人们搭乘电梯逃生。因为当其受高温影响,或停电停运,或者火燃烧,必将殃及搭乘电梯的人,甚至夺去他们的生命。

1 应能每层停靠;
2 电梯的载重量不应小于800kg;
3 电梯从首层至顶层的运行时间不宜大于60s;
4 电梯的动力与控制电缆、电线、控制面板应采取防水措施;
5 在首层的消防电梯入口处应设置供消防队员专用的操作按钮;
6 电梯轿厢的内部装修应采用不燃材料;

消防电梯技术要求示意图
1、设置作用
高层建筑发生火灾时,消防队员乘消防电梯登高灭火不但节省到达火灾层的时间,而且减少消防队员的体力消耗,在灭火战斗中,还能够及时向火灾现场输送灭火器材。因此,消防电梯在扑救火灾中占有很重要的地位。
2、设置范围
1.建筑高度大于33m 的住宅建筑;
2.一类高层公共建筑和建筑高度大于32m 的二类高层公共建筑、5层及以上且总建筑面积大于3000㎡(包括设置在其他建筑内五层及以上楼层)的老年人照料设施;
3.设置消防电梯的建筑的地下或半地下室,埋深大于10m且总建筑面积大于3000㎡的其他地下或半地下建筑(室)。
4、除室内无车道且无人员停留的机械式汽车库外,建筑高度大于32m的汽车库应设置消防电梯。消防电梯的设置应符合现行国家标准《建筑设计防火规范》GB 50016的有关规定。

应设置消防电梯的建筑


应设置消防电梯的建筑示意图
3、设置数量
1.消防电梯应分别设置在不同防火分区内,且每个防火分区不应少于1台。
2.建筑高度大于32m 且设置电梯的高层厂房(仓库),每个防火分区内宜设置1台消防电梯,但符合下列条件的建筑可不设置消防电梯:
1 建筑高度大于32m 且设置电梯,任一层工作平台上的人数不超过2人的高层塔架;
2 局部建筑高度大于32m,且局部高出部分的每层建筑面积不大于50㎡ 的丁、戊类厂房。
3.符合消防电梯要求的客梯或货梯可兼作消防电梯。
除设置在仓库连廊、冷库穿堂或谷物筒仓工作塔内的消防电梯外,消防电梯应设置前室。
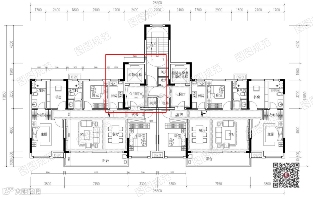
1、前室位置
前室宜靠外墙设置,并应在首层直通室外或经过长度不大于30m 的通道通向室外。
2、消防电梯前室的短边尺寸
前室的短边不应小于2.4m
3、前室面积

消防电梯间前室的使用面积要求
4、前室的门
1.消防电梯前室或合用前室的门应采用乙级防火门,不应设置卷帘。
2.消防电梯前室门口宜设置挡水设施,以阻挡灭火产生的水从此处进入电梯内。
5、防烟排烟
前室内应设有机械排烟或自然排烟的设施,火灾时可将产生的大量烟雾在前室附近排掉,以保证消防队员顺利扑救火灾和抢救人员。
6、设置室内消火栓
消防电梯前室应设有消防竖管和消火栓。
1、消防电梯井
1.消防电梯的梯井应与其他竖向管井分开单独设置,不得将其他用途的电缆敷设在电梯井内,也不应在井壁开设孔洞。
2.井内严禁敷设可燃气体和甲、乙、丙类液体管道。
3.消防电梯井、机房与相邻电梯井、机房之间应设置耐火极限不低于2.00h的防火隔墙,隔墙上的门应采用甲级防火门。
4.消防电梯的井底应设置排水设施,排水井的容量不应小于2m³,排水泵的排水量不应小于10L/s。

示意图
2、轿厢
消防电梯轿厢的内部装修应采用不燃烧材料,内部的传呼按钮等也要有防火措施,确保不会因烟热影响而失去作用。
图图规范解读:
了解了上面的相关内容,我们再来思考几个问题:
除裙房用作或部分用于老年人照料设施,且符合相关要求时需设置消防电梯,其余裙房可不设置消防电梯。
延伸阅读:
一次搞定,所有与裙房相关的规范!有图有解析!
裙房怎样做才对?明确的解决办法……
2、设置有消防电梯的住宅建筑,其商业服务网点是否需要消防电梯停靠?
不需要。商业服务网点的高度最多只有二层,消防救援无需依靠消防电梯,此外,各商铺完全分隔,即使停靠也难以通过消防电梯到达每一个商铺,因此,消防电梯不需要在商业服务网点停靠。
延伸阅读:
商业服务网点——设计要求总结
深度剖析:商业服务网点——这次整透彻了!
3、消防电梯前室,能否设置管井(电井)检查门?
不允许。根据防火规范7.3.5条:根据防火规范7.3.5条:消防电梯前室 除前室的出入口、前室内设置的正压送风口和本规范第5.5.27 条规定的户门外,前室内不应开设其他门、窗、洞口。(包括电缆井和管道井的检修门)
4、《人民防空工程设计防火规范》没有消防电梯设置要求,是否需要设置消防电梯?

《人民防空工程设计防火规范》没有提出消防电梯设置要求,对于该规范1.0.2所述的供平时使用的人防工程,按《建筑设计防火规范》公共建筑和厂房仓库的相关要求确定。
6、“埋深大于10m且总建筑面积大于3000m²的其他地下或半地下建筑(室)”,这个总建筑面积包括地上部位吗?如地下室有汽车库和人防,包括汽车库和人防部分吗?
本条文所述的总建筑面积,不包括地上部分,不包括地下部分的汽车库部分,但包括非汽车库的供平时使用的人防工程部分。
规范要求:“埋深大于10m且总建筑面积大于3000m² 的地下或半地下建筑(室)”,应设置消防电梯(与地上部分是否设置有消防电梯无关),消防电梯应分别设置在不同防火分区内,且每个防火分区不应少于1台。
但对于没有达到“埋深大于10m且总建筑面积大于3000m² 的地下或半地下建筑(室)”标准的情况,只需要将地上部分的电梯延伸至地下室即可。
原则上,不同防火分区的消防电梯不能共用,消防电梯应分别设置在不同防火分区内,且每个防火分区不应少于1台。
对于设置在地下的设备用房、非机动车库等防火分区,当受首层建筑平面布置等因素限制,分别设置消防电梯有困难时,可与相邻防火分区共用1台消防电梯,但应分别设置前室。
无障碍电梯
无障碍电梯是为乘轮椅者、视残者或担架床可进入和使用的电梯。
无障碍电梯在许多基本功能方面需有特殊考虑,这些功能决定残疾人使用电梯的能力。如电梯门的宽度、关门的速度、电梯厢的面积,在电梯厢内安装扶手、镜子、低位及盲文选层按钮、音响报层按钮等,并在电梯厅的显著位置安装国际无障碍标志。

公共建筑内设有电梯时,至少应设置1部无障碍电梯。
1、电梯门前应设直径不小于1.50m的轮椅回转空间,公共建筑的候梯厅深度不应小于1.80m;
2、呼叫按钮的中心距地面高度应为0.85m~1.10m,且距内转角处侧墙距离不应小于400mm,按钮应设置盲文标志;
3、呼叫按钮前应设置提示盲道;
4、应设置电梯运行显示装置和抵达音响。
无障碍电梯的轿厢的规格应依据建筑类型和使用要求选用。满足乘轮椅者使用的最小轿厢规格,深度不应小于1.40m,宽度不应小于1.10m。同时满足乘轮椅者使用和容纳担架的轿厢,如采用宽轿厢,深度不应小于1.50m,宽度不应小于1.60m;如采用深轿厢,深度不应小于2.10m,宽度不应小于1.10m。轿厢内部设施应满足无障碍要求。
1、应为水平滑动式门;
2、新建和扩建建筑的电梯门开启后的通行净宽不应小于900mm,既有建筑改造或改建的电梯门开启后的通行净宽不应小于800mm;
3、完全开启时间应保持不小于3s。
担架电梯
担架电梯已经成为居民楼配置不可或缺的基础设施。
担架电梯不是一种电梯类型而是一种名称,它就是普通的电梯,用途也跟电梯完全一样,只是它的尺寸要求能放下一副担架,方便担架接送病人进入电梯,所以被称为担架电梯。
《住宅设计规范》其中6.4.2条 十二层及十二层以上的住宅,每栋楼设置电梯不应少于两台,其中应设置一台可容纳担架的电梯。

《建筑与市政工程无障碍通用规范》GB 55019-2021,规范第2.6.2条中明确指明了担架电梯的尺寸:

担架电梯轿厢尺寸:
宽轿厢:1.5m(深)*1.6m(宽)
深轿厢:2.1m(深)*1.1m(宽)
担架电梯井道尺寸:
经过很多年的实际工程应用及经验,常规看,若保证轿厢尺寸为1.5m(深)*1.6m(宽)时,井道尺寸为2.4m(深)*2.3m(宽)时完全可行。
担架电梯尺寸
延伸阅读:点击查看
▼ 点击关注 | 专业平台
专家团:深度解读、剖析建筑规范
关注公众号:图图规范(ID:jzgf999)
更多建筑规范
▼点击收藏搜建筑小程序
推荐一个
专业的地产+建筑平台
每天都有新内容
扫描二维码关注

微信公众号“搜建筑”(ID:sjz9999)
合作、宣传、投稿
联系微信:soujianzhu006
更多精品 登录 搜建筑网站
www.soujianzhu.cn

↓↓↓ 更多精品,搜建筑网站
↓↓↓ 下载户型,CAD文件



