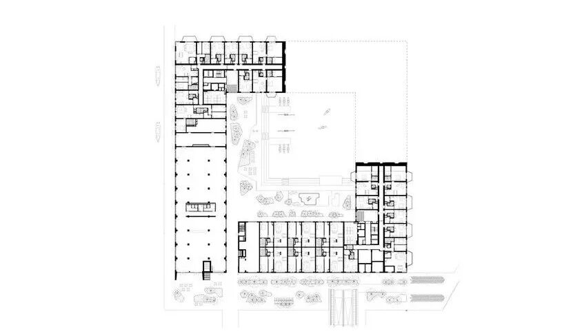
Bjarke Ingels Group (BIG)和Barcode Architects通过Sluishuis住房项目为阿姆斯特丹完成了一个标志性的新地标。该项目矗立在水、农村景观和城市的交汇处,并矗立在不断发展的IJburg住宅区内。Sluishuis由VORM、BESIX房地产开发公司和BESIX荷兰公司共同开发和建造,是对阿姆斯特丹典型建筑群的现代翻译,特别是对其在水中的特殊位置的回应。
Bjarke Ingels Group (BIG) and Barcode Architects completes an iconic new landmark for Amsterdam with the Sluishuis housing project. The project stands at the confluence between the water, the rural landscape, and the city, and stands within the growing residential neighborhood of IJburg. Developed and built by VORM, BESIX Real Estate Development and BESIX Nederland, Sluishuis is a contemporary translation of the typical Amsterdam building block that responds specifically to its special location in the water.
体量的一侧被抬高,让水进入院子,另一侧则呈阶梯状,以友好的绿色梯田对IJburg做出一个邀请的姿态。从每个角度看,游客都能感受到不同的体量。点击这里查看designboom之前的报道。
The volume is elevated on one side to allow the water into the courtyard and stepped down on the other side to make an inviting gesture towards IJburg with friendly green terraces. From every angle, visitors experience the volume differently. See designboom’s previous coverage here.
随着新揭幕的Sluishuis住宅区,Bjarke Ingels集团和Barcode Architects为阿姆斯特丹引入了442套公寓。出租和自住的房屋在整个建筑中交替出现,为不同的目标群体、收入水平和年龄类别提供空间。所有的公寓都可以通过一个中央庭院进入。在那里,悬臂和水是进入建筑的一个欢迎的门槛。由于Sluishuis的特殊形状和双切割体量,每个家庭都有最佳的视野和日光。
With the newly unveiled Sluishuis housing complex, Bjarke Ingels Group and Barcode Architects introduce 442 apartments to Amsterdam. Rental and owner-occupied homes alternate throughout the building and provide space for various target groups, income levels and age categories. All apartments are accessible by way of a central courtyard. There, the cantilever and the water are a welcoming threshold to the building. Each home has optimal views and daylight thanks to the special shape of Sluishuis with its double-cut volume.
Sluishuis拥有丰富多样的住房类型,包括紧凑的城市工作室和水上运动公寓。在顶层的两层是复式阁楼,既与院子有关系,又能看到IJmeer的景色。阶梯部分的高级公寓带有豪华和阳光充足的木制屋顶露台,可以看到IJburg的景色。
Sluishuis has a rich diversity of housing typologies, including compact urban studios and water sports apartments. On the top two floors are duplex penthouses with both a relationship with the courtyard and a view over the IJmeer. Premium flats with luxurious and sunny wooden roof terraces with views over IJburg are located on the stepped part.
悬臂底部的公寓提供了俯瞰IJ和直接在水面上的全景。这些独特的单元悬挂在水面上,用大窗户打开,穿过倾斜的外墙。从这里,居住者可以看到正下方航行的船只。
The apartments at the bottom of the cantilever offer sweeping views over the IJ and directly on the water. These unique units hang over the water, opening up with large windows which cut through the sloping façade. From here, occupants can view the boats sailing directly below.
该基座将容纳一个多样化的项目,包括帆船学校、水上运动中心和带有宽敞的阳光露台的餐厅。居民和游客从院子里进入。通往Sluishuis屋顶的走道为游客和居民提供了壮观的水景和附近的景色。码头长廊有三十四艘船围绕着建筑。码头景观通过各种停泊点、坐台和漂浮的花园来刺激与水的接触。
The plinth will accommodate a varied program including a sailing school, water sports center and restaurant with a spacious terrace in the sun. Residents and visitors enter through the courtyard. The walkway to the roof of Sluishuis offers visitors and residents a spectacular view of the water and the neighborhood. A jetty promenade with thirty-four houseboats surround the building. The jetty landscape stimulates contact with the water with various mooring places, sitting decks, and floating gardens.
精心设计的景观还通过当地的植物物种和一个鸟岛来刺激动植物。通过这种方式,基座和周围的景观形成了对环境的高质量补充。
The carefully designed landscape also stimulates flora and fauna with local plant species and a bird island. In this way, the plinth and the surrounding landscape form a high-quality addition to the environment.
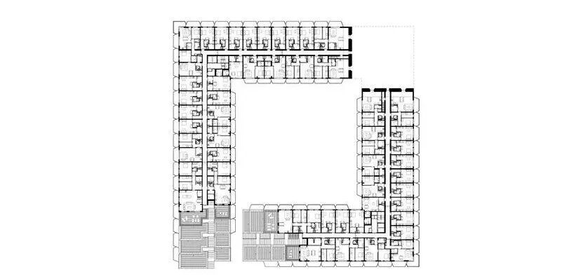
Bjarke Ingels Group 和 Barcode architects 的 Sluishuis 住宅区旨在激发和加强居民与游客之间的联系。交错的阳台创造了令人惊讶的视线和交流。穿过屋顶的公共路线,以及院子里的儿童游乐场、码头长廊和木制屋顶露台的定位,刺激了自发的相遇。
With the Sluishuis housing complex, Bjarke Ingels Group and Barcode architects aims to stimulate and strengthen the connection between residents and visitors. The staggered balconies create surprising sight lines and exchanges. The public route across the roof, as well as the children’s playground in the courtyard, the jetty promenade, and the positioning of the wooden roof terraces stimulate spontaneous encounters.
通过其材料调色板,该建筑寻求对比,但也与周围环境建立联系。在材料调色板中,选择了天然材料,使建筑物多年来具有丰富而自然的外观。立面的抽象、未经处理的铝反射水,并在一天中的任何时候赋予体积不同的外观。相比之下,阶梯式屋顶露台和码头长廊由木头制成,给人一种有触感的外观。
Through its material palette, the building seeks contrast but also a connection with its surroundings. In the material palette, natural materials have been chosen so that the building will have a rich and natural appearance over the years. The abstract, untreated aluminum of the façade reflects the water and gives the volume a different appearance at any time of day. In contrast, the stepped roof terraces and the jetty promenade are made of wood, which gives a tactile appearance.
Sluishuis 是最近完成的最具可持续性的建筑之一。它的能效系数 (EPC) 为 0.00。通过结合出色的绝缘技术、三层玻璃以及通风系统和淋浴间的热量回收,该建筑的供暖需求已降至最低。该建筑由节能区域供热和用于热水和冷却的热泵组合供暖。
Sluishuis is one of the most sustainable buildings recently completed. It has an energy performance coefficient (EPC) of 0.00. The building’s heating requirements have been minimized by combining excellent insulation techniques, triple glazing and heat recovery from the ventilation systems and showers. The building is heated by a combination of energy-efficient district heating and heat pumps for hot water and cooling.
该建筑用于供暖、热泵、通风和 LED 照明的能源消耗完全由约 2,200 平方米的太阳能电池板提供。除了这些技术方面,在泗水的开发过程中,对绿化和集水也给予了极大的关注。在前面、侧面和庭院里是种植着当地植物的花园。绿色植物在内置花盆中向上穿过屋顶露台。在屋顶上,这营造出宜人的绿色氛围。
The building’s energy consumption for heating, heat pumps, ventilation and LED lighting is fully provided by approximately 2,200 square meters of solar panels. In addition to these technical aspects, a great deal of attention was paid to the greenery and water collection in the development of Sluishuis. At the front, sides and in the courtyard are gardens with local plant species. The greenery runs across the roof terraces upwards in built-in planters. On the roof, this creates a pleasant green atmosphere.
凭借强大的建筑、新的住宅类型、高品质的户外空间和 IJmeer 令人叹为观止的景色,Sluishuis 形成了阿姆斯特丹 IJburg 的温馨入口。
With strong architecture, new housing typologies, high-quality outdoor spaces and a breath-taking view over the IJmeer, Sluishuis forms a welcoming entrance to Amsterdam IJburg.
建筑师:bjarke ingels + barcode architects
本资料声明:
1.本文为建筑设计技术分析,仅供欣赏学习。
2.本资料为要约邀请,不视为要约,所有政府、政策信息均来源于官方披露信息,具体以实物、政府主管部门批准文件及买卖双方签订的商品房买卖合同约定为准。如有变化恕不另行通知。
3.因编辑需要,文字和图片无必然联系,仅供读者参考;
合作、宣传、投稿
联系微信:soujianzhu006

推荐一个
专业的地产+建筑平台
每天都有新内容
扫描二维码关注

微信公众号“搜建筑”(ID:sjz9999)