Sanskruti School 是Gokak现有学校校园的独家学前教育学校。规划理念是通过考虑幼儿园儿童的心理和身体需求来指导的,他们倾向于探索具有令人兴奋的大道和色彩缤纷的景观的空间,并且具有最小的边界。一块三角形的土地夹在北部的现有学校建筑、东西两侧的一组操场和南部紧邻城市车辆道路的校园物业边缘之间,被确定为新的合适位置学前教育建筑,为整个校园设计立面,因为它位于现有建筑的前景。
Sanskruti School is an exclusive pre-primary school for an already existing school campus at Gokak. The planning philosophy is directed by considering the psychological and physical needs of kindergarten children who have tendencies to explore spaces with exciting avenues and colorful vistas with minimum boundaries. A triangular-shaped piece of land sandwiched between an existing school building on the north, a set of playgrounds on the east and west sides, and the campus property edge abutting the city’s vehicular road on the south was identified as an appropriate location for a new pre-primary school building, crafting the elevation for the entire campus as it stands in the foreground of the existing buildings.
某些气候问题在设计这座温暖干旱的城市Gokak的建筑中发挥了关键作用。场地的东北侧被选择用来容纳所有的教室,这样它的开口就不会受到南方刺眼的眩光。所有的活动空间、走廊、楼梯、庭院、行政人员和活动室都朝南放置,作为车辆交通和夏季炎热的缓冲地带,鼓励学生在自然采光和舒适遮荫的建筑形式空间中学习和成长.
Certain climatic concerns have played a key role in designing this building in Gokak, a warm and arid city. The northeast side of the site is chosen to accommodate all the classrooms, such that its openings are free from the harsh glare of the south. All the activity spaces, corridors, staircases, courtyards, admin staff, and activity rooms are placed facing south which acts as a buffer from vehicular traffic and summer heat, encouraging students to learn and grow in naturally lit and comfortably shaded spaces of the built form.
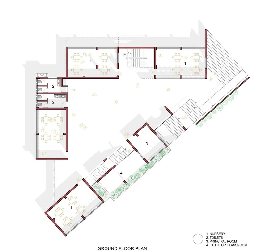
穿过这些空间形成的三层高球场产生了有效的堆叠效应,减少了对人工通风和冷却系统的需求。学校的基座层是根据场地环境而设计的。中庭和地下室的主要入口是从南面直接进入。东面的一个圆形剧场面向操场,作为通往中庭的另一个楼梯入口。与此平行的坡道可以帮助挑战者。在一楼的入口层,三个幼儿园教室、一个校长室和一个工艺室被规划在一个中央中庭周围。学校的东面主要入口是通过场地自然轮廓形成的一系列台阶进入的。这些步骤加倍作为面向现有操场的 OAT。
A triple height court formed by crossing these spaces generates an effective stack effect, reducing the need for artificial ventilation and cooling systems. The plinth level of the school is contoured in response to the site context. The primary entrance to the atrium and the basement floor is a direct entry from the south. An amphitheater on the east facing the playground acts as another stairway entry leading up towards the atrium. A ramp running parallel to this assists the challenged. At the entry level on the ground floor, three nursery classrooms, a principal’s cabin, and a crafts room are planned around a central atrium. The school's main entrance from the east is accessed through a series of steps formed by the site's natural contours. These steps double up as an OAT facing the existing playground.
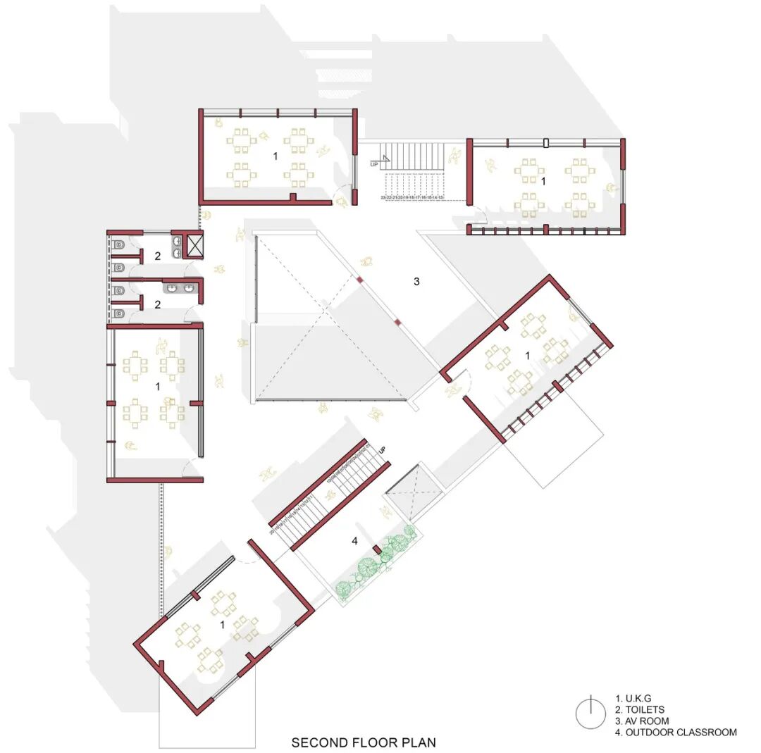
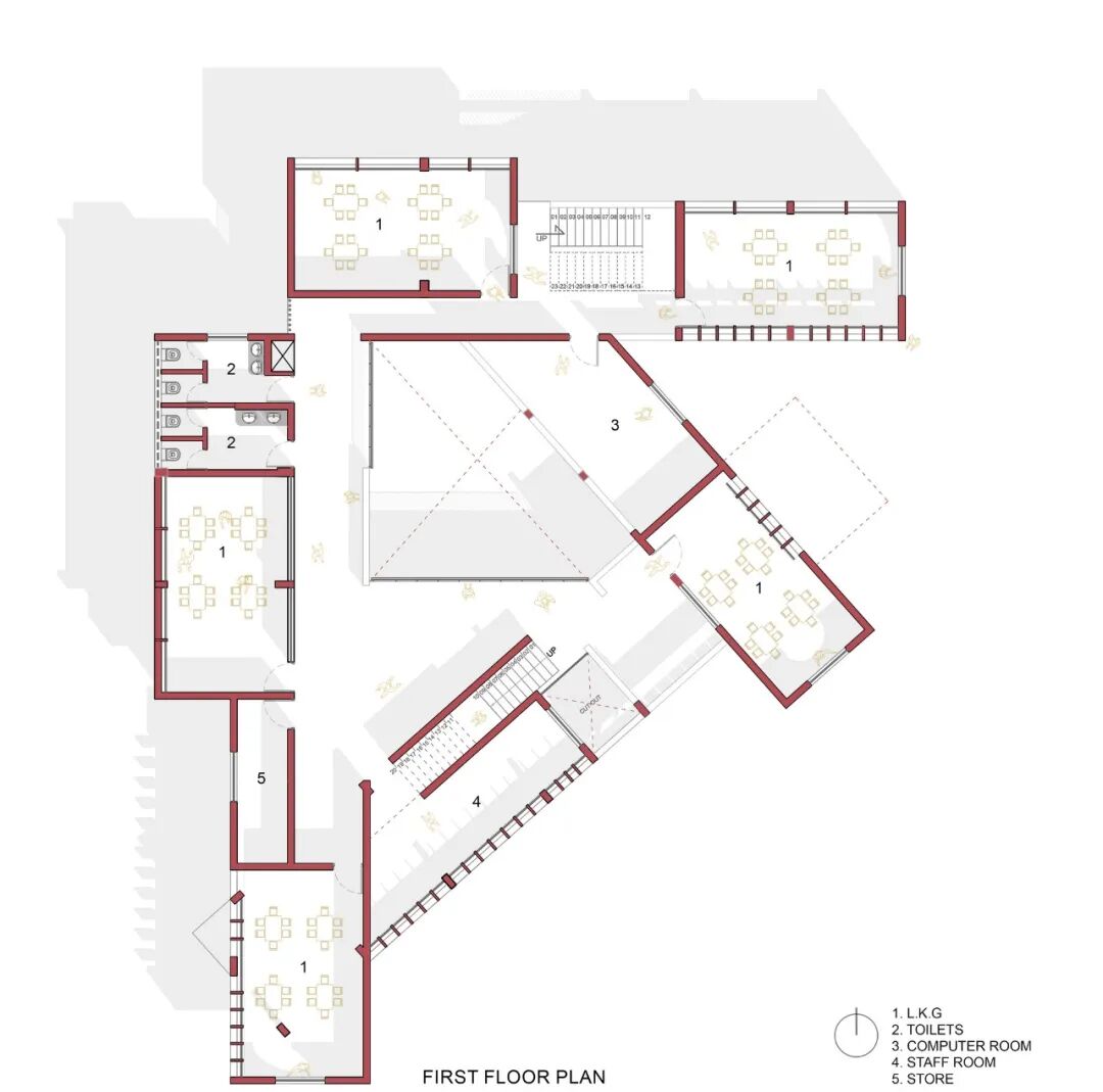
南边的楼梯是一条直线楼梯,夹在南边的花园庭院和中央庭院的内部走廊之间。北面的一条狗腿楼梯,在正式教室和非正式户外活动区的紧凑安排之间打开,引导学生到地下室休息和午休。直接进入地下室的通道从建筑物的中庭塌陷,以供更大的学生聚会使用。LKG学生教室、教职工室和多功能活动室位于一楼。同样,UKG 学生的教室、日间卧室和玩具室位于二楼。在每一层,在建筑物的后侧都有一个卫生间,两格教室相交,方便所有人进出。
A staircase in the south is a straight flight of staircases jammed between the garden courts in the south and the internal corridors of the central courtyard. A dog-legged staircase on the north, opening between tight arrangements of formal classrooms and informal outdoor activity areas guides the students to the basement for recess and lunch breaks. Direct access to the basement is caved in from the atrium of the building for larger gatherings of students. Classrooms for LKG students, a staff room, and a multipurpose activity room are located on the first floor. Likewise, classrooms for UKG students, a day bedroom, and a toy room are located on the second floor. On every floor, a toilet block is accommodated at the rear side of the building where two grids of classrooms intersect making it convenient to access from all.
开放性、连续性、安全性、活力和统一性的建筑语言通过精心布置的庭院、教室、楼梯、走廊和双高空间将不同年级的学生联系起来。为了响应三角形场地的形状,三个街区相互环绕,包围了中央三层高庭院周围的所有空间。圆形窗户和色彩缤纷的黄红相间的遮阳板隐喻了幼儿园孩子们的天真、童趣和活力。这种建筑特色的庆祝活动通过这些花哨的开窗进出建筑物,将室内和室外框起来。建筑形式的体量通过在地块的三个侧面堆叠成排的教室而开花。
The architectural language of openness, continuity, security, vibrancy, and unity is choreographed throughout by the thoughtful positioning of the courtyards, classrooms, staircases, corridors, and double-height spaces which connect students across grades. In response to the shape of a triangular site, three blocks are looped into each other enveloping all the spaces around a central triple-height courtyard. The circular windows and the colorful Brise-soleil in shades of yellow and red are a metaphor for the kindergarten kids' naiveness, childlike and energetic nature. This celebration of architectural features runs in and out of the building framing the indoors and outdoors through these fancy fenestrations. The massing of the built form is blossomed by stacking rows of classrooms within the three sides of the plot. With a rhythmic twist and turn of these blocks, a volume of cubes jutting out at perpendicular and angular degrees assists in creating simple yet powerful architectural volumes.
建筑师:Shreyas Patil Architects
本资料声明:
1.本文为建筑设计技术分析,仅供欣赏学习。
2.本资料为要约邀请,不视为要约,所有政府、政策信息均来源于官方披露信息,具体以实物、政府主管部门批准文件及买卖双方签订的商品房买卖合同约定为准。如有变化恕不另行通知。
3.因编辑需要,文字和图片无必然联系,仅供读者参考;
推荐一个
专业的地产+建筑平台
每天都有新内容
扫描二维码关注

微信公众号“搜建筑”(ID:sjz9999)
合作、宣传、投稿
联系微信:soujianzhu006